Prodej kanceláře • 485 m² bez realitkyBartäcker 6, , Bavorsko
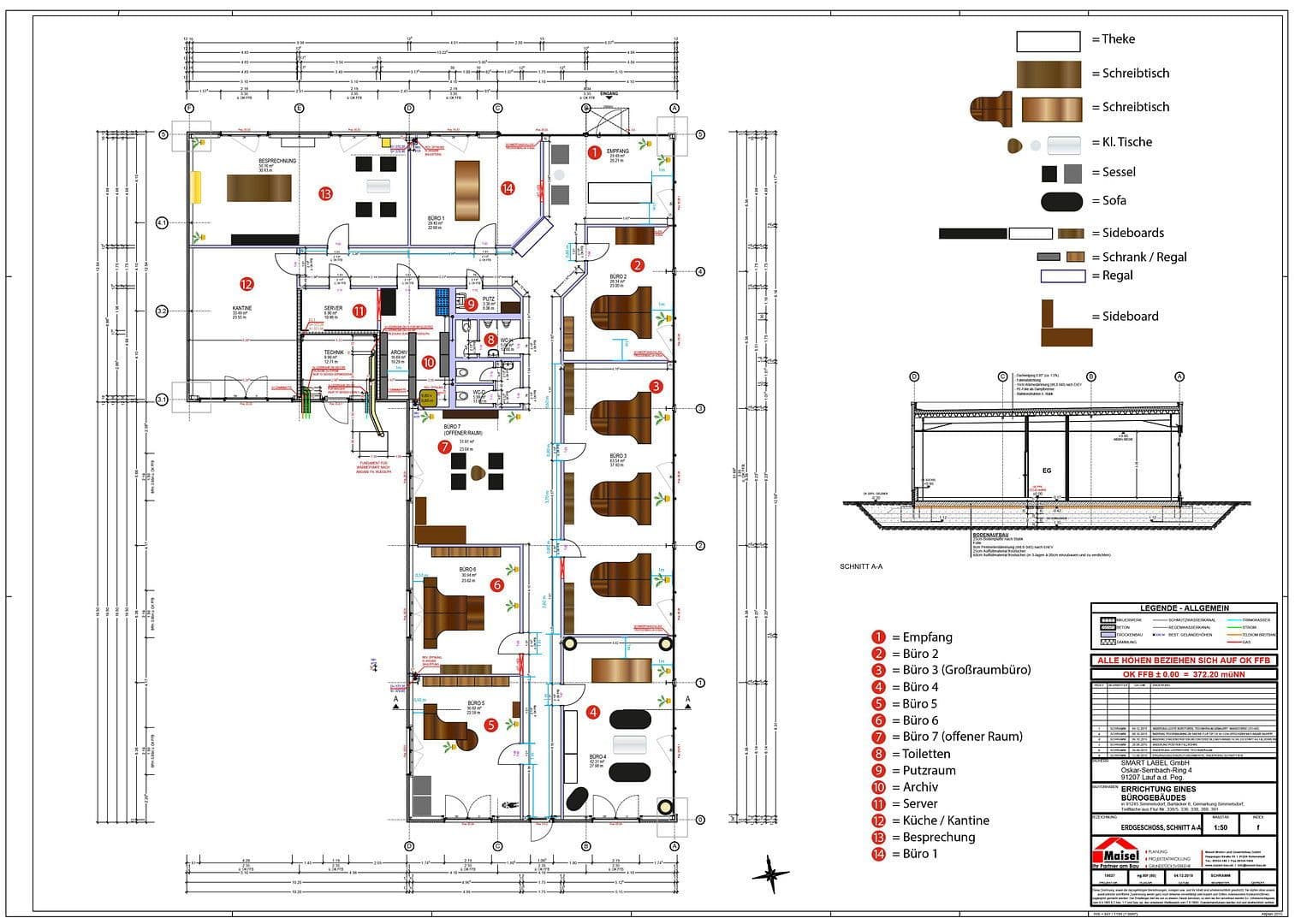
Bartäcker 6, , BavorskoMHD 6 minut pěšky • Parkování • GarážModerní, kvalitní stavební objekt zaujme svým atraktivním vzhledem a promyšleným plánováním a vybavením. L-konstrukci budovy lze dle potřeby rozdělit do dvou jednotek. Nemovitost je vysoce kvalitně vybavena a díky podlažním oknům je prostorně zalitá světlem. Pomocí kompletního systému lamelových žaluzií lze individuálně regulovat dopad světla.
Možná je přístavba o přibližně 300 m² užitné plochy. Společenské místnosti a sanitární zařízení jsou vysoce kvalitní a nacházejí se ve výborném, téměř novém stavu. Budova disponuje třemi terasami a nachází se v klidné oblasti s okolními zelenými plochami.
Kromě toho je pozemek kompletně oplocen a disponuje kontrolou přístupu až k parkovišti. Osvětlovací systém, datová kabeláž, alarmový systém se kamerovým systémem a propojením na bezpečnostní službu, podlahové kanály v kancelářích a zasedacích místnostech, LED vnitřní osvětlení, mediální systém Sonos, elektronický uzamykatelný systém, serverovna s klimatizací a systém vytápění a chlazení podlahy v celém objektu splňují ty nejvyšší nároky.
Stěny jsou dle potřeby přizpůsobitelné, s výjimkou protipožárních zdí. Budova byla postavena v roce 2016 společností Maisel.
Nemovitost se nachází východně od Schnaittach a je ideálně napojena na dálnici A 9 (s výjezdem Schnaittach). Poloha pozemku je výborně začleněná do metropolitní oblasti Norimberku. Cesta do Norimberka, Neumarktu, Bayreuthu, Schwabachu a Erlangenu trvá přibližně 30 až 35 minut.
Budova je vybavena nejkvalitnějšími podlahami, dveřmi, okny, lamelovými žaluziemi, sanitárním vybavením a osvětlením. Byla postavena ocelovou konstrukcí s vysoce tepelnoizolačními izo-panelovými stěnami (12 cm).
Obchodní daňový koeficient obce Simmelsdorf činí 310. Celková plocha pozemku je 2585 m², je plně inženýrsky vybaven, bez zástavních práv a dalších omezení.
Parametry nemovitosti
| Stáří | Nad 50 let |
|---|---|
| Číslo inzerátu | 987633 |
| Cena za jednotku | 2 866 € / m2 |
| Stav | Velmi dobrý |
|---|---|
| Plocha kanceláře | 485 m² |
Co tato nemovitost nabízí?
| Garáž | |
| Parkování | |
| Terasa |
| MHD 6 minut pěšky |
V okolí nemovitosti najdete
Stále hledáte to pravé?
Nastavte si hlídacího psa. Nabídky vybrané na míru dostanete souhrnně 1× denně e-mailem. S Premium profilem máte k ruce hlídačů rovnou 5 a když se něco objeví, informují vás obratem.
























