
Pronájem bytu 2+kk • 62 m² bez realitkyJosefa Čapka, Kladno - Kročehlavy, Středočeský kraj
Máte o nabídku zájem?
Ušetřete 17 000 Kč na provizi a komunikujte se všemi majiteli.
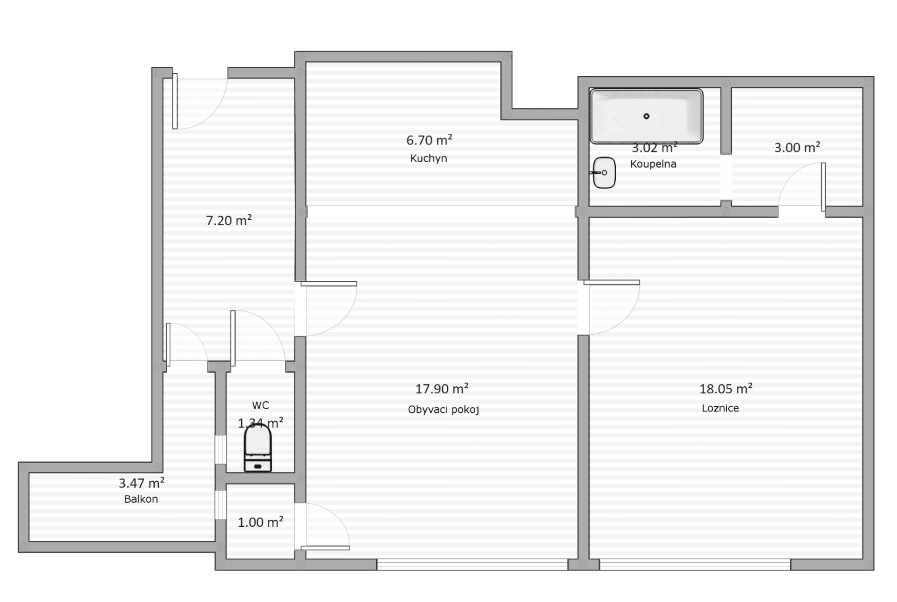
Nabízím k pronájmu byt 2+kk, 62m2 s balkónem. Byt právě prošel rekonstrukci, na místě je nová kuchyň - lednice, elektrická horkovzdušná trouba, sklokeramická varná deska, digestoř, vestavěná myčka nádobí a samostatná mikrovlnná trouba. Celý objekt byl nedávno zateplen a ma nová plastová okna. Byt je orientován na jiho-východ a je velmi slunný . V obývacím pokoji jsou přípojky na internet - kabelová UPC a telefonní linka. Z obývacího pokoje je také přístupná malá spižírna, možno použít i jako skladovací místnost. Koupelna má menší samostatnou předsíň s přípojkou na pračku. Po vchodu do bytu zaujme také prostorná předsíň, ze které je přístup na balkón. Poplatky 3.000 Kč jsou zálohy na vodu a teplo (případné přeplatky se vrací po vyúčtování). Není zahrnuta elektřina, kterou si nájemník převádí na sebe. Vratná kauce 25 tisíc Kč. Zastávka Sítná s autobusy na Prahu je hned za rohem minutu chůze. Dále 5 minut chůze se nachází pošta a supermarket Albert. Parkování dostupné za domem. RK nekontaktovat.
Parametry nemovitosti
| Dostupné od | 1. 4. 2026 |
|---|---|
| Konstrukce budovy | Cihla |
| Vybaveno | Nevybaveno |
| Číslo inzerátu | 988854 |
| Umístění | Klidná část |
| Cena za jednotku | 274 Kč / m2 |
| Stav | Velmi dobrý |
|---|---|
| Dispozice | 2+kk |
| Podlaží | 3. podlaží z 4 |
| Vlastnictví | Osobní |
| Užitná plocha | 62 m² |
Co tato nemovitost nabízí?
| Balkón 3,5 m² | |
| Parkování |
| MHD 3 minuty pěšky |
V okolí nemovitosti najdete
Máte o nabídku zájem?
Ušetřete 17 000 Kč na provizi a komunikujte se všemi majiteli.
Stále hledáte to pravé?
Nastavte si hlídacího psa. Nabídky vybrané na míru dostanete souhrnně 1× denně e-mailem. S Premium profilem máte k ruce hlídačů rovnou 5 a když se něco objeví, informují vás obratem.
























