Pronájem nebytového prostoru • 160 m² bez realitkyWalter-Gropius-Str. 3, , Bádensko-Württembersko
Walter-Gropius-Str. 3, , Bádensko-WürttemberskoMHD 1 minuta pěškyMěsíční nájemné950 €
+ Poplatky za služby200 €
+ Vratná kauce2 000 €
Přeloženo pomocí AI
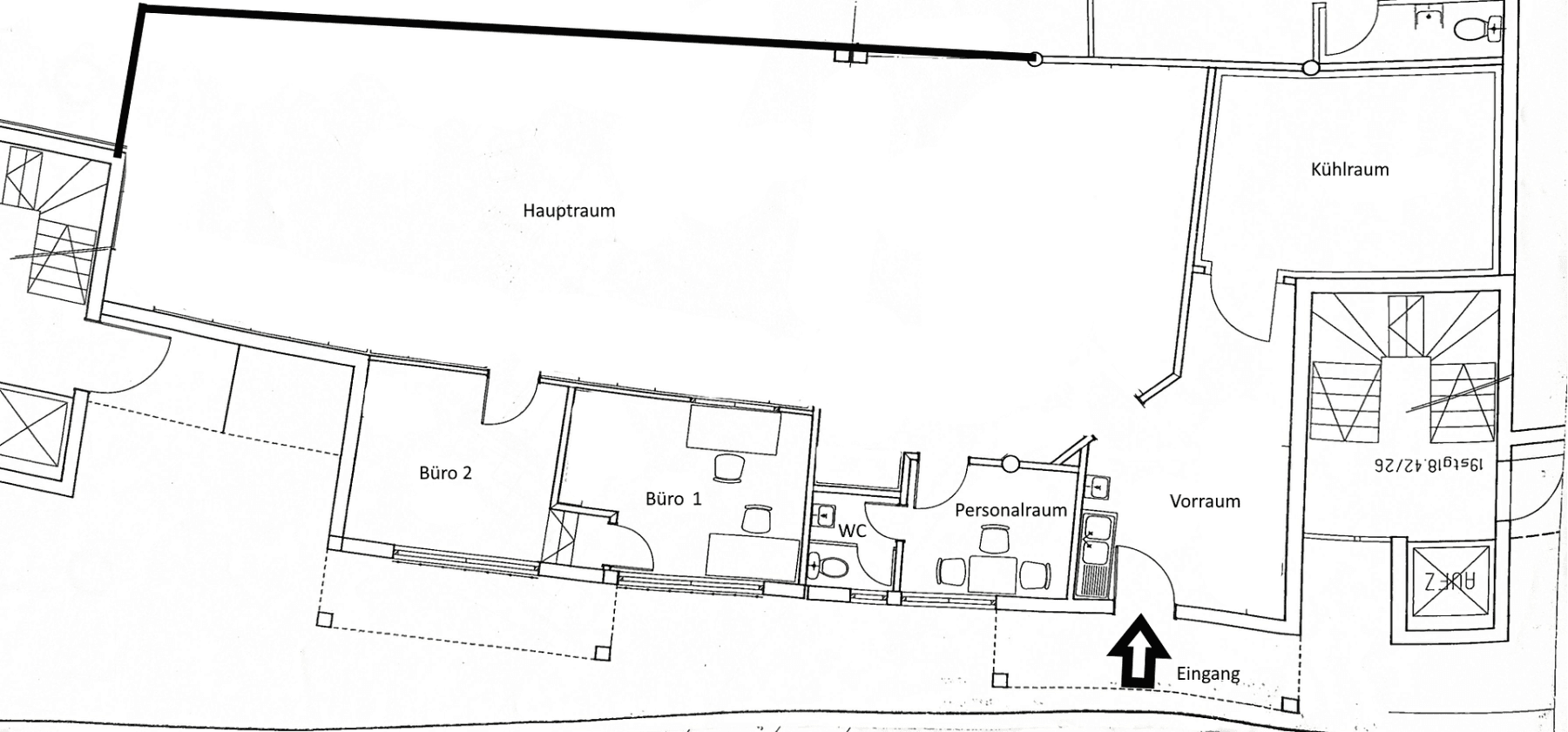
Sklad a kancelář
160 m²
S WC
Okolní byty zaručují, že hlučné stroje nejsou povoleny.
Hlavní vstupní dveře: 90 cm šířka, 205 cm výška
Při komerčním využití se k ceně připočítává 19 % DPH.
Parametry nemovitosti
| Stáří | Nad 50 let |
|---|---|
| Číslo inzerátu | 989715 |
| Cena za jednotku | 6 € / m2 |
| Dostupné od | 4. 3. 2026 |
|---|---|
| Plocha nebytového prostoru | 160 m² |
Co tato nemovitost nabízí?
| MHD 1 minuta pěšky |
V okolí nemovitosti najdete
MHDWalter-Gropius-Platz
🚶 116 m (1 min)
PoštaCiao Agip
🚶 822 m (10 min)
ObchodMarx
🚶 451 m (5 min)
BankaKreissparkasse Reutlingen
🚘 1 895 m (6 min)
Restaurace
🚶 134 m (2 min)
LékárnaHohbuch-Apotheke
🚘 899 m (4 min)
ŠkolaBodelschwinghschule
🚶 485 m (6 min)
Mateřská školaStädtisches Kinderhaus Pestalozzistraße 90/92
🚶 220 m (3 min)
SportovištěPraxis Birgel Physio Wellness Sport
🚶 50 m (1 min)
Hřiště
🚶 153 m (2 min)
Vzdálenost k:
Měsíční nájemné950 €
+ Poplatky za služby200 €
+ Vratná kauce2 000 €
Stále hledáte to pravé?
Nastavte si hlídacího psa. Nabídky vybrané na míru dostanete souhrnně 1× denně e-mailem. S Premium profilem máte k ruce hlídačů rovnou 5 a když se něco objeví, informují vás obratem.









