
Pronájem bytu 2+1 • 62 m² bez realitkyPříbramská, Verneřice - Verneřice, Ústecký kraj
Příbramská, Verneřice - Verneřice, Ústecký krajČástečně vybaveno • Parkování • Sklep 3 m² • Lodžie 3 m²Vyžadováno pojištění odpovědnostiVyžadováno ověření bezdlužnostiMáte o nabídku zájem?
Ušetřete 10 500 Kč na provizi a komunikujte se všemi majiteli.
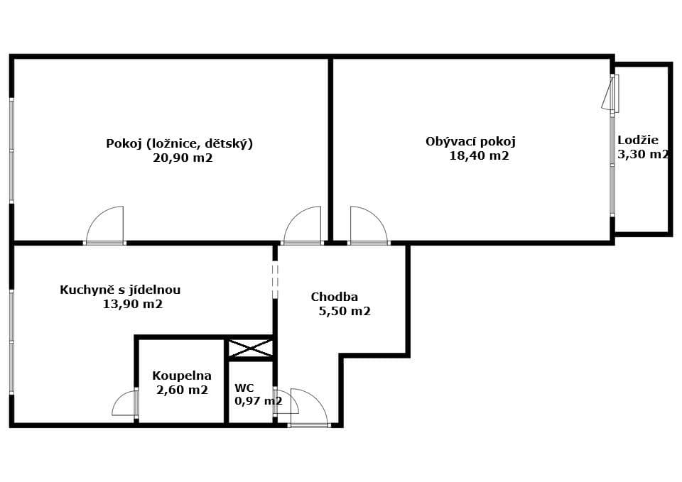
K dlouhodobému pronájmu nabízím světlý byt 2+1 o podlahové ploše 62,30 m2 s lodžií a krásným výhledem do okolní krajiny. Byt se nachází ve 3. NP bytového domu bez výtahu. V letech 2022-2023 prošel dům celkovou revitalizací, která zahrnovala novou zateplenou fasádu, výměnu oken za trojskla, nové vchody a kompletní nové rozvody vody a odpadů.
Obývací pokoj s lodžií o velikosti 3,30 m2 je orientován na jih, kuchyně a ložnice jsou orientovány na sever. Ložnice je prostorná a nabízí možnost variabilního využití prostoru - při vhodném rozmístění nábytku nebo použití pokojového paravanu lze vytvořit útulný oddělený koutek pro více soukromí. WC samostatné, koupelna osazena vanou.
K bytu náleží sklepní kóje. Parkování je možné na ulici před domem.
Verneřice nabízejí velmi dobrou občanskou vybavenost (MŠ, ZŠ, BUS, zdravotní středisko, potraviny, restaurace, řeznictví, pošta, bankomat, Městský úřad, sportovní klub, posilovna i dětská hřiště).
Vzdálenost do okolních měst: Děčín 21 km, Litoměřice 22 km, Česká Lípa 23 km, Ústí nad Labem 27 km.
Byt bude k dispozici cca od poloviny února.
Hledáme spolehlivého a slušného nájemce.
V okolí nemovitosti najdete
Máte o nabídku zájem?
Ušetřete 10 500 Kč na provizi a komunikujte se všemi majiteli.
Stále hledáte to pravé?
Nastavte si hlídacího psa. Nabídky vybrané na míru dostanete souhrnně 1× denně e-mailem. S Premium profilem máte k ruce hlídačů rovnou 5 a když se něco objeví, informují vás obratem.




















