
Prodej bytu 1+kk • 40 m² bez realitkyHnězdenská, Praha - Troja
Využít program Bydlím hned, koupím později
Nabízím k prodeji nadstandardně velký a světlý byt 1+kk se spací nikou v lokalitě Praha 8 Troja. Byt je orientovaný na jih do klidného vnitrobloku a nachází se ve 3. patře moderního domu s nadstandardním servisem a bezpečím.
Dispozice a vybavení:
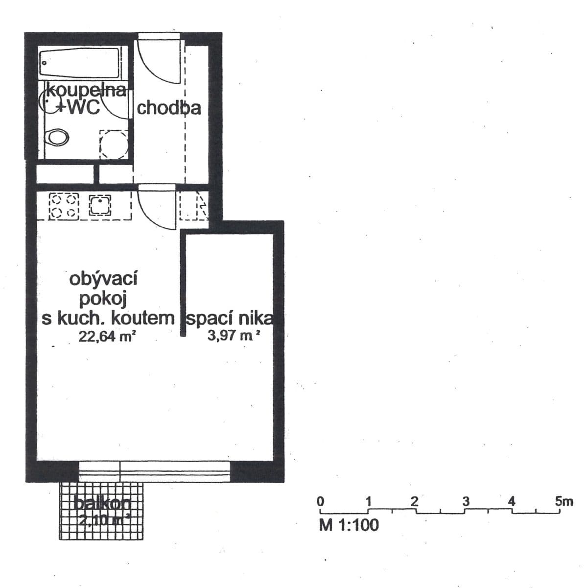
Interiér (35,9 m²): Velkorysý obývací pokoj s chytře řešenou spací nikou, která poskytuje soukromí oddělené od denní části, koupelna s vanou a předsíň s úložnými prostory.
Balkon (2,2 m²) do vnitrobloku.
Zděný sklep (2,6 m²) s bezpečnostními dveřmi.
Dům: Vchod je vybaven dvěma výtahy (jeden je větší, což oceníte při stěhování i velkých nákupech) a bezbariérovým přístupem. Dům je hlídán nonstop ostrahou. V domě je dostupná optika pro připojení k internetu.
Lokalita:
Doprava: Zastávka autobusu jen 150 m od domu (7 min na metro C Kobylisy). Parkování je možné u domu (nejsou zde zóny) nebo je možné si pronajmout parkovací stání v suterénu budovy.
Příroda: Je možná sousedská permanentka do Botanické zahrady za manipulační poplatek. V okolí také Čimický háj a mnoho další zeleně, včetně Trojské kotliny.
Vybavenost: V docházkové vzdálenosti OC Krakov, poliklinika, pošta a kompletní síť obchodů.
Parametry nemovitosti
| Dostupné od | 13. 2. 2026 |
|---|---|
| Konstrukce budovy | Skeletová |
| Vybaveno | Částečně |
| Číslo inzerátu | 990916 |
| PENB | C - Úsporná |
| Užitná plocha | 40 m² |
| Cena za jednotku | 159 750 Kč / m2 |
| Stav | Velmi dobrý |
|---|---|
| Dispozice | 1+kk |
| Podlaží | 3. podlaží z 16 |
| Vlastnictví | Osobní |
| Umístění | Sídliště |
| Rizika | Prověřit » |
Vybíráte byt?
Mějte jistotu, že máte všechny důležité informace!
Co tato nemovitost nabízí?
| Balkón 2,2 m² | |
| Sklep 2,6 m² | |
| Výtah |
| Bezbariérový přístup | |
| Parkování |
V okolí nemovitosti najdete
Využít program Bydlím hned, koupím později
Stále hledáte to pravé?
Nastavte si hlídacího psa. Nabídky vybrané na míru dostanete souhrnně 1× denně e-mailem. S Premium profilem máte k ruce hlídačů rovnou 5 a když se něco objeví, informují vás obratem.


















