Pronájem nebytového prostoru 3+1 • 103 m² bez realitkyUellendahler Straße 332 Wuppertal Uellendahl-Katernberg Nordrhein-Westfalen 42109
Uellendahler Straße 332 Wuppertal Uellendahl-Katernberg Nordrhein-Westfalen 42109MHD 2 minuty pěšky • ParkováníK pronájmu je nabízena atraktivní a funkčně řešená komerční jednotka s přibližně 103 m² užitné plochy, která se nachází na velmi viditelném místě ulice Uellendahler (v úrovni McDonald’s).
Nemovitost se ideálně hodí pro systémovou gastronomii, rychlé občerstvení, take-away, rozvoz nebo podobné koncepty.
Jednotka zaujme velkou prosklenou fasádou směřující k ulici, která zaručuje dobrou viditelnost, možnosti reklamní prezentace a celkovou přítomnost.
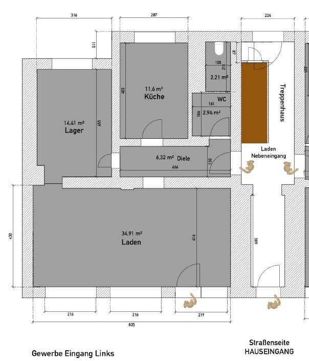
Plány ploch & dispozice
Užitná plocha je rozdělena následovně:
• cca 74 m² pro kuchyň, jídelnu, další vedlejší místnost (např. kancelář nebo příprava) a toaletu
• cca 29 m² samostatné plochy/sklad
• štědře prostorná chladírna pro skladování zboží
Tato dispozice nabízí ideální předpoklady jak pro čistý rozvozový provoz, tak pro take-away s kontaktem se zákazníky.
Vybavení a zvláštnosti
• Moderní, výkonný odsávací systém
• Prostorná chladírna
• Velká prosklená fasáda s výrazným vnějším působením
• Praktická a flexibilně využitelná struktura prostor
• Dobré předpoklady pro různé gastronomické koncepty
Parkovací možnosti
K nemovitosti je zahrnuta jedna parkovací stání a je možné si pronajmout až další maximálně 3 parkovací místa pro osobní automobily – ideální pro zaměstnance, rozvozy apod. Parkovací stání se nacházejí v nádvoří.
Jednotka se nachází na ulici Uellendahler, která je frekventovanou hlavní dopravní tepnou se stabilním průtokem zákazníků.
Je zde zajištěno dobré napojení jak na individuální dopravu, tak na veřejnou dopravu. Okolní obytná a komerční zóna nabízí solidní základnu zákazníků pro rozvozové a vyzvedávací koncepty.
V současné době existuje povolení pro využití jako systémová gastronomie, rychlé občerstvení, take-away nebo rozvoz. Pronajímatel je otevřený případným změnám využití, za předpokladu férového a ekonomicky rozumného řešení nájemného nebo nájmu, které lze vzájemně dohodnout.
V okolí nemovitosti najdete
Stále hledáte to pravé?
Nastavte si hlídacího psa. Nabídky vybrané na míru dostanete souhrnně 1× denně e-mailem. S Premium profilem máte k ruce hlídačů rovnou 5 a když se něco objeví, informují vás obratem.






