Pronájem kanceláře • 58 m² bez realitkyTratmoos 22 Niederneuching / Wolfsleben Wolfsleben Bayern 85467
Tratmoos 22 Niederneuching / Wolfsleben Wolfsleben Bayern 85467MHD 9 minut pěšky • ParkováníObchodní jednotka o rozloze 58 m² se nachází v 1. patře (bez výtahu) v obchodní budově, která celkem obsahuje pět obchodních jednotek ve Wolfsleben / obchodní zóně Tratmoos. Každé obchodní jednotce je na pozemku přiděleno parkovací místo, které je zahrnuto v ceně nájmu. Další parkovací místa lze využít na veřejné ulici.
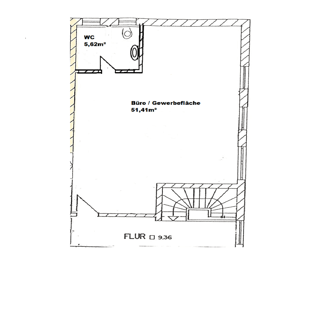
Jednotka nabízí díky četným oknům optimální osvětlení denním světlem. Je vybavena WC a umyvadlem. K dispozici je také malá kuchyňka, kterou lze převzít zdarma, nebo využít existující přípojky pro vlastní kuchyňské vybavení.
Tichá a malá obchodní zóna Tratmoos patří k správnímu společenství Oberneuching, sestávajícímu z obcí Neuching a Ottenhofen. Část Wolfsleben je dosažitelná po silnici ST 2082, která vede z Kirchheim až do Erdingu. Wolfsleben se nachází v jižní části Erdinger Moos, severně od Speichersees a přibližně 24 km severovýchodně od hlavního města Bavorska – Mnichova.
Díky dobrému dopravnímu spojení je možné rychle dosáhnout jak Mnichova (cca 25 minut jízdy autem, 24 km), tak okresního města Erding (cca 10 minut jízdy autem, 7,5 km) a letiště (21 minut jízdy autem, 18 km). Přístup k S-Bahn je možný ve stanici Sankt Koloman S2 (cca 7 minut, 5 km) nebo Ottenhofen S2 (cca 7 minut, 6 km).
Díky východní průjezdné silnici Flughafentangente Ost, dosáhnete připojovací stanice A94 u Markt Schwaben (cca 13 minut, 14,5 km), letiště (cca 21 minut, 18 km) a připojovací stanice A92 u Erdingu (cca 21 minut, 21 km). Silnici A99 se zastávkou Kirchheim pohodlně dosáhnete po ST 2082 (cca 14 minut, 13 km) a přes silnici B388 pak i silnici A9 se zastávkou Garching Süd (cca 19 minut, cca 17 km).
V obchodní jednotce je zajištěno optické připojení pro telefon a internet a také domovní interkom. U poskytovatele Deutsche Glasfaser máte možnost objednat připojení s rychlostí od 300 Mbit/s stahování / 150 Mbit/s odesílání až po 1000 Mbit/s stahování / 500 Mbit/s odesílání. Skvělá volba pro každého profesionálního uživatele internetu!
Kancelářská plocha 58 m² za 640,00 € + provozní náklady 150,00 € plus zákonná DPH.
Kauce: 3 měsíční nájmy.
Pronájem pouze pro podnikatele nebo volné povolání.
Obchodní daňový koeficient pro obec Neuching: 370.
Pronájem nejdříve od 01.04.2026.
Pronájem přímo od vlastníka.
Parametry nemovitosti
| Stáří | Nad 50 let |
|---|---|
| Stav | Dobrý |
| Číslo inzerátu | 991646 |
| Cena za jednotku | 11 € / m2 |
| Dostupné od | 1. 4. 2026 |
|---|---|
| Podlaží | 1. podlaží |
| Plocha kanceláře | 58 m² |
Co tato nemovitost nabízí?
| MHD 9 minut pěšky |
| Parkování |
V okolí nemovitosti najdete
Stále hledáte to pravé?
Nastavte si hlídacího psa. Nabídky vybrané na míru dostanete souhrnně 1× denně e-mailem. S Premium profilem máte k ruce hlídačů rovnou 5 a když se něco objeví, informují vás obratem.











