Prodej bytu 3+1 • 74 m² bez realitkyHugo-Bröcker-Str. 34 Hamm Hamm Nordrhein-Westfalen 59067
Hugo-Bröcker-Str. 34 Hamm Hamm Nordrhein-Westfalen 59067MHD 1 minuta pěškyŽádná dodatečná makléřská provize
Popis:
Tento půvabný vícebytový dům byl původně postaven v roce 1923, po přestavbě v roce 1953 a nyní, v letech 2024/2025, byl kvalitně kompletně zrekonstruován až na jádro a uveden do souladu s aktuálními technologickými standardy. Jedním z hlavních lákadel jsou jistě trojitě zasklená okna včetně tepelně oddělených žaluziových skříní, které jsou elektricky ovládané. Masivní stavební provedení s pevnými vnějšími zdmi a stabilním sklepním stropem zajišťuje vynikající kvalitu stavby, přičemž stropy pater ve dřevěné konstrukci zůstaly zachovány.
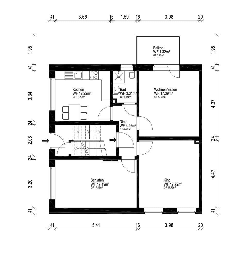
Na prodej jsou čtyři kompletně zrekonstruované vlastnické byty s obytnou plochou mezi 59 m² a 79 m²:
• Přízemí (175.900 €): 78 m², 3 pokoje, s vlastním malým dvorkem/zahrádkou, balkonem a sklepním kójem
• 1. patro (180.000 €): Rezervováno
• 2. patro (167.900 €): 73 m², 3 pokoje, obdobné jako v 1. patře, ovšem bez balkonu, se sklepním kójem
• Půda (148.000 €): 59 m², 3 pokoje, s dalším sklepním kójem
Všechny byty jsou poprvé k nastěhování po provedené komplexní renovaci!
Nemovitost se nachází v klidné rezidenční oblasti Hamm. Ustanovená sousedská komunita a málo frekventovaná ulice vytvářejí příjemné a uvolněné bydlení. Obzvláště atraktivní je blízkost parku Friedrich-Ebert, který je dosažitelný během několika minut a zve k procházkám, sportovním aktivitám či relaxaci v přírodě. Zároveň jsou obchodní možnosti, školy, mateřské školy a veškeré zařízení pro každodenní potřeby rychle dostupné. Centrum Hamm se nachází jen pár minut cesty a nabízí řadu nákupních i volnočasových příležitostí. Výborné napojení na veřejnou dopravu i regionální silniční síť pak zajišťuje krátké cesty v každodenním životě.
Popis vybavení:
Stěny:
– Tapetovány texturou Raufaser ve všech místnostech kromě koupelny
– Bíle natřeny ve všech místnostech, v koupelně je šedá akcentní zeď
Koupelna:
– Bílý obklad ve formátu 30×60 cm
– V oblasti sprchy je stěna přes celou výšku místnosti, v oblasti toalety pouze do poloviny výšky
– Hladký textilní povlak s bílým nátěrem a šedou akcentní zdí
Podlahy:
– Kvalitní designové PVC s integrovaným tlumením kročivého hluku v přírodní dřevěné optice
– Položeno souvisle ve všech místnostech
Stropy:
– Sestropy ve vstupní chodbě a koupelně s integrovanými stropními svítidly
– Hladce spárované a natřené
– Nátěr: bílý
Okna:
– Trojitě zasklená otočná/sklopná okna s tepelně izolačním sklem (U-hodnota 0,6)
– Materiál: plast, barva: bílá
– Okenní otvory jsou dodatečně izolovány
Žaluzie:
– Plastové rolety, barva: bílá
– Tepelně oddělená skříň pro rolety
– Elektricky ovladatelné
Elektroinstalace:
– Hlavní rozvaděč se nachází ve sklepě
– Podřízená rozvodna v každém bytě
– Trojžilové kabely
Vchodové dveře bytu:
– Masivní dřevěné dveře, barva: bílá
– Klimatická třída II
– Optimalizovány pro zvukovou izolaci
Hlavní vchodové dveře:
– Hliníkové dveře, barva: šedá s třemi světlovými výřezy
– Kování: vně – tyčový klič z nerezové oceli, uvnitř – U-tvarový tlačítko z nerezové oceli
– U-hodnota: 1,3 W/m²K
Topení a topné tělesa:
– Plynové ústřední topení
– Radiátory ve všech místnostech, barva: bílá
– Ruční (sušinkové) radiátory v koupelně
Instalace sanitárního vybavení:
Jídelní kuchyně:
– Jeden studený a jeden teplovodní přípojka, jeden odpadní přípojka
– Nové vodovodní potrubí
Sprcha:
– Pro sprchu a umyvadlo je každý jeden studený a teplovodní přípojka, pro toaletu jeden studený
– Chromovaný držák na sprchu
– Sprchová příčka ze skla
– Nové vodovodní potrubí
Toaleta:
– Jedna zadní splachovací zavěšená toaleta v bílé barvě
– Vestavěný systém splachování od Geberit
Horní strop patra a sklepní strop:
– Izolovány pomocí polystyrenové tvrdé pěny
Protipožární ochrana:
– Optimalizovaná opatření proti požáru dle aktuálních předpisů spolkové země NRW
– Protipožární sklepní dveře T-30 včetně protipožární obložení stěn T-90
– Systém odvodu kouře a tepla (RWA)
V okolí nemovitosti najdete
Stále hledáte to pravé?
Nastavte si hlídacího psa. Nabídky vybrané na míru dostanete souhrnně 1× denně e-mailem. S Premium profilem máte k ruce hlídačů rovnou 5 a když se něco objeví, informují vás obratem.










