
Prodej bytu 5+1 • 108 m² bez realitkyMähdachstraße 8 Stuttgart Weilimdorf Baden-Württemberg 70499
Mähdachstraße 8 Stuttgart Weilimdorf Baden-Württemberg 70499MHD 4 minuty pěšky • GarážDas im Jahr 1966 errichtete Mehrfamilienhaus präsentiert sich in einem äußerst gepflegten Gesamtzustand.
Vícefazový dům postavený v roce 1966 se pyšní mimořádně udržovaným celkovým stavem.
Die Immobilie wurde über die Jahre hinweg kontinuierlich instand gehalten, sodass aktuell kein Sanierungsstau besteht.
Nemovitost byla v průběhu let nepřetržitě udržována, takže v současnosti nedochází k žádnému zanedbávanému opravářskému stavu.
Die Öl-Zentralheizung wurde bereits vorausschauend durch eine Solarthermie ergänzt.
Ropné ústřední topení bylo proaktivně doplněno solární termikou.
Besonders hervorzuheben ist das großzügige Grundstück mit einer Fläche von ca. 1.102 m².
Zvláště je třeba vyzdvihnout prostorný pozemek o rozloze cca 1.102 m².
Die weitläufige Außenfläche verleiht dem Objekt eine angenehme Großzügigkeit, schafft Abstand zur Nachbarbebauung und trägt maßgeblich zur ruhigen und offenen Wohnatmosphäre bei.
Rozlehlá venkovní plocha dává objektu příjemný pocit prostornosti, zajišťuje odstup od sousedních staveb a výrazně přispívá k klidné a vzdušné obytné atmosféře.
Bei der Wohnung handelt es sich um eine lichtdurchflutete Maisonettewohnung mit besonderem Charme.
Byt se jedná o světlý duplexový byt s osobitým šarmem.
Großzügige Fensterflächen sorgen auf beiden Ebenen für eine helle, freundliche Atmosphäre.
Štědrá světlost přes velká okna na obou úrovních zajišťuje světlou a přívětivou atmosféru.
Ein weiterer Pluspunkt ist der Weitblick über die Mähdachwiese bis hin zum Schloss Solitude.
Dalším plusem je výhled přes střihanou střešní louku až k zámku Solitude.
Im Jahr 2016 wurde die Wohnung umfassend saniert.
V roce 2016 byl byt kompletně zrekonstruován.
In diesem Zuge wurde die Elektrik vollständig erneuert, die Bäder modern und zeitlos gestaltet sowie sämtliche Zimmer mit hochwertigen Bodenbelägen ausgestattet.
V rámci této rekonstrukce byla kompletně obnovená elektroinstalace, koupelny byly navrženy moderně a nadčasově a všechny místnosti byly vybaveny kvalitními podlahovými krytinami.
Kleinere Reparaturen wurden in 2026 durchgeführt wodurch sich die Wohnung in einem gepflegten, bezugsfertigen Zustand befindet.
Menší opravy byly provedeny v roce 2026, díky čemuž se byt nachází v udržovaném a ihned k nastěhování připraveném stavu.
Man gelangt in die Wohnung über das 2. Obergeschoss oder das Dachgeschoss.
Do bytu se vstupuje buď přes 2. patro, nebo přes podkrovní patro.
Die beiden Wohnungstüren wurden im Zuge der Sanierung 2016 durch hochwertige Schallschutztüren ersetzt.
Obě vstupní dveře bytu byly v rámci rekonstrukce v roce 2016 nahrazeny kvalitními protihlukovými dveřmi.
Der einladende Flur im 2. OG bietet eine praktische Nische für eine Garderobe sowie einen maßgefertigten Einbauschrank, der neben der integrierten Elektrik zusätzlichen Stauraum schafft.
Příjemná chodba v 2. patře nabízí praktický koutek pro věšák a zakázkovou vestavěnou skříň, která spolu s integrovanou elektroinstalací poskytuje dodatečný úložný prostor.
Die separate Küche verfügt über einen eigenen kleinen Nordbalkon – dieser lädt sowohl zu einem morgendlichen Kaffee im Grünen als auch als kühler Rückzugsort an heißen Sommertagen ein.
Samostatná kuchyň disponuje vlastním malým severním balkonem – ten zve k ranní kávě uprostřed zeleně i k příjemnému útočišti v horkých letních dnech.
Die hochwertige Einbauküche ist im Kaufpreis enthalten und lässt sich nach Belieben umgestalten (wir haben auf einer Seite eine Bar integriert, hier lässt sich alternativ aber auch 2 Meter Küchenschrank mit großer Arbeitsfläche installieren).
Kvalitní vestavěná kuchyň je součástí kupní ceny a lze ji upravit dle vlastních představ (my jsme na jedné straně integrovali bar, alternativně lze zde umístit například dva metry kuchyňské skříně s prostornou pracovní plochou).
Außerdem befindet sich auf dieser Ebene ein großzügiges Wohnzimmer sowie eines der möglichen Schlafzimmer mit Zugang zum großen Südbalkon.
Na této úrovni dále naleznete prostorný obývací pokoj a jednu z možných ložnic s přístupem na velký jižní balkon.
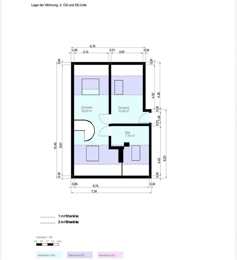
Nach Norden ausgerichtet befindet sich der dritte Raum des 2.OG, der sich perfekt als Büro oder Kinderzimmer eignet.
Třetí místnost v 2. patře, orientovaná na sever, se skvěle hodí jako kancelář nebo dětský pokoj.
Ein Gäste-WC mit indirektem Tageslicht sowie ein Tageslichtbad mit großer Dusche vervollständigen die Räume auf dieser Ebene.
K bytu patří také hostinská toaleta s nepřímým denním světlem a koupelna s denním světlem vybavená velkou sprchou, které doplňují nabídku místností na této úrovni.
Über eine elegante Wendeltreppe gelangt man in das Dachgeschoss.
Elegantním závitovým schodištěm se dostanete na podkrovní patro.
Hier eröffnet sich ein weiteres großzügiges Zimmer, das sich flexibel als Homeoffice, Spielzimmer oder Rückzugsbereich nutzen lässt.
Zde se otvírá další prostorná místnost, kterou je možné flexibilně využít jako domácí kancelář, hernu či relaxační zónu.
Ergänzt wird diese Ebene durch ein weiteres mögliches Schlafzimmer und ein großes Tageslichtbad mit ebenerdiger Dusche.
Tato úroveň je dále doplněna o další možnou ložnici a velkou koupelnou s denním světlem a bezprahovou sprchou.
Die Anschlüsse für Waschmaschine und Trockner sind in diesem Bad bereits vorhanden.
V této koupelně již jsou zajištěny přípojky pro pračku a sušičku.
Optional besteht zudem die Möglichkeit, das Bad um eine Eckbadewanne zu ergänzen und so eine kleine Wellness-Oase zu schaffen.
Je také možné volitelně koupelnu rozšířit o rohovou vanu a vytvořit tak malou wellness oázu.
Im Untergeschoss gibt es die Möglichkeit eine Waschmaschine und Trockner zu stellen.
V suterénu je možné umístit pračku a sušičku.
Außerdem gibt es einen separaten Trockenraum.
Dále se zde nachází samostatná sušárna.
Zusätzlich gehört zu der Wohnung ein großzügiger Kellerraum.
Kromě bytu náleží i prostorný sklep.
Die Wohnung befindet sich in begehrter und angenehm ruhiger Wohnlage im Stadtbezirk Stuttgart-Weilimdorf.
Byt se nachází v žádané a příjemně klidné lokalitě městské části Stuttgart-Weilimdorf.
Die Mähdachstraße steht für ein gepflegtes, gewachsenes Wohnumfeld mit viel Grün, angenehmer Nachbarschaft und einer entspannten Atmosphäre – ideal für alle, die stadtnah wohnen und dennoch Ruhe genießen möchten.
Ulice Mähdachstraße představuje udržované, vyzrálé obytné prostředí s bohatou zelení, příjemným sousedstvím a uvolněnou atmosférou – ideální pro všechny, kteří chtějí žít blízko města a zároveň si užívat klidu.
Weilimdorf zählt zu den besonders gefragten Wohnlagen im Nordwesten Stuttgarts.
Weilimdorf patří mezi obzvlášť žádané obytné oblasti na severozápadě Stuttgartu.
Hier verbindet sich urbaner Komfort mit hoher Lebensqualität.
Zde se městský komfort spojuje s vysokou kvalitou života.
Das charmante Ortszentrum bietet vielfältige Einkaufsmöglichkeiten, Wochenmärkte, Bäckereien, Cafés und Restaurants.
Okouzlující místní centrum nabízí rozmanité možnosti nákupů, týdenní trhy, pekárny, kavárny i restaurace.
Ärzte, Apotheken, Banken sowie sämtliche Einrichtungen des täglichen Bedarfs befinden sich in komfortabler Reichweite.
Lékaři, lékárny, banky a veškeré služby každodenní potřeby jsou v komfortní dostupnosti.
Die Verkehrsanbindung ist hervorragend:
Dopravní spojení je vynikající:
Über die U-Bahnlinie U6 ab Weilimdorf Löwen-Markt erreicht man die Stuttgarter Innenstadt schnell und bequem.
Linkou metra U6 z Weilimdorf Löwen-Markt se do centra Stuttgartu dostanete rychle a pohodlně.
Zusätzlich besteht eine sehr gute Anbindung an das S-Bahn-Netz von der Haltestelle Korntal aus.
Kromě toho je ze zastávky Korntal zajištěno velmi dobré připojení na S-Bahn síť.
Damit profitieren Berufspendler ebenso wie Freizeitaktive von maximaler Flexibilität.
Tím mají z maximální flexibility prospěch jak dojíždějící, tak lidé volnočasově aktivní.
Auch die Autobahnen A81 und A8 sind in kurzer Fahrzeit erreichbar.
I dálnice A81 a A8 jsou dosažitelné během krátké jízdy.
Ein besonderes Highlight dieser Lage ist die unmittelbare Nähe zu weitläufigen Feldern, Wiesen und Waldgebieten.
Zvláštním lákadlem této lokality je bezprostřední blízkost k rozlehlým poli, loukám a lesním oblastem.
Ob morgendlicher Jogginglauf, entspannter Spaziergang oder Fahrradtour – die Natur beginnt praktisch vor der Haustür und schafft einen idealen Ausgleich zum Alltag.
Ať už jde o ranní běh, poklidnou procházku nebo cyklistický výlet – příroda začíná prakticky přímo za domem a poskytuje ideální únik od každodenního shonu.
Familien schätzen die ausgezeichnete Infrastruktur mit Kindergärten, Schulen und zahlreichen Sport- und Freizeitangeboten.
Rodiny oceňují vynikající infrastrukturu s mateřskými školami, školami a množstvím sportovních a volnočasových aktivit.
Gleichzeitig ist die Umgebung geprägt von einer wertstabilen, gepflegten Bebauung, die für eine nachhaltige Wohnqualität steht.
Okolí je zároveň charakterizováno hodnotově stabilní a udržovanou zástavbou, která zaručuje trvale vysokou kvalitu bydlení.
Die hochwertige Einbauküche inklusive Elektrogeräte ist im Kaufpreis enthalten.
Kvalitní vestavěná kuchyň včetně elektrospotřebičů je součástí kupní ceny.
In dem Hausgeld sind bereits die monatlichen Rücklagen sowie ein Rundum-sorglos-Paket mit Treppenhaus-Reinigung, Winterdienst und Grünpflege enthalten.
V domovním fondu jsou již zahrnuty měsíční rezervy a komplexní servisní balíček zahrnující úklid schodiště, zimní služby a údržbu zeleně.
Zwei abschließbare Einzelgaragen können für je 20.000€ erworben werden.
Dvě uzamykatelné samostatné garáže je možné zakoupit za 20.000 € za každou.
V okolí nemovitosti najdete
Stále hledáte to pravé?
Nastavte si hlídacího psa. Nabídky vybrané na míru dostanete souhrnně 1× denně e-mailem. S Premium profilem máte k ruce hlídačů rovnou 5 a když se něco objeví, informují vás obratem.



