Pronájem domu 5+1 • 129 m² bez realitky, Šlesvicko-Holštýnsko
, Šlesvicko-HolštýnskoMHD do minuty pěškyAhoj,
pronajímáme dvě novostavby řadových domů (cca 129 m²) KfW 40 v Mildstedt (25866) od 1. dubna 2026. Dům disponuje moderní vestavěnou kuchyní, podlahovým vytápěním a vzduchovým tepelným čerpadlem. Ke každé polodvojdomu náleží slunná terasa, zahradní část (cca 400 m²) a přístupný podkroví. Volitelně je k dispozici také carport se sklepním prostorem a parkovací místo. Zahrada je ve fázi úpravy.
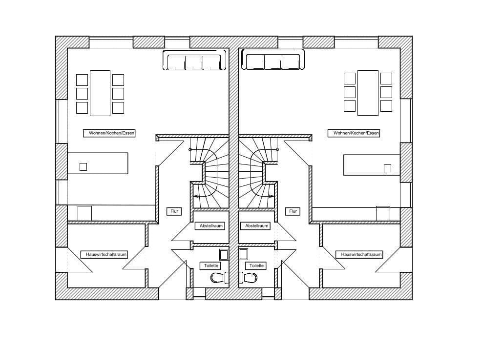
Přízemí nabízí jako hlavní lákadlo prostorný společenský prostor s otevřenou kuchyní vedoucí do obývacího pokoje. Dále zahrnuje technickou místnost, hostinský záchod a malý úložný prostor.
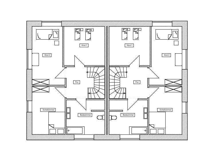
Patro se skládá ze tří ložnic a koupelny s vanou a sprchou.
Podkroví je rovněž prostorné.
Dům je vybaven fotovoltaickou elektrárnou a úložným systémem a nabízí možnost připojení pro elektrické nabíjení.
Vybavení:
- Carport a parkovací místo jsou k dispozici přímo před domem
- Koupelna s vanou, navíc hostinský záchod
- Terasa (jižní orientace) s vlastní zahradou
- Úložný prostor pro kola
- Přízemí: obývací prostor s otevřenou kuchyní, hostinský záchod, technická místnost
- Patro: tři pokoje, koupelna
- Podkroví: úložný prostor
Lokalita se vyznačuje klidným prostředím na konci ulice, přitom se nachází v centru Mildstedt.
Díky blízkému cyklostezce máte rychlé auto i cyklistické spojení do Husumu. Mildstedt nabízí vynikající školu (základní a s pomocnou výchovou) a kompletní občanskou vybavenost. Lékaři, lékárna a nákupní i restaurační zařízení jsou dosažitelné pěšky za méně než 5 minut. Další střední školy a centrum Husumu jsou dostupné do 15 minut na kole. Nejbližší zastávka MHD je vzdálena cca 200 m. Mildstedt se vyznačuje bohatým společenským a klubovým životem a je považován v celoregionálním měřítku za vysoce atraktivní lokalitu k bydlení.
Také většina zařízení středního centra okresního města Husum (např. bazén) je velmi dobře dostupná (cca 15 minut na kole). Koupaliště a místa pro surfování na Severním moři jsou dosažitelná přibližně 15 minut autem a 30 minut na kole. Další možnosti koupání v krytém bazénu v Rantrumu a řeka Treene ve Schwabstedtu jsou také dobře dostupné na kole.
Mildstedt se nachází centrálně mezi Sankt-Peter-Ording a Sylt a také mezi severofrizskými ostrovy, což představuje ideální výchozí bod pro jednodenní výlety do těchto oblastí. Husumer nádraží je také cca 10 minut na kole od domu.
- Domácí mazlíčci nejsou vítáni
- Provozní náklady cca 100 €/měsíc
V rámci dotazu prosíme o vyplnění vlastního sebehodnocení.
V okolí nemovitosti najdete
Stále hledáte to pravé?
Nastavte si hlídacího psa. Nabídky vybrané na míru dostanete souhrnně 1× denně e-mailem. S Premium profilem máte k ruce hlídačů rovnou 5 a když se něco objeví, informují vás obratem.




