Prodej bytu 6+kk • 156 m² bez realitkyHlubočepská, Praha - Hlubočepy
Hlubočepská, Praha - HlubočepyČástečně vybavenoVyužít program Bydlím hned, koupím později
Vlastník nabízí k prodeji dům v klidné části Prahy 5 v Hlubočepích v blízkosti MHD - Metro Smíchovské nádraží 5 minut autem.
Dům se sestává z 3 jednotek, z nichž předmětem prodeje jsou 2 jednotky (79 % domu), které mohou být užívány odděleně nebo společně, záleží na novém vlastníkovi.
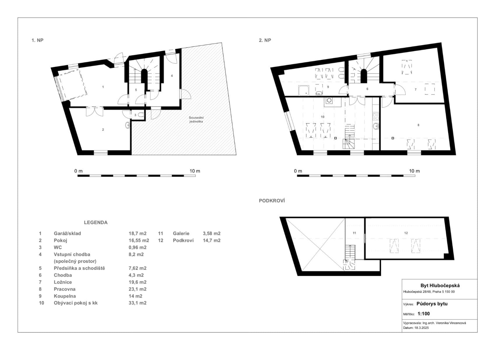
Jednotka č. 1 je byt 4kk o výměře 120 m2 se nachází v prvním patře domu a zahrnuje malou předsíň, schodiště, chodbu, obývací pokoj s kuchyňským koutem, ložnici, pracovnu, koupelnu s WC a ložnici v podkrovním prostoru.
Jednotka č. 2 zapsaná v KN jako dílna/provozovna, avšak rekonstruovaná jako součást obytného prostoru o výměře 36,21 se nachází v přízemí domu a tvoří ji vnitřní zateplený prostor, který je přístupný buď vlastními zabezpečenými dveřmi z ulice nebo garážovými vraty a dále místnost s WC a umyvadlem, která může mít také vlastní vstup z ulice.
Obě jednotky jsou po rekonstrukci a celý prostor je velmi variabilní z hlediska užívání i přístupu. Celou jednotku, ale i kteroukoliv z jejích 2 částí je možné využívat nezávisle na sobě nebo jako funkční celek s jednotkou č. 1.
Vlastník prodává obě jednotky (podíl na celém domě cca 79 %) dohromady. Celek má investiční potenciál, kdy je možné celou jednotku č. 2 oddělit a pronajímat jako obchod, provozovnu, sklad, nebo i kancelář.
Prostory jsou vytápěny plynovým kotlem a krbem a jsou vybaveny nábytkem kuchyňskou linkou a spotřebiči. V koupelna je vana i sprchový kout.
Na jednotkách nevázne žádné zástavní, ani jiné právo. Dům je ve velmi dobrém stavu. V domě není zřízeno SVJ. Pro parkování je možno využít prostor před domem, nebo přímo v domě. V bezprostřední blízkosti se nachází přírodní rezervace Prokopské údolí, Dalejský potok a Děvín a zároveň je k dispozici veškerá občanská vybavenost, mateřská i základní škola, prodejny potravin, cukrárna-kavárna, wellness centrum, pizzerie, restaurace a další služby. MHD autobusová zastávka přímo u domu, vlak 150 m, tramvaj 1,5 km.
Parametry nemovitosti
| Dostupné od | 17. 2. 2026 |
|---|---|
| Konstrukce budovy | Cihla |
| Vybaveno | Částečně |
| Číslo inzerátu | 992088 |
| PENB | E - Nehospodárná |
| Užitná plocha | 156 m² |
| Cena za jednotku | 99 294,87 Kč / m2 |
| Stav | Velmi dobrý |
|---|---|
| Dispozice | 6+kk |
| Podlaží | 2. podlaží z 2 |
| Vlastnictví | Osobní |
| Umístění | Klidná část |
| Rizika | Prověřit » |
Vybíráte byt?
Mějte jistotu, že máte všechny důležité informace!
Co tato nemovitost nabízí?
V okolí nemovitosti najdete
Využít program Bydlím hned, koupím později
Stále hledáte to pravé?
Nastavte si hlídacího psa. Nabídky vybrané na míru dostanete souhrnně 1× denně e-mailem. S Premium profilem máte k ruce hlídačů rovnou 5 a když se něco objeví, informují vás obratem.















