Prodej pozemku • 20000 m² bez realitkyWellerstrasse 18, , Sasko
Wellerstrasse 18, , SaskoMHD 7 minut pěškyPřímo od majitele se nabízí přibližně 20.000 m² velká průmyslová parcela s B-plánem a velmi dobrou dopravní dostupností v blízkosti letiště Lipsk/Hala a dálnicového uzlu.
Pozemek se nachází v komerčně orientované oblasti a je vhodný pro různé způsoby využití v souvislosti s logistikou, službami nebo ubytováním.
Je k dispozici právně platný územní plán, který umožňuje rychlou stavební realizaci. Podle ustanovení územního plánu je povolena výstavba s hrubou zastavěnou plochou (HZP) až přibližně 20.000 m². Koeficient zastavěnosti (GRZ) činí 0,8. Povolená výška budovy se – v závislosti na konkrétním plánu – pohybuje mezi 13 a 15 metry.
Podle § 8 odst. 1 stavební vyhlášky (BauNVO) jsou mimo jiné povoleny následující způsoby využití:
Podnikatelské provozy všech druhů
- Skladové haly a skladovací prostory
- Obchodní, kancelářské a administrativní budovy
- Veřejné provozy
- Čerpací stanice a sportoviště
- Hotel a boardinghouse, případně srovnatelné ubytovací koncepty
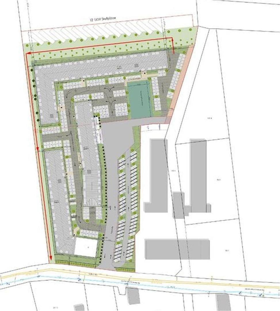
Případně připojené vizualizace slouží výhradně pro představení možných variant výstavby a nejedná se o závazný plán.
Prodej probíhá formou Share Deal. Kupní cena činí 65 €/m².
Pro další informace nebo pro sjednání termínu prohlídky jsme Vám kdykoliv k dispozici.
Lokalita se nachází v zavedené průmyslové oblasti s bezprostřední blízkostí k mezinárodnímu dopravnímu letišti (cca 2 km). Dva nadregionální dálnicové tahy jsou dosažitelné přibližně za 300 m; navíc je zde napojení na státní silnici. Velmi dobré železniční spojení zajišťují blízké dálkové uzly s ICE a IC spoji. Poloha nabízí vysokou míru možností třetího využití a dlouhodobý poptávkový potenciál pro hotelové, boardinghouse, logistické a další komerční účely.
Pro jakékoliv otázky nebo další informace jsem Vám k dispozici. Můžete mě kontaktovat telefonicky od pondělí do pátku mezi 9:00 a 18:00 hodinou. Pokud preferujete, můžete mi také poslat zprávu přes WhatsApp. Moje telefonní číslo je 0163-5152057.
Alternativně mi můžete zaslat e-mail na adresu hildebrand@gpm.immobilien.
Pokud si přejete přímo hovořit s majitelem, například kvůli jednání o kupní ceně, můžete kontaktovat přímo majitele, pana Petera Jugla, na telefonním čísle 01709848571 nebo poslat zprávu přes WhatsApp.
Impressum
GPM GmbH
Hafenstraße 12
04416 Markkleeberg
Zastoupeno:
Peter Jugl
Zápis do rejstříku:
Zapsáno v obchodním rejstříku.
Rejstříkový soud: Okresní soud v Lipsku
Registrační číslo: HRB 21518
Odpovědný za obsah (podle § 55 odst. 2 RStV):
Peter Jugl
Parametry nemovitosti
| Číslo inzerátu | 992171 |
|---|---|
| Cena za jednotku | 65 € / m2 |
| Plocha pozemku | 20 000 m² |
|---|
Co tato nemovitost nabízí?
| MHD 7 minut pěšky |
V okolí nemovitosti najdete
Stále hledáte to pravé?
Nastavte si hlídacího psa. Nabídky vybrané na míru dostanete souhrnně 1× denně e-mailem. S Premium profilem máte k ruce hlídačů rovnou 5 a když se něco objeví, informují vás obratem.



