
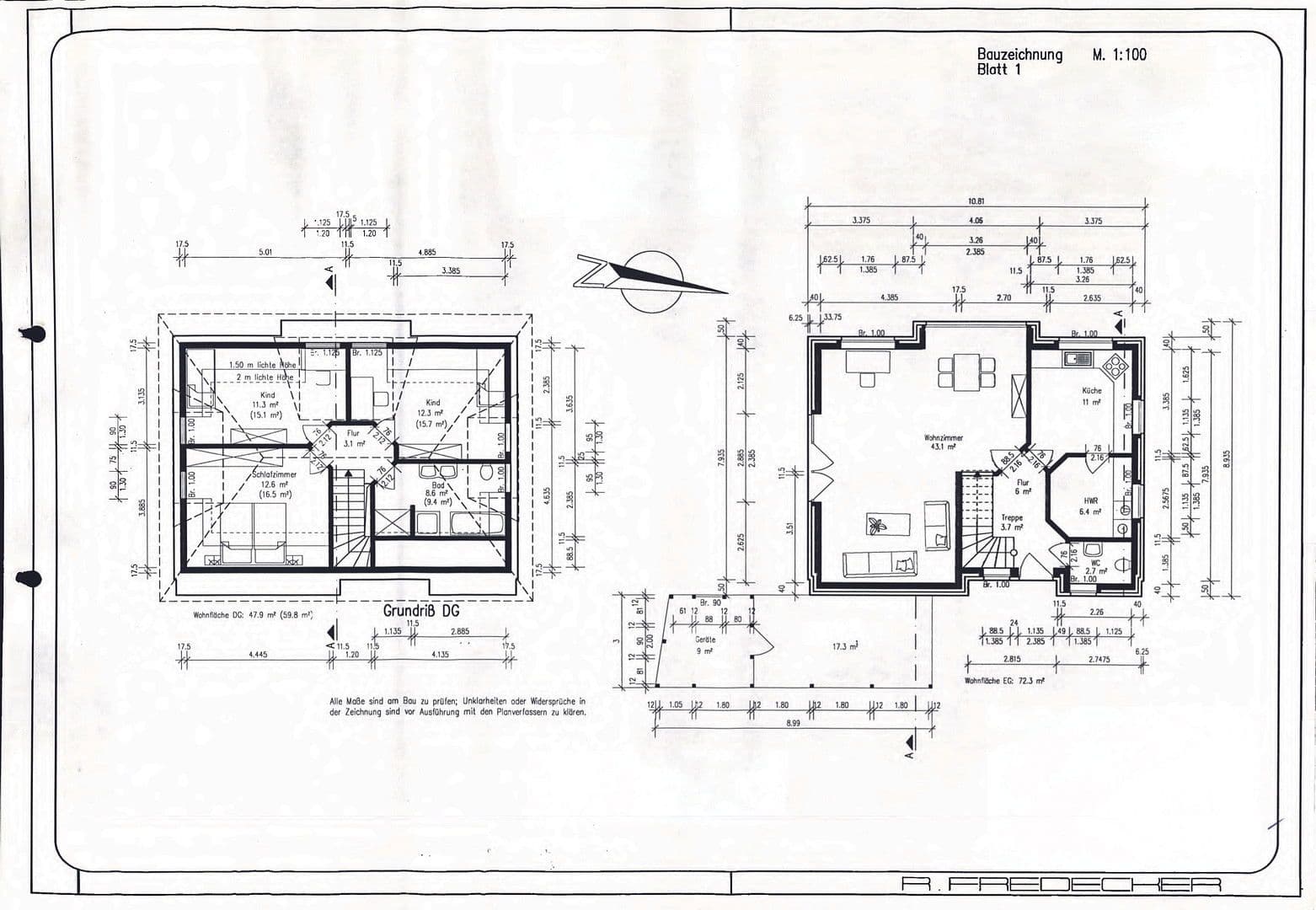
Prodej domu 4+1 • 135 m² bez realitky, Dolní Sasko
, Dolní SaskoMHD do minuty pěšky • GarážTento rodinný dům ve skvělé lokalitě Ritterhude je krásným domovem pro rodiny či páry, kteří milují klid a přírodu. S přibližně 135 m² obytné plochy nabízí dostatek prostoru pro pohodlí. Světlý obývací pokoj se otevírá na dvě slunné terasy, které zvou k odpočinku či hraní, a upravená zahrada dokonale doplňuje celkový dojem. Kuchyň byla zmodernizována a koupelna je stylově navržena – vše je udržované a prakticky uspořádané. Podlahové topení v celém domě, elektrická markýza a vlastní garáž s elektrickou branou zajišťují komfort v každodenním životě.
Tento dům je ideální pro rodiny nebo páry, kteří hledají ihned k nastěhování kvalitní domov v klidném, zeleném prostředí – útočiště, které harmonicky spojuje přírodu, klid a moderní bydlení.
Dům se nachází v jedné z nejpopulárnějších částí Ritterhude, přímo u chráněné přírodní rezervace.
• Klidná, dopravou omezená ulice bez průjezdného provozu
• Přírodní prostředí s loukami, lesními cestami a dětskými hřišti
• Mateřská škola, základní škola a střední škola v bezprostřední blízkosti
• Jezdecký klub dosažitelný za 2 minuty
• Obchody, lékaři a lékárny v docházkové vzdálenosti
• Perfektní napojení na autobus, vlak a dálnici A27 – ideální pro dojíždějící
• Bremen a okolí jsou snadno dostupné
Tento dům zaujme vysoce kvalitním vybavením a moderními detaily:
• Podlahové topení v celém domě
• Moderní kuchyně a koupelna
• Nové vnitřní dveře a podlahové krytiny
• Vlastní garáž s elektrickou branou
• Dvě terasy, elektrická markýza, rolety včetně sítí proti hmyzu
• Udržovaná zahrada na slunném místě
Klidná, rodinně přívětivá obytná čtvrť přímo u chráněné přírodní rezervace – zmodernizováno, ihned k nastěhování a ideální pro páry či rodiny.
V okolí nemovitosti najdete
Stále hledáte to pravé?
Nastavte si hlídacího psa. Nabídky vybrané na míru dostanete souhrnně 1× denně e-mailem. S Premium profilem máte k ruce hlídačů rovnou 5 a když se něco objeví, informují vás obratem.















