
Pronájem bytu 3+1 • 83 m² bez realitkySt.-Moritz-Str. 2, , Bavorsko
St.-Moritz-Str. 2, , BavorskoMHD 3 minuty pěšky • ParkováníEinziehen und wohlführen! Willkommen zu Hause!
Nastěhovat se a užívat si domov! Vítejte doma!
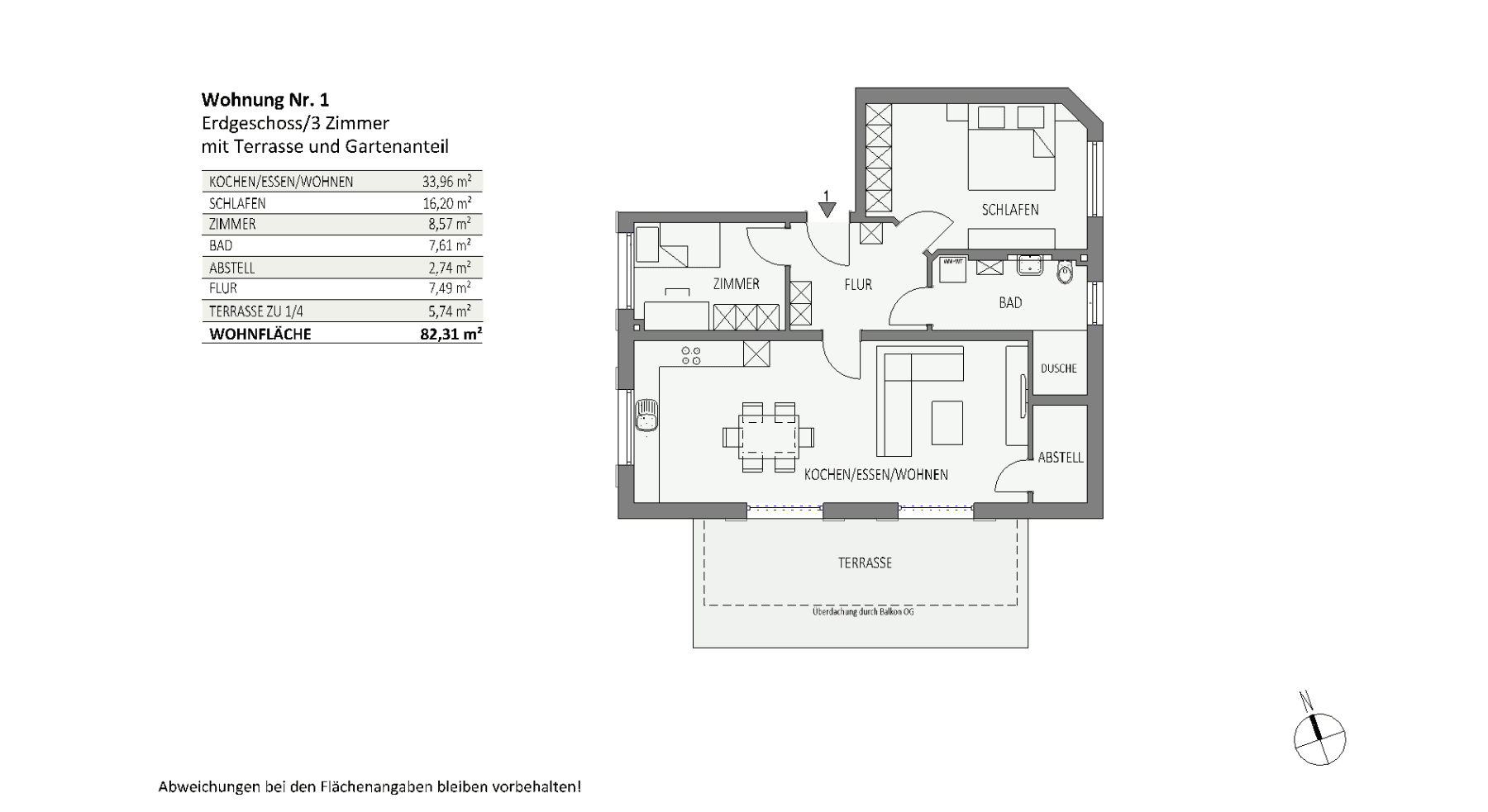
Die Wohnung im Erdgeschoss zeichnet sich durch eine gehobene Innenausstattung aus.
Přízemní byt se vyznačuje vyspělým interiérovým vybavením.
Zu dem Apartment zählen drei schöne Zimmer und eine überdachte Süd-Terrasse mit einem Gartenanteil.
K bytu náleží tři krásné pokoje a zastřešená jižní terasa s částí zahrady.
Der offene Wohn-/Koch- und Essbereich lädt zum gemeinsamen Kochen und Verweilen ein.
Otevřený prostor obývacího, kuchyňského a jídelního koutku zve ke společnému vaření a posezení.
Auf der schönen Süd-Terrasse können Sie den Tag entspannt ausklingen lassen.
Na krásné jižní terase můžete den v klidu zakončit.
Beim Gartenanteil bleiben keine Wünsche offen, ob Sandkasten oder Hochbeet, hier findet alles seinen Platz.
Část se zahradou splní veškeré vaše představy – ať už jde o pískoviště nebo vyvýšené záhony, zde si vše najde své místo.
In einem Abstellraum können Sie Ihre Vorräte bequem verstauen.
Ve sklepní místnosti si můžete pohodlně uskladnit své zásoby.
Ebenfalls praktisch ist der Kellerraum, der Stauraum für Ihre Gegenstände bietet.
Velmi praktický je také sklep, který nabízí úložný prostor pro vaše věci.
Bequem parken können Sie im Carport (Miete: € 40), sowie auf dem Außenstellplatz (Miete: € 20).
Pohodlně můžete parkovat v přístřešku (nájem: 40 €) stejně jako na venkovním parkovacím místě (nájem: 20 €).
Die Wohnung eignet sich perfekt für Singles oder Paare, die modernes Wohnen in ruhiger Lage mit guter Verkehrsanbindung schätzen.
Byt je ideální pro single nebo páry, kteří si cení moderního bydlení v klidné lokalitě s dobrou dopravní dostupností.
Das Objekt liegt in dem schönen Ortsteil Buchloe-Honsolgen.
Nemovitost se nachází v krásné části Buchloe-Honsolgen.
Sie haben alle Vorzüge vom Wohnen im Grünen, sind aber dennoch gut an das Zentrum von Buchloe, sowie die A96 angebunden.
Máte všechny přednosti bydlení v zeleném prostředí a zároveň jste výborně napojeni na centrum Buchloe a dálnici A96.
Die Autobahnanschlussstelle A96/Buchloe Ost ist in ca. 5 Minuten erreichbar.
Nájezd na dálnici A96/Buchloe Ost je dosažitelný přibližně za 5 minut.
Ideal für Pendler nach München oder Augsburg.
Ideální pro dojíždějící do Mnichova nebo Augsburgu.
Anbindung:
Dopravní spojení:
- München: ca. 45 Minuten
Mnichov: cca 45 minut
- Augsburg: ca. 40 Minuten
Augsburg: cca 40 minut
- Füssen: ca. 1 Stunde
Füssen: cca 1 hodina
- Landsberg am Lech: ca. 10 Minuten
Landsberg am Lech: cca 10 minut
- Türkheim: ca. 14 Minuten
Türkheim: cca 14 minut
Der örtliche Bahnhof im Zentrum von Buchloe spielt eine zentrale Rolle im regionalen und überregionalen Bahnverkehr, mit direkten Verbindungen nach München, Augsburg, Lindau und ins Allgäu.
Místní nádraží v centru Buchloe hraje klíčovou roli v regionální i nadregionální železniční dopravě, s přímými spoji do Mnichova, Augsburgu, Lindau a do Allgäu.
Der Flughafen Memmingen ist in ca. 30 Autominuten erreichbar.
Letiště Memmingen je dosažitelné přibližně za 30 minut autem.
In Buchloe gibt es:
V Buchloe najdete:
Restaurants, Cafés, Eisdiele, Supermärkte, Bekleidungsgeschäfte, Tankstellen, KFZ-Werkstatt, Bäckerei, Apotheken, Spielplatz, Kindergärten, Grundschule, Gymnasium, Realschule, Mittelschule, Freibad, Hallenbad, Ärzte, Physio-Therapie, Sanitätshaus, Krankenhaus, Sportvereine, Feuerwehr u.v.m.
restaurace, kavárny, zmrzlinárnu, supermarkety, obchody s oděvy, čerpací stanice, autoservis, pekárnu, lékárny, dětské hřiště, mateřské školky, základní školu, gymnázium, střední školu, nižší střední školu, venkovní bazén, krytý bazén, lékaře, fyzioterapii, zdravotnický obchod, nemocnici, sportovní kluby, hasičský záchranný sbor a další.
Ausstattung im Überblick
Přehled vybavení:
- Massivbauweise
Monolitná stavba
- Fußbodenheizung
Podlahové vytápění
- Heizung: Luft-Wasser-Wärmepumpe
Vytápění: vzduch-voda tepelné čerpadlo
- Wasser-Enthärtungsanlage
Zařízení na změkčení vody
- Türsprechanlage mit Kamera
Domovní interkom s kamerou
- Lüftungsanlage mit Wärmerückgewinnung (dezentral)
Větrací systém s rekuperací tepla (decentralizovaný)
- Holz-Isolierglasfenster aus Lärchenholz mit 3-fach Verglasung
Dřevěná izolační okna z modřínu se trojitým zasklením
- große überdachte Terrasse (Südseite)
Velká zastřešená terasa (jižní strana)
- Fensterbänke (innen) aus Naturstein
Okenní parapety (uvnitř) z přírodního kamene
- elektrische Rollläden und Raffstore
Elektrické žaluzie a rolety
- Designvinylboden
Designový vinylový podlahový kryt
- schöne weiße Innentüren
Krásné bílé vnitřní dveře
- Türelemente mit Klarglas-Oberlicht bis hin zur Decke (Wohnzimmer + Bad)
Dveřní prvky s čirým skleněným světlíkem až ke stropu (obývací pokoj + koupelna)
- Wohnungseingangstüren: Schallschutzklasse 3
Vchodové dveře bytu: zvuková izolace třídy 3
- SAT – Anlage
Satelitní přijímač
- Badezimmer mit Fenster und Waschmaschinenanschluss
Koupelna s oknem a připojením pro pračku
- Abstellraum in der Wohnung
Úložný prostor v bytě
- ein Kellerraum gehört zur Wohnung
K bytu náleží jeden sklep
- Fahrradraum für alle Hausbewohner vorhanden
Pro všechny obyvatele domu je k dispozici místnost na kola
Sie haben Interesse?
Máte zájem?
Bitte senden Sie uns eine schriftliche Nachricht mit Ihren Kontaktdaten und ein paar kurzen Informationen zu Ihrer Person.
Prosíme, zašlete nám písemnou zprávu s vašimi kontaktními údaji a několika krátkými informacemi o vás.
Für eine Bewerbung um eine Mietwohnung bitten wir Sie, folgende Unterlagen (in Kopie) bereitzuhalten:
Při podání žádosti o pronájem bytu vás prosíme o zajištění následujících dokumentů (v kopii):
Ausgefüllte Mieterselbstauskunft
Vyplněné prohlášení nájemce
Kopie des Personalausweises (Vorder- und Rückseite)
Kopie občanského průkazu (přední i zadní strana)
Aktuelle Schufa-Auskunft (nicht älter als 3 Monate)
Aktuální výpis Schufa (ne starší než 3 měsíce)
Gehaltsnachweise der letzten 3 Monate oder vergleichbarer Einkommensnachweis
Potvrzení o příjmech za poslední 3 měsíce nebo srovnatelný důkaz příjmu
Hinweise:
Poznámky:
- Haustierhaltung ist in dem Objekt leider nicht gestattet.
- Chov domácích zvířat v nemovitosti bohužel není povolen.
- Der Mietvertrag wird ein Staffelmietvertrag.
- Nájemní smlouva bude smlouvou o stupňovitém zvyšování nájmu.
- Die Bilder entsprechen den Vorstellungen des Illustrators. Die tatsächliche Ausführung kann von der Darstellung abweichen. Die Möblierung dient zur Veranschaulichung und ist nicht im Mietpreis enthalten.
- Fotografie odpovídají představám ilustrátora. Skutečné provedení se může lišit od zobrazení. Nábytek slouží pouze k demonstraci a není zahrnut v ceně nájmu.
Dörfler Bauengineering GmbH
Projektmanagement – Planen – Bauen
Senderstraße 15
86854 Amberg
08241/9600236
V okolí nemovitosti najdete
Stále hledáte to pravé?
Nastavte si hlídacího psa. Nabídky vybrané na míru dostanete souhrnně 1× denně e-mailem. S Premium profilem máte k ruce hlídačů rovnou 5 a když se něco objeví, informují vás obratem.














