Prodej domu 4+1 • 182 m² bez realitky, Porýní-Falc
, Porýní-FalcMHD 2 minuty pěšky • Parkování • GarážRodinný dům postavený v roce 2017 masivní konstrukcí byl navržen jako ucelený přízemní obytný koncept a nabízí přibližně 182 m² obytné plochy s jasnou, funkční dispozicí.
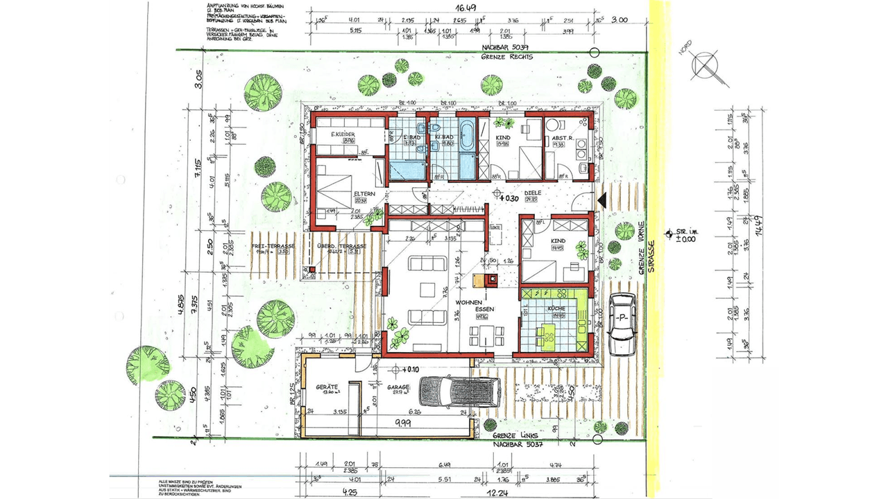
Dispozice půdorysu klade zvláštní důraz na praktické využití v každodenním životě. Široké chodbové prostory nejsou realizovány pouze jako prostory pro průchod, nýbrž obsahují záměrně začleněné niše s dostatečnou hloubkou pro plnohodnotné úložné řešení. Jedna niša se nachází u hostinského koupelny oproti dětskému pokoji a další v přechodové oblasti do rodičovské zóny. Tím vznikají dodatečné zóny pro úložný prostor, aniž by byl narušen otevřený a moderní prostorový dojem.
Pokoje mají téměř čtvercový půdorys, což umožňuje flexibilní uspořádání nábytku bez ztráty prostoru. Postel, skříň a další kusy nábytku lze uspořádat smysluplně, aniž by se musely dělat kompromisy ohledně volného místa.
Štědře vybavený obývací a jídelní prostor tvoří centrum domu. V architektonické špičce se již nachází komín, takže lze bez větších stavebních úprav doplnit kamnový krb.
Několik okenních prvků je dvoukřídlových a lze je plně otevírat. Široká prosklená řešení v dětských pokojích i kuchyni zajišťují spoustu denního světla.
Původně mírně svažitý pozemek byl odborně vyrovnán a po celé délce ohraničen L-kámenovými elementy. Tím vznikla téměř zcela rovná a dobře využitelná zahradní plocha.
Nemovitost se nachází v obytné oblasti v 66871 Konken, v okrese Kusel.
Konken nabízí klidné, rodinám přívětivé prostředí s dobrou dostupností do okolních obcí. V regionu jsou k dispozici možnosti nákupu, mateřské školy i zařízení pro každodenní potřeby.
Okresní město Kusel se nachází jen pár minut jízdy. Tam se nacházejí střední školy, specialisté i Westpfalz-Klinikum Kusel, což zajišťuje komplexní školní a lékařskou péči.
Dům se nachází v novější obytné čtvrti. Infrastrukturní práce jsou z větší části dokončeny. Finální úprava povrchu ulice (nosná vrstva i chodník) ještě není hotová. Datum dokončení stanoví místní obec; konkrétní nabídky na realizaci zatím nejsou k dispozici.
Lokalita spojuje klidné bydlení s blízkostí okresního města a spolehlivou infrastrukturou.
• Masivní konstrukce s izolovaným zděním
• Centrální teplo (dálkové vytápění)
• Podlahové topení ve všech místnostech
• Elektrické rolety na všech oknech
• Dvoukřídlové okna bez pevného středního dělicího prvku
• Integrované sklápěcí ochranné rolety proti hmyzu
• Procházející šatna s oknem
• Připojení komínu v obytné oblasti (možnost instalace kamnového krbu)
• Promyšlené úložné niše v chodbách
• Vysoce kvalitní napnuté stropy v kuchyni, rodičovské koupelně a koupelně pro hosty
• Integrované vestavěné svítidla s denní světlem podobným osvětlením
• Vestavěná kuchyň značky Nobilia je zahrnuta v kupní ceně
• Vodovodní připojení pro side-by-side chladničku
• LAN a SAT připojení ve všech obytných místnostech
• Střešní konstrukce z konstrukčního masivního dřeva
• Pozemek kompletně oplocený
• Pozemek odborně ohraničen L-kámenovými elementy
• Střešní plochy vhodné pro instalaci fotovoltaických panelů
Nemovitost je v odpovídajícím, udržovaném stavu odpovídajícím roku 2017. Jsou zde patrné obvyklé opotřebovací známky.
Dům je v současné době pronajat americkým státním příslušníkům.
Prohlídky probíhají výhradně po předchozí domluvě. Ve snaze o respektování existujícího nájemního vztahu vás prosíme o pochopení, že budou zohledněni pouze vážní zájemci o koupi.
Všechny údaje jsou založeny na předložených dokumentech a informacích. Změny a případný předprodej si vyhrazujeme.
V okolí nemovitosti najdete
Stále hledáte to pravé?
Nastavte si hlídacího psa. Nabídky vybrané na míru dostanete souhrnně 1× denně e-mailem. S Premium profilem máte k ruce hlídačů rovnou 5 a když se něco objeví, informují vás obratem.


















