
Prodej bytu 3+1 • 80 m² bez realitkyNedašovská, Praha - Zličín
Nedašovská, Praha - ZličínMHD 3 minuty pěšky • Částečně vybaveno • Sklep 3 m² • Lodžie 4 m²Využít program Bydlím hned, koupím později
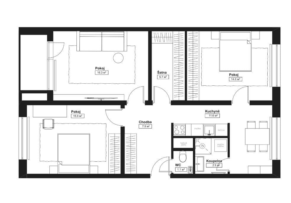
Nabízím ke koupi prostorný byt 3+1 o podlahové ploše 79,8 m², který se nachází v panelovém domě o čtyřech podlažích, a to v posledním, 4. patře.
Byt je v osobním vlastnictví a prošel kompletní a kvalitní rekonstrukcí, včetně nové elektroinstalace s revizí. Byt se prodává s novou kuchyní vybavenou kvalitními spotřebiči a indukční varnou deskou.
Součástí bytu je lodžie o ploše 4 m², která je ideální pro odpočinek a posezení. K bytu náleží také sklep. Budova má energetický štítek třídy C.
V domě není výtah, SVJ však do budoucna zvažuje jeho vybudování.
Byt se nachází v klidné a atraktivní lokalitě s krásným výhledem a kompletní občanskou vybaveností.
V okolí se nacházejí školy, školky, sportoviště i velké obchodní centrum. Stanice metra Zličín je vzdálena přibližně 10 minut chůze. Nemovitost je ideální pro rodinu s dětmi.
Pokud Vás tato nabídka zaujala, kontaktujte mě prosím prostřednictvím zprávy a domluvme si osobní prohlídku.
Nabídka je určena pouze přímým zájemcům (realitní kanceláře prosím nekontaktovat).
I offer for sale a spacious 3+1 apartment with a total area of 79.8 m², located in a five-storey panel building, on the top (5th) floor.
The apartment is privately owned and has undergone renovation, including new electrical wiring with inspection certification. The property is in very good condition and is sold unfurnished, allowing the new owner to realize their own ideas for furnishing and create a home exactly to their taste.
The apartment includes a 4 m² loggia, ideal for relaxation and seating. A basement storage unit also belongs to the apartment. The building has an energy performance rating of class C.
There is no elevator in the building (the homeowners’ association is considering its installation in the future).
The apartment is located in a quiet and attractive area with a beautiful view and full civic amenities.
In the vicinity there are schools, kindergartens, sports facilities, and a large shopping centre. The Zličín metro station is approximately a 10-minute walk away. The property is ideal for a family with children.
If you are interested in this offer, please contact me via message to arrange a personal viewing.
Parametry nemovitosti
| Dostupné od | 2. 4. 2026 |
|---|---|
| Konstrukce budovy | Panel |
| Vybaveno | Částečně |
| Provedení | Standardní |
| Číslo inzerátu | 993698 |
| PENB | C - Úsporná |
| Umístění | Klidná část |
| Rizika | Prověřit » |
| Stav | Velmi dobrý |
|---|---|
| Dispozice | 3+1 |
| Podlaží | 4. podlaží z 4 |
| Vytápění | Ústřední |
| Vlastnictví | Osobní |
| Rekonstrukce | Kompletní |
| Užitná plocha | 80 m² |
| Cena za jednotku | 119 875 Kč / m2 |
Co tato nemovitost nabízí?
| Sklep 3 m² | |
| Lodžie 4 m² |
| MHD 3 minuty pěšky |
V okolí nemovitosti najdete
Využít program Bydlím hned, koupím později
























