Pronájem domu 7+1 • 220 m² bez realitkyMarkgrafenstr. 7, , Bádensko-Württembersko
Markgrafenstr. 7, , Bádensko-WürttemberskoMHD 3 minuty pěšky • Parkování • GarážNa pronájem je samostatně stojící rodinný dům v klidné a rodinně přívětivé oblasti Teningen-Nimburg. Dům nabízí přibližně 220 m² obytné plochy, oplocenou zahradu, která obklopuje dům, a velmi kvalitně a kompletně zmodernizované vybavení – ideální předpoklady pro rodiny s dětmi, které hledají dlouhodobě prostorný domov.
Pozemek má rozlohu cca 554 m² a je kompletně oplocený – ideální pro děti a domácí mazlíčky. Udržovaná zahrada disponuje novou pergolou s elektrickým připojením a osvětlením, balkonovou elektrárnou, zahradním domkem, třemi vyvýšenými záhony a studnou pro zavlažování zahrady.
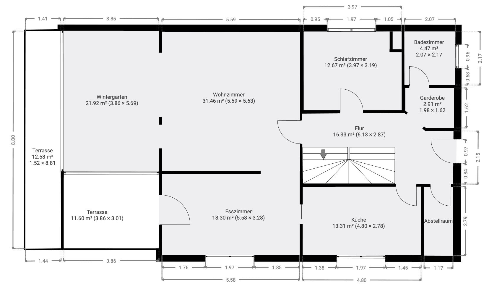
Jedním z výjimečných prvků je prostorná zimní zahrada, kterou lze využít jako plnohodnotný obytný prostor. Je vytápěná, vybavená švédským kamenem, moderním automatickým zastíněním (včetně měření polohy slunce a teploty), podlahovým vytápěním a dvěma velkými terasovými dveřmi. Terasa bude nově provedena jako vyvýšená terasa v rovině zimní zahrady a je přístupná přímo ze zimní zahrady i jídelny.
Dům se rozkládá do tří pater:
–––– Podzemí ––––
• Pracovní místnost, pracovna, prádelna se saunou (včetně moderního, aplikací ovládaného řízení), chodba/předsklep. Sklep není zrekonstruován, nicméně je udržovaný a funkční. I zde budou instalována nová trojitě zasklená okna s novými rolety, což výrazně zlepší komfort a energetickou efektivitu.
–––– Přízemí ––––
• Obývací pokoj, jídelna, kuchyně, pracovna, zimní zahrada, hostinská toaleta se sprchou (na začátku roku 2025 bude kompletně zrekonstruována, včetně sprchového WC) a chodba se šatnou. Přízemí je kompletně renovováno. Nová trojitě zasklená plastová okna s elektrickými žaluziemi a integrované LED světla v okenních římech (chytré ovládání, např. hlasem) zajišťují moderní i útulnou atmosféru.
• Kuchyně bude prostorově vylepšena novými stěnovými a podlahovými krytinami. Vestavěná kuchyň není součástí pronájmu, takže si nájemníci mohou přinést kuchyni dle vlastních představ.
–––– Patro ––––
• Patro zahrnuje tři místnosti, koupelnu i chodbu. Všechny obytné prostory jsou vybaveny laminátovou podlahou.
• Ložnice má přímý přístup na krytý a obložený balkon o rozloze cca 10 m². Další dvě místnosti lze využít jako dětské, pracovnu nebo pokoj pro hosty.
• V rámci plánovaných opatření budou v patře instalována nová trojitě zasklená okna s tepelně izolačními elektrickými rolety.
• Koupelna zůstává ve své stávající podobě – dojde pouze k výměně střešního okna a armatur u umyvadel; je zde pasivní podlahové vytápění.
–––– Technické vybavení domu ––––
Dům je technicky velmi dobře vybaven:
• Ve všech obytných i ložnicových místnostech (kromě koupelny) jsou instalovány propojené detektory kouře a ohně.
• Kromě toho se nacházejí propojené detektory oxidu uhelnatého v kotelně a zimní zahradě (u švédského kamene).
K nemovitosti také patří nové hliníkové přístřeší pro auto (rok výstavby 2024, osvětlené čidlem pohybu) u vstupu a garáž s elektrickými garážovými vraty na zadní straně domu.
Vytápění je zajištěno olejovým centrálním topením a ohřev teplé vody probíhá prostřednictvím topného okruhu. K dispozici je energetický štítek (energetická hodnota 101,4 kWh/(m²·rok); štítek ještě nezohledňuje nová okna).
–––– Okolí a lokalita ––––
Rodinný dům se nachází v Teningenu-Nimburgu, klidné a ustálené části obce Teningen v okrese Emmendingen. Poloha se vyznačuje rodinně přívětivým prostředím, nízkým dopravním provozem a příjemným sousedstvím, kde převládají jednopodlažní a dvojpodlažní rodinné domy.
Nimburg nabízí vysokou kvalitu života díky kombinaci bydlení v přírodním prostředí a dobré dopravní dostupnosti. V bezprostředním okolí se nachází pole, louky a pěší stezky, které zvou k volnočasovým aktivitám v přírodě. Současně jsou města Emmendingen a Freiburg im Breisgau snadno dostupná.
Dopravní spojení je velmi dobré:
• Díky nedaleké dálnici A5 a spolkové silnici B3 jsou Emmendingen, Freiburg i celý Breisgau rychle dosažitelné.
• I dojíždějící těží z velmi dobré regionální dostupnosti.
• Veřejná doprava spojuje Teningen s okolními místy.
Pro rodiny s dětmi je lokalita obzvlášť atraktivní – materské školy, školy, hřiště a sportovní či volnočasové zařízení se nacházejí v Teningenu a přilehlých částech obce. V neposlední řadě jsou k dispozici obchody pro každodenní potřeby, lékaři, lékárny a další služby.
Celkově lokalita nabízí ideální rovnováhu mezi klidem, bezpečností a blízkostí městské infrastruktury – perfektní volbu pro rodiny, které ocení prostorné bydlení v uvolněném prostředí s vynikající dostupností.
–––– Modernizace a technické vybavení interiéru ––––
Rodinný dům disponuje rozsáhlým, zmodernizovaným a technicky současným vybavením. V posledních letech byly mimo jiné obnovena zejména:
• Okna,
• Ochrana proti slunci,
• Technika
• a vybrané vnitřní prostory.
Důraz je kladen na komfort bydlení, energetickou efektivitu, bezpečnost a praktičnost každodenního života.
Okna, dveře a ochrana proti slunci:
• Plastová okna (bílá), trojitě zasklená po celém domě.
Přízemí:
• Nová okna,
• Elektrické rolety,
• Integrované LED osvětlení v okenních římech, ovladatelné smart technologií.
Patro:
• Nová okna,
• Nové tepelně izolační elektrické rolety.
Podzemí:
• Nová trojitě zasklená okna s novými rolety,
• Vysoce kvalitní proti vloupání bezpečnostní vstupní dveře s dobrým tepelným izolačním prvek (instalace 2021).
Interiérové vybavení a podlahové krytiny:
Přízemí (renovováno):
• Dlaždice v chodbě, jídelně a obývacím pokoji,
• Kuchyně: nová vinylová podlaha,
• Pracovna: laminátová podlaha,
• Hostinská toaleta: dlaždice s podlahovým vytápěním,
• Zimní zahrada: dlaždice s podlahovým vytápěním.
Patro:
• Všechny obytné místnosti s laminátovou podlahou.
Podzemí:
• Prádelna: PVC podlaha,
• Pracovna: laminát,
• Chodba: koberec,
• Pracovní místnost: betonová podlaha.
Kuchyně:
• Kuchyně bude vybavena novými stěnovými a podlahovými krytinami.
• Vestavěná kuchyň není součástí pronájmu – nájemníci si mohou přinést vlastní kuchyň a prostor si individuálně upravit.
Koupelny a sanitární zařízení:
Hostinská toaleta v přízemí:
• Kompletně zrekonstruována na začátku roku 2025,
• Se sprchou a moderním sprchovým WC,
• Podlahové vytápění.
Koupelna v patře:
• Stávající vybavení zůstává zachováno,
• Dojde k výměně střešního okna a armatur u umyvadel,
• Je zde k dispozici pasivní podlahové vytápění.
Wellness a komfort:
• Sauna v podzemí s aktualizovaným řízením z roku 2021, ovládaná pomocí aplikace (zap/vyp, nastavení teploty),
• Prostorná prádelna s přímým připojením k sauně.
Topení a energie:
• Olejové centrální topení,
• Olejová nádrž s kapacitou cca 6 000 litrů,
• Ohřev teplé vody pomocí topného okruhu,
• Energetický štítek je k dispozici (101,4 kWh/(m²·rok), před výměnou oken).
Zimní zahrada (plnohodnotný obytný prostor):
• Vytápěná,
• Se švédským kamenem,
• S podlahovým vytápěním,
• S automatickým zastíněním (s měřením polohy slunce a teploty),
• Se dvěma velkými terasovými dveřmi.
Nová vyvýšená terasa v rovině zimní zahrady je plánována na léto/podzim roku 2026 a poté umožní přímý přístup ze zimní zahrady i jídelny do zahrady. Do dokončení této stavby zůstane venkovní prostor dostupný přes zahradu.
Bezpečnost a chytrý dům:
• Propojené detektory kouře a ohně jsou instalovány ve všech obytných a ložnicových místnostech (kromě koupelny),
• Propojené detektory oxidu uhelnatého se nacházejí v kotelně a zimní zahradě.
Venkovní prostory a parkovací místa:
• Celý pozemek je oplocený,
• Okolní zahrada obklopuje dům,
• Nová pergola je vybavena elektrickým připojením, osvětlením, balkonovou elektrárnou, zahradním domkem, třemi vyvýšenými záhony a studnou pro zavlažování zahrady.
• Vyvýšená terasa v rovině zimní zahrady je plánována a předpokládá se, že bude postavena v létě/podzimu roku 2026, čímž vznikne kvalitní, přímá spojka mezi obytným prostorem a zahradou.
• Nové hliníkové přístřeší (rok výstavby 2024, s osvětlením) a garáž s elektrickými garážovými vraty.
Balkon v patře:
• Krytý,
• Obložený dlaždicemi,
• O rozloze cca 10 m².
Tento rodinný dům nabízí rozsáhlé, zmodernizované a moderní technické vybavení s důrazem na komfort bydlení, energetickou efektivitu, bezpečnost a praktičnost každodenního života.
V okolí nemovitosti najdete
Stále hledáte to pravé?
Nastavte si hlídacího psa. Nabídky vybrané na míru dostanete souhrnně 1× denně e-mailem. S Premium profilem máte k ruce hlídačů rovnou 5 a když se něco objeví, informují vás obratem.




















