Pronájem domu 5+1 • 169 m² bez realitky, Severní Porýní-Vestfálsko
, Severní Porýní-VestfálskoMHD 1 minuta pěšky • Parkování • GarážTato téměř nová polodům nabízí přibližně 169 m² obytné plochy na pozemku o rozloze cca 352 m². Je ideální pro pracující páry nebo rodiny, které kladou důraz na kvalitu bydlení, klid a dobrou infrastrukturu. Poloha spojuje příjemné životní prostředí v Telgte s krátkými cestami do Münsteru a zároveň se skvělým regionálním spojením.
Dům byl nedávno kompletně zrenovován, například byly instalovány nové vinylové podlahy a provedeny malířské práce. Nachází se v udržovaném a nastěhovatelném stavu.
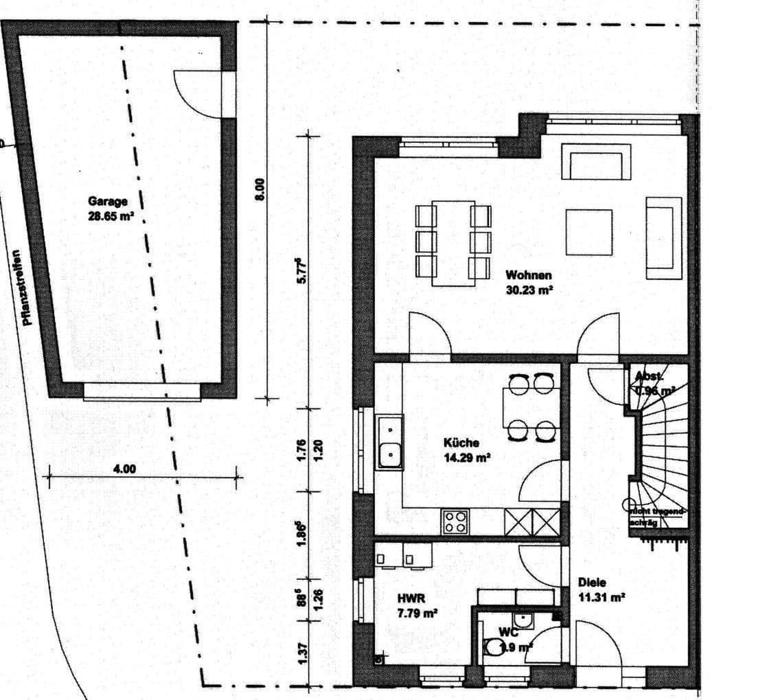
Nemovitost disponuje dvěma plnohodnotnými patry a zrekonstruovaným půdním podlažím a nabízí pět pokojů, prostornou kuchyň obývacího typu, dvě koupelny s denním světlem, hostinskou toaletu a technickou místnost. Dobře promyšlené uspořádání umožňuje jak pohodlné bydlení, tak i založení domácí kanceláře. Síťová připojení jsou k dispozici ve všech obytných místnostech.
Mimořádně prostorná garáž (cca 30 m²) a další parkovací stání poskytují prostor pro vaše vozidla, jízdní kola a zahradní nářadí. Zahrada a terasa jsou orientovány na jihovýchod a poskytují klidné možnosti pro venkovní odpočinek.
Topení je zajištěno pomocí plynového kotle v kombinaci se solární termií, což umožňuje efektivní a ekonomické využití energie.
Rozložení místností
Přízemí: kuchyň, obývací pokoj, technická místnost, hostinská toaleta, skladovací místnost
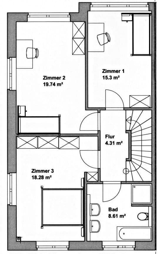
Patro: tři ložnice, koupelna s denním světlem s vanou a sprchou
Půdní podlaží: hostinský/pracovní pokoj, koupelna s denním světlem se sprchou, kotelna s dalšími skladovacími možnostmi
Nemovitost se nachází na jihovýchodě Telgte v klidné ulici s dětským provozem a příjemným sousedstvím. Okolí nabízí uvolněné životní prostředí a zároveň dobrou regionální dostupnost. Münster je snadno dostupný jak autem, tak veřejnou dopravou, což umožňuje flexibilní řešení pracovních i denních cest.
Dopravní spojení:
– Železniční stanice Telgte ve vzdálenosti cca 1,8 km, rychle dosažitelná na kole
– Pravidelná autobusová a vlaková spojení do Münsteru, Warendorfu a Bielefeldu
– Přibližně 13 minut jízdy vlakem od stanice Telgte k hlavnímu nádraží Münster
– Přibližně 25 minut jízdy do letiště Münster/Osnabrück (FMO)
Telgte disponuje kompletní infrastrukturou s obchodními možnostmi pro každodenní potřeby, lékaři, lékárnami, všemi typy škol a několika mateřskými školami. Historické centrum s kavárnami, restauracemi a malými obchody je dosažitelné během několika minut pěšky nebo na kole a skvěle doplňuje klidné obytné prostředí.
Nemovitost nabízí luxusně vybavený, funkčně promyšlený interiér se zaměřením na obytný komfort a praktičnost pro každodenní život:
• Trojnásobilá zasklení oken
• Elektrické rolety ve všech obytných místnostech
• Satelitní a síťová připojení ve všech obytných místnostech
• Podlahové vytápění v celém přízemí i v hlavní koupelně
• Hlavní koupelna s vanou, sprchou a ručníkovým topením
• Nadčasové dlaždice v antracitové a bílé barvě v přízemí a koupelnách
• Vysoce kvalitní vinylová podlaha v ostatních obytných místnostech
• Prostorná a jasně strukturovaná vstupní hala
• Velká, extra dlouhá garáž s dalším úložným prostorem pro jízdní kola, zahradní nářadí apod. (celková délka cca 7,50 m)
Při vaší poptávce prosím uveďte další informace, zejména ohledně počtu stěhujících se osob a jejich profesního zaměření. Děkujeme!
V okolí nemovitosti najdete
Stále hledáte to pravé?
Nastavte si hlídacího psa. Nabídky vybrané na míru dostanete souhrnně 1× denně e-mailem. S Premium profilem máte k ruce hlídačů rovnou 5 a když se něco objeví, informují vás obratem.












