
Prodej bytu 3+kk • 90 m² bez realitky, Hessen
, HessenMHD 1 minuta pěšky • ParkováníTento okouzlující byt v přízemí vás nadchne svým promyšleným uspořádáním místností, příjemným osvětlením a pocitem domova, který osloví na první pohled. Je ideální pro páry, malé rodiny nebo investory hledající solidní a hodnotnou investici.
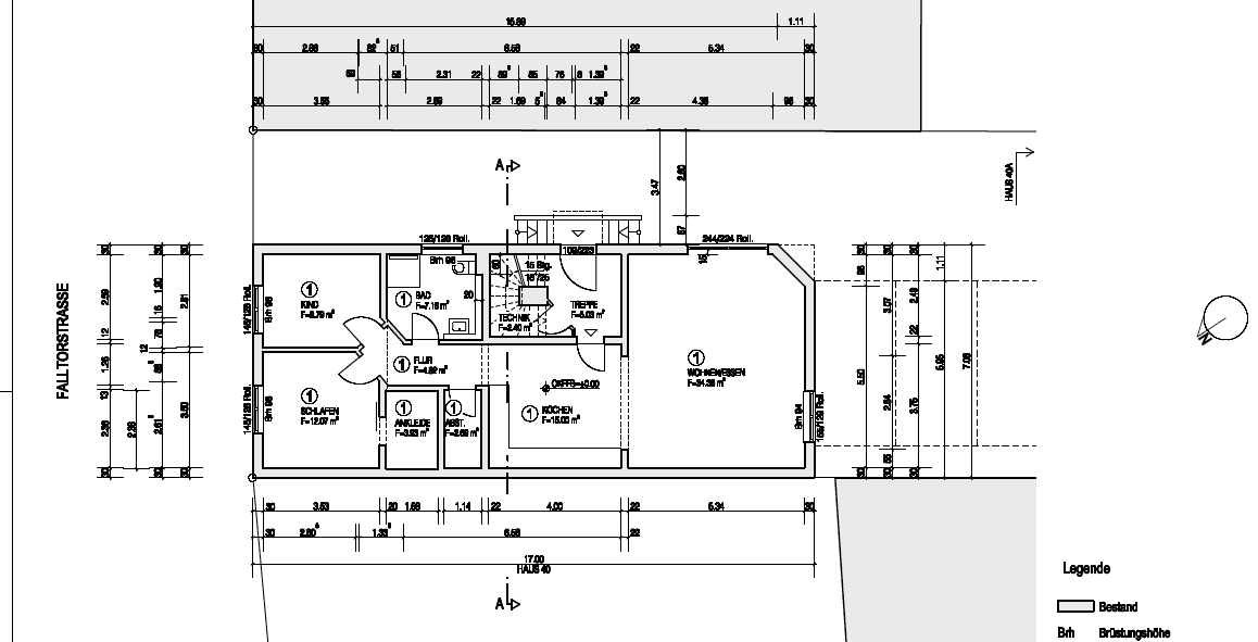
Byt nabízí:
• Prostorné, dobře navržené místnosti
• Příjemnou polohu v přízemí – pohodlnou a bez bariér
• Jasné, přívětivé obytné prostředí
• Mnoho možností využití
• Energeticky efektivní dům (KfW Effizienzhaus 70)
• Energetickou spotřebu 20,8 kWh, dům s tepelným čerpadlem (A+)
• Průměrné měsíční režijní náklady za poslední 3 roky cca 160 € včetně pojištění budovy
Zde si užijete kvalitu bydlení, která je praktická pro každodenní život.
Byt v osobním vlastnictví se nachází v atraktivní a zavedené obytné čtvrti Biebesheim am Rhein. Ulice Falltor vyniká svou centrální, ale přesto klidnou polohou v srdci obce, což představuje ideální kombinaci vysoké kvality života a praktické infrastruktury. Nemovitost se nachází na okraji pole.
Nemovitost je situována ve žádané obytné oblasti s dobrou infrastrukturou. Obchody, školy, veřejná doprava a možnosti volnočasových aktivit jsou rychle dostupné – ideální pro komfortní život s krátkými dojížděním.
Možnosti nákupu:
V bezprostřední blízkosti (cca 10–15 minut chůze) najdete řadu obchodů pro každodenní potřeby, včetně moderního Netto Marken-Discount (Stockstädter Str. 29).
Vzdělávání a péče:
Rodiny ocení blízkost Nibelungenschule (základní škola), která se nachází jen pár minut jízdy. Dále jsou snadno dosažitelné školky a radnice.
Gastronomické provozy se nachází přímo v centru obce.
Dopravní spojení – ideální pro dojíždějící:
Biebesheim je výborně začleněn do regionů Rhein-Main a Rhein-Neckar.
• Vlaková doprava: Nádraží Biebesheim nabízí pravidelné spoje do Darmstadtu, Frankfurtu nad Mohanem (cesta trvá cca 34–45 minut) a Mannheimu.
• Silniční síť: Díky silnici B44 a nedalekým dálnicím A67 a A5 jsou ekonomická centra regionu rychle dosažitelná. Frankfurt a Mannheim jsou přibližně 30 minut jízdy autem.
Volný čas a odpočinek:
Blízkost řeky Rýn a okolních chráněných přírodních oblastí (např. Kühkopf-Knoblochsaue) zve k příjemným procházkám, cyklistickým výletům a dalším rekreačním aktivitám v přírodě.
Ať už hledáte nový domov, nebo investiční nemovitost, tento byt v přízemí vám nabízí vynikající kombinaci polohy, komfortu a budoucích perspektiv.
Vybavení a přednosti – Moderní. Efektivní. Kvalitní.
Tento byt vás přesvědčí svým vybavením, které nezanechává žádné mezery a zaručuje maximální komfort bydlení:
Již při vstupu ucítíte neobvykle prostorný pocit. Velký obývací pokoj s integrovanou, rozsáhlou jídelní částí tvoří srdce bytu – ideální pro rodinný život a společenské večery.
K dispozici jsou také:
• samostatná kuchyň
• hostinská toaleta
• dětský pokoj/kancelář
• ložnice s vlastní šatnou
• prostorná koupelna s denním světlem, sprchou, ručníkovým topením a kvalitními armaturami
Technické a energetické přednosti:
• Kompletní podlahové vytápění ve všech místnostech
• Digitální termostaty pro přesné řízení teploty
• Nízkenergetický dům třídy A+ – energeticky efektivní a připravený do budoucna
• Trojitá tepelná izolační zasklení
• Elektrické rolety
• Videointerkomunikační systém pro zvýšení bezpečnosti
• Datové a síťové kabely vedené v obytných prostorech
Vysoce kvalitní interiérové vybavení:
• Moderní, velmi kvalitní klikací vinylová podlaha ve všech místnostech
• Světlá koupelna s denním světlem a stylovou sprchou
• Kvalitní armatury a promyšlené detaily
• Stav, který umožňuje okamžité nastěhování bez nutnosti rekonstrukce
V okolí nemovitosti najdete
Stále hledáte to pravé?
Nastavte si hlídacího psa. Nabídky vybrané na míru dostanete souhrnně 1× denně e-mailem. S Premium profilem máte k ruce hlídačů rovnou 5 a když se něco objeví, informují vás obratem.




















