
Prodej bytu 3+1 • 87 m² bez realitkyPestalozzistraße 28 Graz Jakomini Steiermark 8010
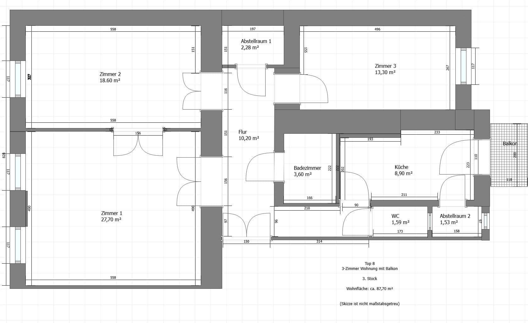
Pestalozzistraße 28 Graz Jakomini Steiermark 8010MHD 2 minuty pěškyKaždý ze tří pokojů je přístupný samostatně, přičemž oba velké pokoje jsou navíc propojeny dvojitými dveřmi. K bytu náleží dvě úložné místnosti, jedna koupelna a malý balkón se světlým výhledem do zahrady ve vnitřním dvoře.
Byt je velmi světlý, protože se nachází ve 3. patře. Nad bytem se nachází podkrovní patro, které bylo zrekonstruováno a nově přestavěno.
K bytu je přiřazena sklepní místnost a existuje možnost společného užívání malé zahrady ve vnitřním dvoře.
Byt se nachází přímo za oblíbeným Augartenparkem ve zrekonstruované historické budově, a to v centrální, klidné lokalitě. Za pár minut chůze se dostanete do centra Grazu, na Jakominovo náměstí a k četným obchodům a podnikům.
Byt je částečně zařízen a v obytných místnostech jsou momentálně instalovány elektrické topení. V domě je také možnost připojení buď k existující plynové síti, nebo k systému dálkového vytápění.
V okolí nemovitosti najdete
Stále hledáte to pravé?
Nastavte si hlídacího psa. Nabídky vybrané na míru dostanete souhrnně 1× denně e-mailem. S Premium profilem máte k ruce hlídačů rovnou 5 a když se něco objeví, informují vás obratem.














