Prodej domu • 470 m² bez realitky, Durynsko
Památkově chráněný bytový dům z roku 1900 má celkovou obytnou plochu cca 470 m². Dobře udržovaná budova se nachází na pozemku o rozloze cca 245 m² a je ve výborném stavu.
Praktický půdorys umožňuje flexibilní uspořádání a využití prostor. Všechna patra mají laminátovou podlahu, což vytváří jednotnou a útulnou atmosféru.
Některé byty jsou částečně vybavené útulným balkonem. Dům je sklepen, což poskytuje dodatečný úložný prostor a rozmanité možnosti využití.
Roční čistý nájem (plánovaný) činí cca 29 400 €. V současnosti je jeden byt pronajat, přičemž k dispozici bude od 01.05.2026.
Těšíme se na Váš dotaz a rádi Vám poskytneme další informace.
Bytový dům se nachází v blízkosti centra Altenburgu. Město se nachází uprostřed městského trojúhelníku Lipsko, Chemnitz a Gera. Obchody s potravinami, možnosti každodenního nakupování, gastronomické podniky, školky, školy, lékaři, lékárny, banky a mnoho dalšího se nachází v bezprostřední blízkosti a jsou dostupné veřejnou dopravou. Byt se nachází ve velmi výhodné dopravní dostupnosti, s rychlým spojením např. na dálnice A 4 a A 72.
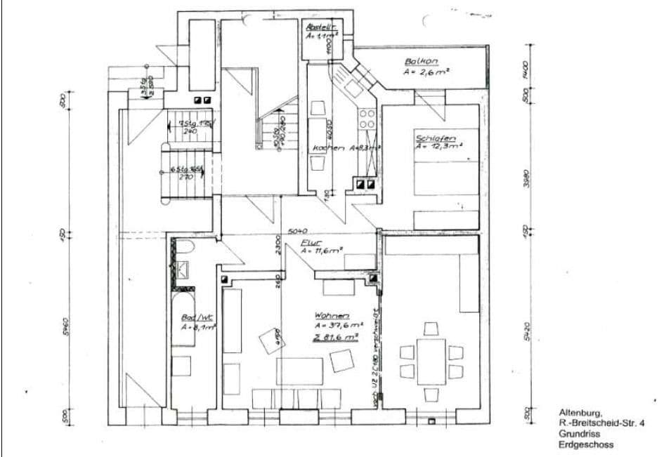
Přízemí:
Byt 1: 3 pokoje, kuchyně, koupelna (81,60 m²)
1. patro:
Byt 2: 2 pokoje, kuchyně, koupelna (59,40 m²)
Byt 3: 2 pokoje, kuchyně, koupelna (44,30 m²)
2. patro:
Byt 4: 4 pokoje, kuchyně, koupelna (103,00 m²)
3. patro:
Byt 5: 2 pokoje, kuchyně, koupelna (59,40 m²)
Byt 6: 2 pokoje, kuchyně, koupelna (44,30 m²)
Podkroví:
Byt 7: 2 pokoje, kuchyně, koupelna (39,10 m²)
Byt 8: 2 pokoje, kuchyně, koupelna (38,90 m²)
Nemovitost se prodává v současném stavu. Prodávající nepřebírá žádnou odpovědnost za stav, bezvadnost nebo rozlohu nemovitosti. Prodej se uskutečňuje se vyloučením veškeré odpovědnosti za vady. Toto se nevztahuje na případy úmyslného podvodu či zaručené vlastnosti. Nabídka nemovitosti je nezávazná. Chyby a předchozí prodej zůstávají vyhrazeny.
Máte-li zájem, zašlete nám prosím dotaz.
Parametry nemovitosti
| Stáří | Nad 50 let |
|---|---|
| Číslo inzerátu | 994188 |
| Užitná plocha | 470 m² |
| Cena za jednotku | 1 032 € / m2 |
| Stav | Dobrý |
|---|---|
| PENB | D - Méně úsporná |
| Plocha pozemku | 245 m² |
Co tato nemovitost nabízí?
| Sklep | |
| MHD 2 minuty pěšky |
V okolí nemovitosti najdete
Stále hledáte to pravé?
Nastavte si hlídacího psa. Nabídky vybrané na míru dostanete souhrnně 1× denně e-mailem. S Premium profilem máte k ruce hlídačů rovnou 5 a když se něco objeví, informují vás obratem.











