Pronájem domu 6+1 • 186 m² bez realitkyBiberweg 18, , Bavorsko
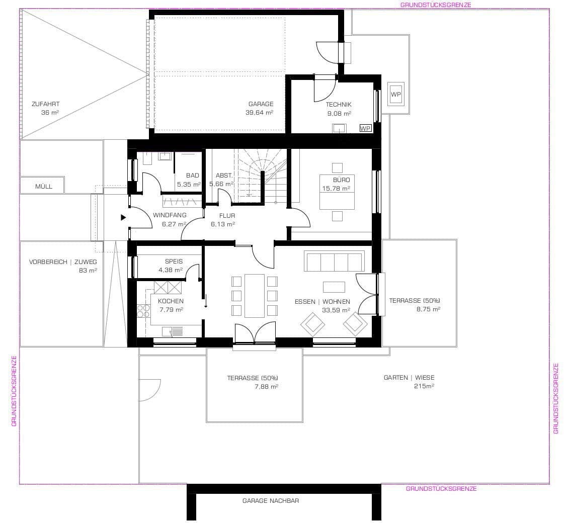
Biberweg 18, , BavorskoMHD 3 minuty pěšky • Parkování • GarážTento nově postavený rodinný dům s přibližně 186 m² obytné plochy a 537 m² pozemku se nachází v klidné lokalitě Abensberg v novém rezidenčním projektu Gaden-Süd. Dům nabízí prostorný obytný prostor rozložený do dvou pater a je vhodný pro flexibilní koncepci bydlení či home office. K dispozici je 6 světlých a prostorných obytných místností. V přízemí se kromě prostorného obývacího/jídelního pokoje a kuchyně se stravovacím koutem nachází také pracovna, dále je zde WC se sprchou a úložna.
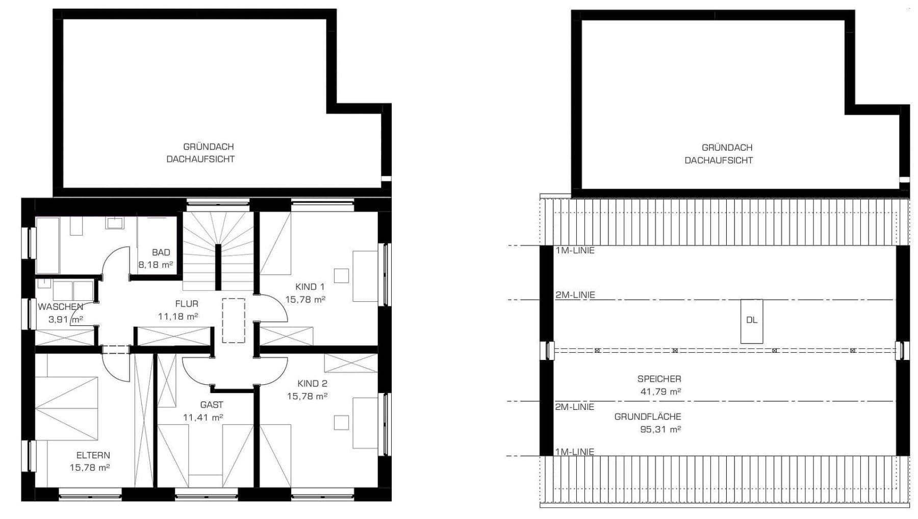
V patře se nachází 4 ložnice, koupelna a prádelna s připojením pro pračku a sušičku. Přízemní obytné místnosti jsou bezbariérové, což zvyšuje komfort. Domácí mazlíčci jsou po předchozí domluvě povoleni.
Na zahradě byly zhotoveny 2 terasy s žulovým obkladem, orientované na východ a jih. Na podkrovním prostoru je k dispozici velký dodatečný úložný prostor.
Topení budovy probíhá podlahovým vytápěním s využitím vzduch-voda tepelného čerpadla.
Garáž pojme 2 vozidla a nabízí dodatečný úložný prostor, je připraven připojení na Wallbox. Na pravé straně pozemku se nachází další 2 venkovní parkovací místa. Nájemné za garáže činí navíc 100,- €.
Dům je právě dokončen a je k nastěhování ihned po domluvě. Pronájem probíhá soukromě a je bez provize.
Abensberg, nacházející se v okrese Kelheim v srdci Dolního Bavorska, nabízí půvabné městské prostředí s dobrou infrastrukturou a je regionálně známý díky Gillamoos Volksfest a věži Hundertwasser. Obchody pro běžné potřeby, lékaři, školy a mateřská škola jsou snadno dostupné, nákupní centrum Abensberg se nachází asi 1 km vzdálené. Doprava je výborná – silnice B16 leží v bezprostřední blízkosti a přístup k dálnici A93 směřující z Mnichova do Regensburgu je dosažitelný za 5 minut. Regensburg, Landshut a Ingolstadt jsou vzdáleny asi 40 km, do Mnichova je to přibližně 90 km.
Vnější stěny jsou vyrobeny z 42,5 cm silných tepelně izolačních cihel, což spolu s trojskly přispívá k vynikající izolaci.
Obytné místnosti jsou vybaveny parketovou podlahou z masivního dřeva, chodby a koupelny jsou obloženy kvalitnými dlaždicemi.
Kuchyně je oddělena posuvnými dveřmi od obývacího/jídelního pokoje a je vybavena špičkovými zařízeními od renomovaných značek: indukční varnou deskou, myčkou nádobí a kombinací chladničky a mrazáku.
Voda v domě je upravována pomocí změkčovacího zařízení. V koupelně a na toaletě se nachází bezbariérové sprchy, navíc je v koupelně v patře k dispozici vana.
Dům má připojení na optickou síť, na střeše je satelitní anténa. Všechny obytné místnosti jsou vybaveny síťovou zásuvkou a satelitním televizním připojením. Větrání místností probíhá pomocí decentralizovaného ventilačního systému. Osvětlení (v obývacím/jídelním pokoji s možností stmívání), teplota místností a elektrické rolety či žaluzie v přízemí jsou ovládány moderním KNX domácím systémem prostřednictvím dotykových displejů. Vzorkomluva je ovladatelná z přízemí i z patra.
V okolí nemovitosti najdete
Stále hledáte to pravé?
Nastavte si hlídacího psa. Nabídky vybrané na míru dostanete souhrnně 1× denně e-mailem. S Premium profilem máte k ruce hlídačů rovnou 5 a když se něco objeví, informují vás obratem.



















