
Pronájem bytu 2+kk • 65 m² bez realitkyEutingen- Pforzheim Eutingen Baden-Württemberg 75181
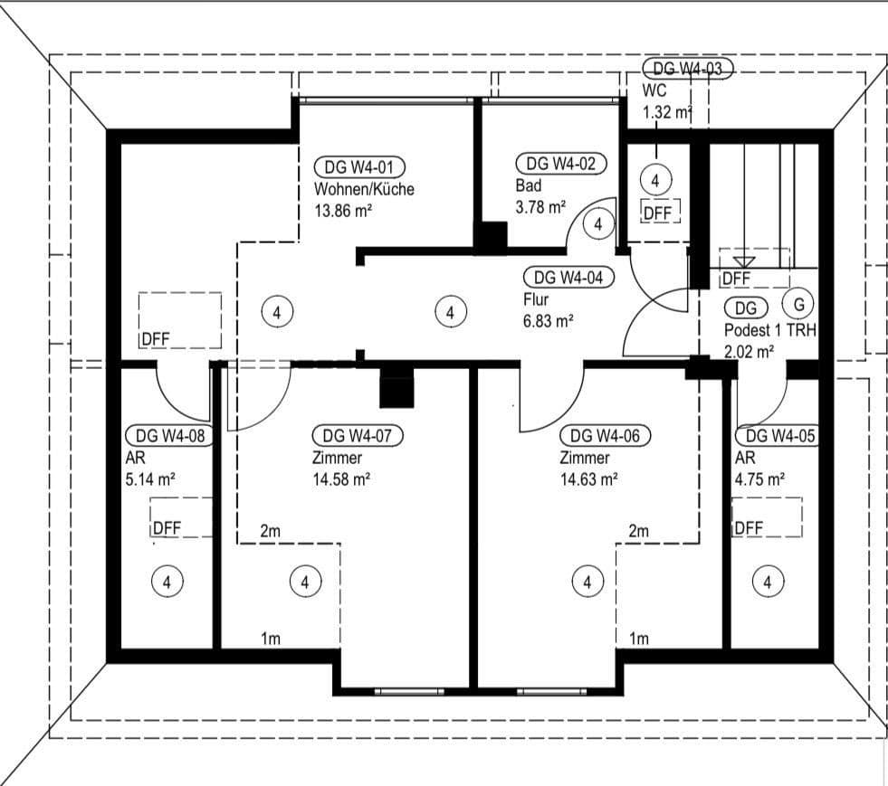
Eutingen- Pforzheim Eutingen Baden-Württemberg 75181MHD do minuty pěšky2,5-pokojový byt v srdci Eutingu, kompletně zrenovován v roce 2025, stejně jako celá budova samotná.
Součástí kompletní renovace jsou třívrstová zateplená okna, izolovaná střecha, nová elektroinstalace, nové sanitární zařízení, podlahové vytápění a dvě WC.
Byt se nachází v klidné obytné ulici v srdci Eutingu. Obklopený upravenými rodinnými a vícegeneračními domy s upravenými předsady nabízí tato lokalita příjemnou atmosféru.
Občanská vybavenost jako supermarket, lékárna a mateřská škola je dosažitelná pěšky.
Cesta do školy na Karl‑Friedrich‑Schule je dlouhá přibližně 800 m, což je krátká a bezpečná vzdálenost.
V řádu několika minut chůze se dostanete na nádraží Eutingen se S-Bahn a regionálními vlaky.
Dálnice A8 je také rychle dosažitelná – ideální pro dojíždějící.
Procházky podél řeky Enz nebo parkem Enzauen se snadno začlení do běžného života.
Lokalita tedy nabízí velmi dobrou kombinaci klidu, městského života a přírody.
Byt je v prázdném stavu, což poskytuje ideální možnost pro individuální design a úpravy.
V okolí nemovitosti najdete
Stále hledáte to pravé?
Nastavte si hlídacího psa. Nabídky vybrané na míru dostanete souhrnně 1× denně e-mailem. S Premium profilem máte k ruce hlídačů rovnou 5 a když se něco objeví, informují vás obratem.











