Prodej domu 5+1 • 265 m² bez realitky, Dolní Sasko
, Dolní SaskoMHD 1 minuta pěšky • Parkování • GarážDiese einzigartige Stadtvilla im Landhausstil thront auf einem weitläufigen Grundstück und vereint das Beste aus zwei Welten: die repräsentative Großzügigkeit einer klassischen Villa mit dem warmen, rustikalen Charme des Landlebens.
→ Tato jedinečná městská vila ve venkovském stylu se tyčí na rozlehlém pozemku a spojuje to nejlepší z obou světů: reprezentativní prostornost klasické vily s teplým, rustikálním kouzlem venkova.
Im Inneren erwartet Sie eine lichtdurchflutete Oase dank der zwei vollwertigen Geschosse und der hohen Decken. Das Herzstück bildet der offene, großzügige Wohn- und Essbereich mit einem gemütlichen Kaminofen, der an kühlen Abenden für Behaglichkeit sorgt.
→ Uvnitř vás čeká světlá oáza díky dvěma plnohodnotným podlažím a vysokým stropům. Srdcem domu je otevřený, prostorný obývací a jídelní prostor s útulným kamny, které v chladných večerech přinášejí teplo a pohodlí.
Eine offene Küche, in der man gemeinsam lacht, kocht und genießt. Während die Gäste am Tresen sitzen, zaubern Sie kulinarische Köstlichkeiten und sind immer mitten im Gespräch – statt alleine am Herd zu stehen. Essen wird zu einem gemeinschaftlichen Erlebnis.
→ Kuchyně je otevřená, kde se společně smějete, vaříte a užíváte si jídlo. Zatímco hosté sedí u baru, připravujete lahodné pokrmy a stále jste součástí konverzace – místo toho, abyste stáli osaměle u sporáku. Jídlo se tak stává společenským zážitkem.
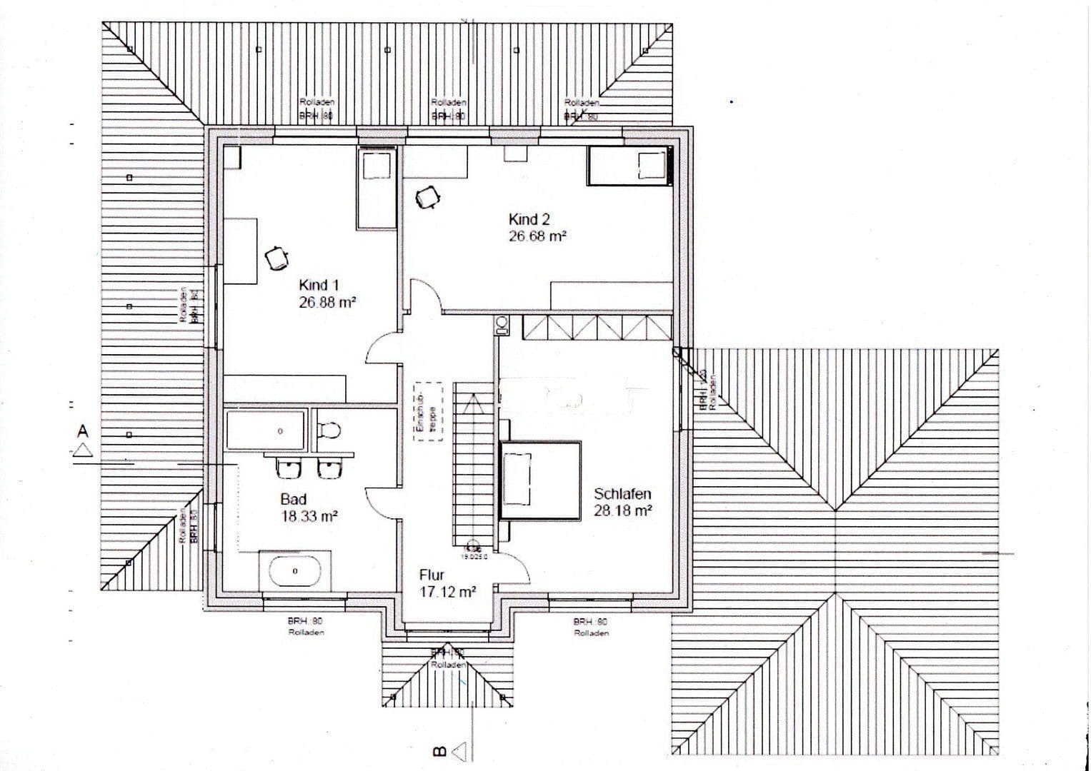
Das Obergeschoss beherbergt die großzügigen Schlaf- und Kinderzimmer sowie ein luxuriöses Bad mit freistehender Wanne.
→ Horní patro pojme prostorné ložnice a dětské pokoje, stejně jako luxusní koupelnu s volně stojící vanou.
Der weitläufige Garten mit seinen Obstbäumen und einer großzügigen Veranda lädt zum Entspannen und Genießen ein – der perfekte Rückzugsort, um dem Alltag zu entfliehen.
→ Rozlehlá zahrada s ovocnými stromy a prostornou verandou vás zve k odpočinku a užívání si klidu – dokonalé útočiště, kde uniknout každodennímu shonu.
Die Stadtvilla wird durch eine harmonisch integrierte Doppelgarage ergänzt. Eine breite, gepflasterte Auffahrt bietet zusätzlich 3 Stellplätze.
→ Městskou vilu doplňuje harmonicky integrovaná dvojgaráž. Široká, dlažební příjezdová cesta navíc nabízí 3 parkovací místa.
Somit bietet diese Villa nicht nur ein stilvolles Zuhause, sondern auch eine hervorragende Lebensqualität in einer begehrten Lage.
→ Tato vila tak nabízí nejen stylové bydlení, ale také vynikající kvalitu života v žádoucí lokalitě.
Einzigartige Lage im Herzen von Riede! Es ist ein Ort für die ganze Familie – ländlich und ruhig, aber trotzdem ist man schnell in der Stadt.
→ Jedinečná poloha v srdci Riede! Je to místo pro celou rodinu – venkovské a klidné, ale přesto se rychle dostanete do města.
Diese Immobilie befindet sich in einer der besten Lagen des charmanten Ortes Riede, eingebettet in eine ruhige, familienfreundliche Nachbarschaft. Die Spielstraße endet in einer verkehrsberuhigten Sackgasse, was die Sicherheit für Kinder und das Gefühl von Privatsphäre erhöht.
→ Tato nemovitost se nachází v jedné z nejlepších lokalit okouzlujícího městečka Riede, zasazená do klidné, rodinou přátelské čtvrti. Hřiště končí v klidné slepé uličce, což zvyšuje bezpečnost dětí a pocit soukromí.
In fußläufiger Entfernung erreichen Sie alle wichtigen Einrichtungen des täglichen Lebens. Dazu gehören die Krippe(1-3jährige), ein Kindergarten, eine Grundschule, Sporthalle, mehrere Spielplätze sowie ein Supermarkt, 2 Bäcker, Poststelle und Bushaltestellen.
→ V docházkové vzdálenosti najdete všechny důležité zařízení pro každodenní život. Patří sem jesle (1–3 roky), mateřská škola, základní škola, sportovní hala, několik dětských hřišť, supermarket, dvě pekárny, pošta a autobusové zastávky.
Die medizinische Versorgung ist durch eine Gemeinschaftspraxis mit 3 Ärzten, 1 Apotheke und Physiotherapie zu Fuß zu erreichen.
→ Zdravotní péče je dostupná pěšky prostřednictvím společné ordinace se 3 lékaři, 1 lékárnou a fyzioterapií.
Freizeitgestaltung in und um Riede: Örtlicher Sportverein, Fußballplatz, Schützenverein, für begeisterte Pferdefreunde eine Reitanlage, in Dreye, Sportboothafen mit Segel- und Wassersportclub, Erbhof in Thedinghausen mit Baumpark und Spielplatz, in Verden Erlebnisbad und in Weyhe ein Freibad.
→ Možnosti volnočasových aktivit v Riede a okolí: místní sportovní klub, fotbalové hřiště, střelecký spolek, pro nadšené milovníky koní jezdecký areál, v Dreye, sportovní přístav s plachetnicářským a vodním sportovním klubem, Erbhof v Thedinghausenu s parkem stromů a dětským hřištěm, v Verdenu zábavní aquapark a ve Weyhe venkovní bazén.
Im Umkreis von 7km befinden sich Lidl, Edeka, Netto, Apotheke, Arztpraxen, Kindergarten, Grundschule, Haupt- und Realschule, Gymnasium, Gesamtschule öffentliche Verkehrsmittel.
→ V okruhu 7 km se nachází Lidl, Edeka, Netto, lékárna, lékařské ordinace, mateřská škola, základní škola, střední a reálná škola, gymnázium, všeobecná škola a veřejná doprava.
Riede verfügt über eine gute Verkehrsinfrastruktur. Mit Bus und Bahn gelangen Sie zügig in die umliegenden Ortschaften und nach Bremen. Mit dem Auto bis zum Ortschild Bremen sind es ca. 10 Minuten sowie auch die Autobahnauffahrt Bremen-Arsten. Die Bremen-Altstadt ist in ca.23 Minuten zu erreichen. Der Bremer Flughafen ist ca.18 Autominuten entfernt. Mercedes-Benz Werk ca. 16km.
→ Riede se může pochlubit dobrou dopravní infrastrukturou. Autobusem a vlakem se rychle dostanete do okolních obcí a do Bremy. Autem trvá cesta ke značce města Bremen asi 10 minut, stejně jako k vjezdu na dálnici Bremen-Arsten. Historické centrum Bremy je dosažitelné za přibližně 23 minut. Letiště Bremen je vzdáleno asi 18 minut jízdy autem. Továrna Mercedes-Benz je přibližně 16 km daleko.
A+ Stadtvilla, 40KfW Haus 264,29m² + Garage 54m², 10 min von HB
→ Městská vila třídy A+, dům s energetickou klasifikací 40KfW, o rozloze 264,29 m² + garáž o 54 m², 10 minut od hlavního nádraží.
Familientraum – Großzügiges Wohnen im "Grünen Riede"
→ Rodinný sen – Prostorné bydlení v "Zeleném Riede"
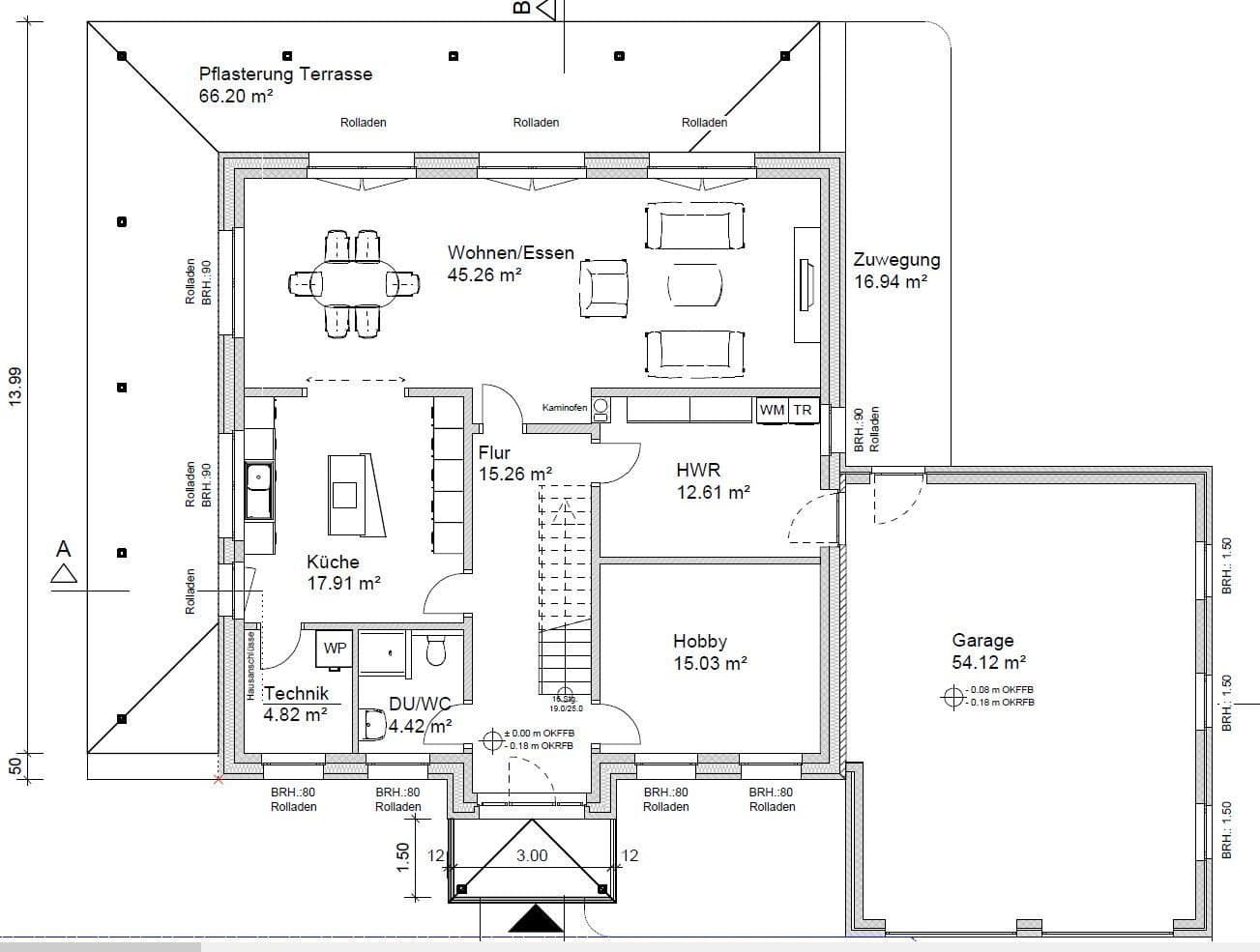
Auf 264 m² vereinen sich eine großzügige Raumgestaltung, hochwertige Materialien und eine Ausstattung, die keine Wünsche offenlässt.
→ Na 264 m² se spojují prostorné uspořádání, vysoce kvalitní materiály a vybavení, které nezanechává žádné přání nenaplněné.
Diese Stadtvilla wurde in solider Massivbauweise errichtet und bietet ein sicheres und langlebiges Zuhause.
→ Tato městská vila byla postavena solídní masivní konstrukcí a nabízí bezpečné a trvanlivé bydlení.
Ausstattung
→ Vybavení
Erdwärme mit 6 Sohlenkreisen auf Fläche verlegt, Erdwärmepumpe mit passiver Kühlung, Warmwasserspeicher (180 Liter, Marke: Alpha InnoTec, Typ: WZ S81H/K),
→ Zemní teplo se 6 kolektory rozmístěnými na ploše, zemní tepelná čerpadla s pasivním chlazením, zásobník teplé vody (180 litrů, značka: Alpha InnoTec, typ: WZ S81H/K),
wohltuende Fußbodenheizung im gesamten Haus, kontrollierte Lüftungsanlage mit Wärmerückgewinnung und mit zusätzlichen austauschbaren Pollenfilter für Sommer und Kohlefilter für den Winter,
→ příjemné podlahové topení v celém domě, řízený větrací systém s rekuperací tepla a s dodatečnými vyměnitelnými pylovými filtry pro léto a uhlíkovými filtry pro zimu,
lichtdurchfluteter Wohn- und Essbereich mit Kaminofen und offener Küche (Einbauküche Nobilia),
→ světlý obývací a jídelní prostor s kamenem a otevřenou kuchyní (vestavěná kuchyň Nobilia),
abschließbare mehrfachverriegelte Sprossenfenster und Terrassentüren mit Dreifachverglasung und elektrischen Rollläden,
→ odemykatelná okna s vícenásobným zamykáním a mřížková okna a terasové dveře s trojitým zasklením a elektrickými žaluziemi,
Haustür und Garagentür mit Mehrfachverriegelung sind mit modernem Schutzbeschlag und hochwertigen Schließzylindern ausgestattet.
→ vstupní dveře a garážové dveře s vícenásobným zamykáním jsou vybaveny moderním bezpečnostním profilem a vysoce kvalitními zámkovými válci.
Erdgeschoss und Bad (OG) hochwertige Fliesen,
→ V přízemí a koupelně (horní patro) jsou použity kvalitní dlaždice,
Obergeschoss Laminat,
→ Horní patro má laminátovou podlahu,
Glasfaseranschluss, alle Wohnräume mit LAN- und TV-Anschluss,
→ Optické připojení, všechny obytné místnosti mají LAN a TV přípojky,
Erdgeschoss Deckenhöhe 270cm, Obergeschoss Deckenhöhe 250cm, Innentürenblatt 86cm x 212cm,
→ Výška stropu v přízemí 270 cm, v horním patře 250 cm, rozměr vnitřních dveří 86 cm x 212 cm,
Badezimmer: Dusche 118cm x 98cm, freistehende Badewanne, 2 Waschbecken,
→ Koupelna: sprchový kout 118 cm x 98 cm, volně stojící vana, 2 umyvadla,
Gästebad mit Dusche 90cm x 90cm,
→ Toaletní koupelna se sprchou 90 cm x 90 cm,
Ausgebauter Dachboden mit Gipskarton,
→ Zpracovaný podkrovní prostor se sádrokartonem,
Ober- und Untergeschoss Stahlbetondecke,
→ Horní a spodní patro mají ocelobetonovou konstrukční desku,
Garage 54,12m², Deckenhöhe 260cm, 2 elektrische wärmegedämmte Hörmann-Garagentore, 3 abschließbare Fenster mit Fensterbänken, Garagentür mit Sicherheitsverriegelung, Garagenwände innen verputzt, Boden mit hochwertigen Industriefliesen, begehbarer Dachboden über gedämmte Einschubtreppe, mit Gipskarton verkleidete Holzbalkendecke und 2 verzinkten H-Stahlträger, mit 200mm Glaswolle gedämmt, Im Vollsteinmauerwerk sind 8 Streben mit Stahlbeton und umläufigen Ringanker verarbeitet.
→ Garáž o rozloze 54,12 m², s výškou stropu 260 cm, dvě elektricky ovládaná tepelně izolační garážová vrata značky Hörmann, tři zamykatelná okna s okenními parapety, garážová vrata se zabezpečovacím zámkem, vnitřní stěny garáže omítnuté, podlaha s vysoce kvalitními průmyslovými dlaždicemi, přístupný podkrovní prostor přes izolované zasuvné schodiště, dřevěný strop se sádrokartonovým obložením a dvěma zinkovanými H-ocelovými nosníky, izolováno 200 mm skleněnou vlnou. V masivním zdivu jsou integrovány 8 ocelobetonových prvků s kruhovým výztužným prstencem.
Außenmauerwerk Haus und Garage: OLFRY Klinker und hartgebrannter Sockelklinker,
→ Vnější omítka domu a garáže: OLFRY klinker a pálený základní klinker,
Schwarze, hochwertige, glasierte Dachpfannen (Vorteil: Keine Schmutzansammlung, wie Grünspan), Terrassen- und Haustürüberdachung (Holzkonstruktion mit Dachpfannen),
→ Černé, vysoce kvalitní, glazované střešní tašky (výhoda: nedochází k usazování nečistot, jako je zelená rzi), zastřešení terasy a vchodu (dřevěná konstrukce se střešními taškami),
Grundstück ist komplett eingezäunt und abschließbar (vorne verzinkter pulverbeschichteter Schmiedeeisenzaun, seitlich und hinten 182cm hoher Doppelstabmattenzaun)
→ Pozemek je kompletně oplocen a uzamykatelný (přední část s nátěrem z práškově lakovaného zinkovaného kovaného železa, po stranách a vzadu dvojitý drátěný plot o výšce 182 cm).
Weitere Angaben
Wohnfläche: 264,29m² + Garage 54,12m²
→ Další informace
Obytná plocha: 264,29 m² + garáž 54,12 m²
Grundstückgröße: 1040m²
→ Velikost pozemku: 1040 m²
Objektzustand: neuwertig
→ Stav nemovitosti: jako nová
Baujahr: 2015
→ Rok výstavby: 2015
Verfügbar ab: 01.09.2026
→ K dispozici od: 01.09.2026
Energie
Energieausweis: Energieverbrauchsausweis
Energieverbrauch: 9,0 kWh(m²*a)
Energieeffizienzklasse: A+
Heizungsart: Fußbodenheizung
Wesentliche Energieträger: Erdwärme
→ Energie
Energetický průkaz: průkaz energetické náročnosti
Spotřeba energie: 9,0 kWh/(m²*a)
Energetická třída: A+
Druh vytápění: podlahové topení
Hlavní zdroj energie: zemní teplo
Alle Angaben sind keine zugesicherte Eigenschaft.
→ Všechny údaje nejsou garantovanými vlastnostmi.
Immobilie wird verkauft wie sie steht und liegt.
→ Nemovitost se prodává v takovém stavu, v jakém se nachází.
Diese Immobilie ist provisionsfrei und lastenfrei.
→ Tato nemovitost je bez provize a bez zástav.
Besichtigung nur mit Finanzierungsnachweis
→ Prohlídka pouze s důkazem financování.
V okolí nemovitosti najdete
Stále hledáte to pravé?
Nastavte si hlídacího psa. Nabídky vybrané na míru dostanete souhrnně 1× denně e-mailem. S Premium profilem máte k ruce hlídačů rovnou 5 a když se něco objeví, informují vás obratem.





















