Pronájem nebytového prostoru • 1833 m² bez realitkyIm Hagenkamp 13 c, , Severní Porýní-Vestfálsko
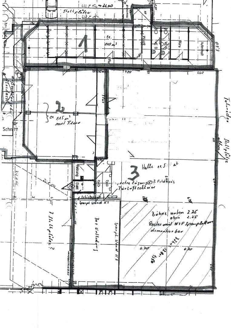
Im Hagenkamp 13 c, , Severní Porýní-VestfálskoMHD 2 minuty pěškyHala s plochou střechou:
přibližně 560 m² plochy + cca 156 m² další plochy díky přechodové pódii
vyhřívaná
lze zabudovat interně umístěné kancelářské prostory
rozsekávací vrata
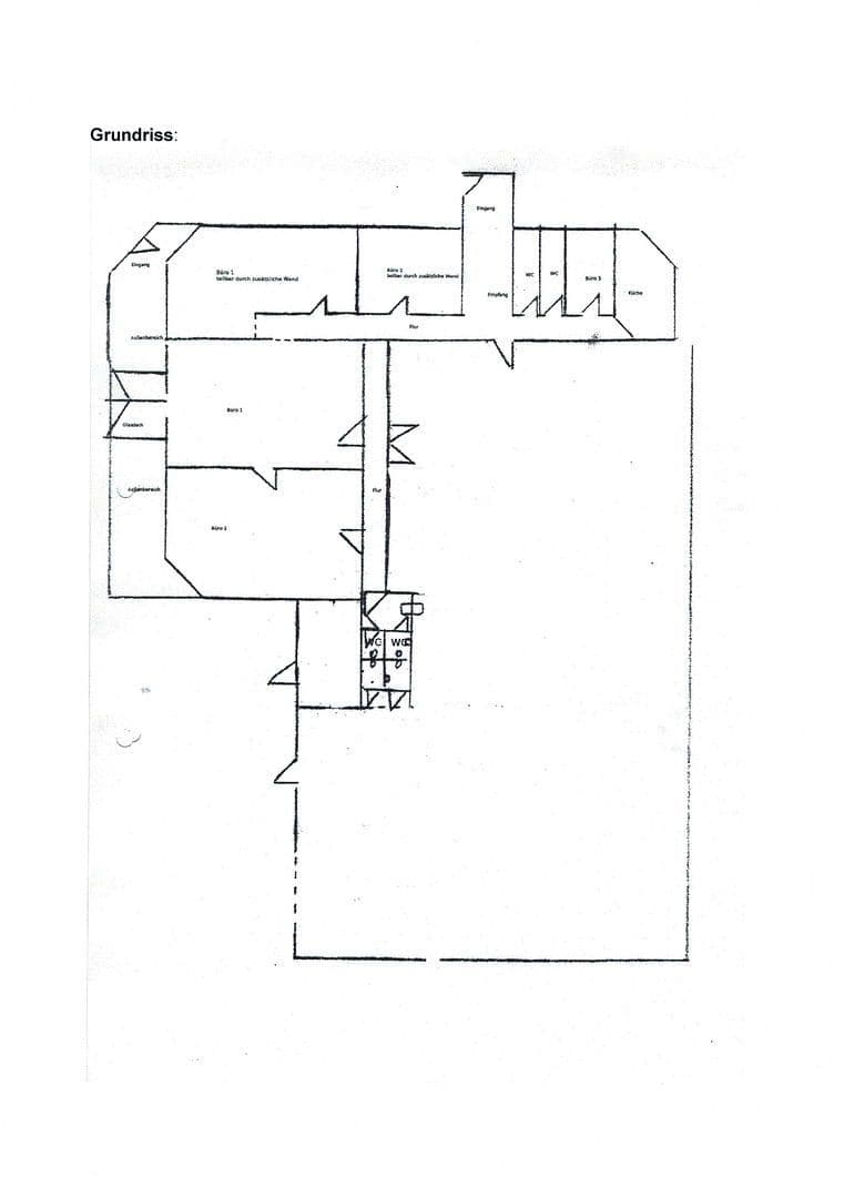
Kancelářské prostory:
Kancelář 1
Kancelář 2
Kancelář 3
2 výstavní prostory (také využitelné jako kanceláře)
čajová kuchyňka
3 toalety
zatclená terasa
Venkovní areál (cca 850 m²):
velké množství parkovacích míst
oplcený zadní dvůr s malou zahradní instalací a velkými vraty
v zadním dvoře další parkovací možnosti
Plochy je možné také rozdělit do 3 různých pronajímatelných jednotek.
Expozice bude sestavena v nejbližší době.
Plánovaný nejdřívější možný počátek pronájmu je 01.07.2026.
Průmyslová zóna, ale velmi klidná a blízká centru – skvělá lokalita
optimální dopravní dostupnost (60 m k silnici B481)
700 m k nádraží a autobusovému nádraží
Emsdetten je malé město, kterým protéká hlavní dopravní tepna spojující Rheine a Münster. Přístupové cesty k dálnici A1 v Greven a také v Ladbergen jsou ze lokality snadno dosažitelné.
Klimatizace
rozsekávací vrata
kvalitní podlahové krytiny (vinyl, dlaždice)
rozsáhlé světelné instalace
čajová kuchyňka
žaluzie pro stínění
rozšíření skladové plochy pomocí přechodové pódie o cca 156 m²
současné vybavení může být po konzultaci převzato z velké části od předchozího nájemce (regály, kancelářský nábytek, výstavní nábytek)
Wissing Immobilien GmbH & Co. KG
Nelly-Sachs-Straße 7, 48282 Emsdetten
DIČ: DE240405969, daňové číslo 311/5930/2158
Obchodní rejstřík: Okresní soud Steinfurt, oddíl A č. 4930
Řízení: osobně odpovědná společník: Wissing Verwaltungsgesellschaft mbH
Zastoupeno generálním ředitelem: Franz-Josef Wissing, oddíl B č. 3997
Parametry nemovitosti
| Stav | Dobrý |
|---|---|
| Plocha nebytového prostoru | 1 833 m² |
| Číslo inzerátu | 995352 |
|---|---|
| Cena za jednotku | 2 € / m2 |
Co tato nemovitost nabízí?
| Terasa |
| MHD 2 minuty pěšky |
V okolí nemovitosti najdete
Stále hledáte to pravé?
Nastavte si hlídacího psa. Nabídky vybrané na míru dostanete souhrnně 1× denně e-mailem. S Premium profilem máte k ruce hlídačů rovnou 5 a když se něco objeví, informují vás obratem.




































