Prodej domu • 262 m² bez realitkyVon-der-Tann-Straße 3a Rosenheim Rosenheim Bayern 83022
Von-der-Tann-Straße 3a Rosenheim Rosenheim Bayern 83022MHD 3 minuty pěšky • GarážZum Verkauf (provisionsfrei von Privat) steht ein bis Oktober 2026 befristet vermietetes Mehrfamilienhaus mit 4 Wohnungen auf einem großzügigen, quadratisch geschnittenen Gartengrundstück (1050 m²) in reizvoller Lage mitten in Rosenheim. Die Immobilie eignet sich sowohl für Kapitalanleger mit Fokus auf rentable Mieteinnahmen als auch für Projektentwickler und Bauträger, die das vorhandene Neubaupotenzial realisieren möchten.
Na prodej je vícebytový dům se čtyřmi byty, který je do října 2026 pronajatý na dobu určitou (bez provize soukromy prodej) a nachází se na prostorném pozemku se čtvercovým tvarem zahrady o rozloze 1050 m², v půvabné lokalitě přímo v centru Rosenheimu. Nemovitost je vhodná jak pro kapitálové investory zaměřené na výnosné příjmy z nájmů, tak i pro projektové developery a stavitele, kteří by chtěli využít stávajícího potenciálu pro novostavbu.
Das Grundstück ist mit GFZ 1,2 als Bauland ausgewiesen. Anstatt des bestehenden Gebäudes wäre die Errichtung eines Mehrfamilienhauses mit einer potenziellen Wohnfläche von ca. 900 m² realisierbar, alternativ auch die Bebauung mit mehreren Stadtvillen (jeweils vorbehaltlich behördlicher Genehmigungen).
Pozemek je určen k výstavbě s zastavěností GFZ 1,2. Místo stávající budovy by bylo možné postavit vícebytový dům s potenciální obytnou plochou cca 900 m², případně ho možné zastavět také několika městskými vilami (vždy s podmínkou získání příslušných úředních povolení).
Das Vierparteienhaus, das im Jahr 1963 fertiggestellt wurde, bietet 262 m² Wohnfläche. Die Wohnungen wurden sukzessive zwischen 1999 und 2005 renoviert. Aktuell sind die Wohnungen bis 30.7.2026 bzw. 30.9.2026 befristet vermietet.
Čtyřbytový dům, dokončený v roce 1963, nabízí obytnou plochu 262 m². Byty byly postupně rekonstruovány v letech 1999 až 2005. V současnosti jsou byty pronajaty na dobu určitou do 30. 7. 2026 a 30. 9. 2026.
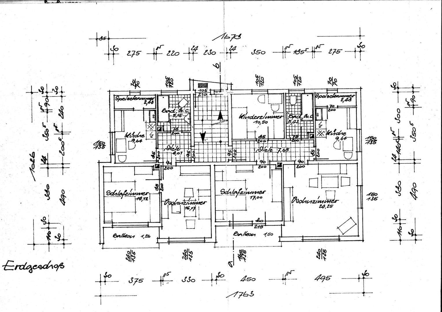
Auf den beiden identisch geschnittenen Wohnetagen befinden sich jeweils eine Zweizimmerwohnung zu 53 m² und eine Dreizimmerwohnung zu 78 m². Die sehr ansprechend aufgeteilten Wohnungen sind aufgrund der vielen Fenster sehr hell und verfügen alle über einen Balkon mit attraktivem Blick auf den grünen Garten. Das Gebäude ist vollständig unterkellert. Weiteren Stauraum bietet der großzügige Dachboden. Zum Haus gehören außerdem zwei Einzelgaragen.
Na dvou identických obytných patrech se nachází vždy jeden dvoupokojový byt o velikosti 53 m² a jeden třípokojový byt o velikosti 78 m². Velmi přehledně dispozované byty jsou díky množství oken velmi světlé a všechny mají balkon s atraktivním výhledem na zelenou zahradu. Budova je kompletně sklepená. Další úložný prostor poskytuje prostorný podkrovní prostor. K domu také náleží dvě samostatné garáže.
Die Fläche des nahezu quadratisch geschnittenen Grundstücks beträgt 1050 m². Auf der Nordseite des Hauses liegt die Einfahrt zu den beiden Garagen. Auf den anderen drei Seiten ist das Haus von einem grünen Garten mit alten Obstbäumen und gepflegten Büschen umgeben. Auch die Nachbargrundstücke bestehen zum größten Teil aus Gärten, so dass das Grundstück insgesamt sehr großzügig und naturverbunden wirkt.
Rozloha téměř čtvercového pozemku je 1050 m². Na severní straně domu se nachází vjezd do obou garáží. Na zbývajících třech stranách je dům obklopen zelenou zahradou se starými ovocnými stromy a upravenými keři. I sousední pozemky jsou většinou tvořeny zahradami, takže pozemek celkově působí velmi prostorně a propojeně s přírodou.
Für die angebotene Immobilie sind vielfältige Nutzungsmöglichkeiten denkbar. Zum einen könnte das Mehrfamilienhaus als wertbeständige Kapitalanlage mit ansprechender Rendite weitervermietet werden. Bei Vollvermietung mit den aktuellen Mieten betragen die Bruttoeinnahmen des Hauses derzeit ca. 47.000 € pro Jahr. Nach Abzug der Nebenkosten (inkl. Heizung und kleinerer Erhaltungsaufwendungen) in Höhe von ca. 13.000 € pro Jahr erwirtschaftet das Haus einen jährlichen Ertrag von ca. 34.000 €. Zur Eigennutzung könnte man anstatt oder auch neben dem bestehenden MFH eine oder auch mehrere repräsentative Stadtvillen errichten. Drittens bietet das Grundstück mit seiner GFZ 1,2 durch Größe und Zuschnitt optimale Voraussetzungen für eine wirtschaftliche Projektentwicklung, z.B. mit einem sehr attraktiven größeren Appartementhaus. Eine beispielhafte Grobplanung zeigt, dass unter Einhaltung der Abstandsflächen auf 4 Etagen 12 Appartements sowie ein spektakuläres Penthouse mit insgesamt über 900 m² Wohnfläche möglich wären. Die vorgeschriebenen 20 Parkplätze könnten in einer Tiefgarage untergebracht werden. Selbst bei diesen Dimensionen wäre das Haus auf drei Seiten immer noch von einer nennenswerten Gartenfläche umgeben. Auch die städtische Bauberatung schätzte dies unverbindlich als machbar ein.
Nabízená nemovitost otevírá řadu různých možností využití. Zaprvé, vícebytový dům by mohl pokračovat jako hodnotná kapitálová investice s atraktivním výnosem z pronájmů. Při plné obsazenosti s aktuálními nájmy jsou hrubé příjmy domu v současnosti přibližně 47 000 € ročně. Po odečtení provozních nákladů (včetně topení a drobných oprav upřesněných nákladů) ve výši cca 13 000 € ročně dosahuje dům ročního zisku přibližně 34 000 €. Pro vlastní využití by bylo možné místo stávajícího domu, nebo vedle něj, postavit jednu či více reprezentativních městských vil. Zatřetí, pozemek s GFZ 1,2 nabízí díky své velikosti a dispozici optimální podmínky pro ekonomickou projektovou realizaci, například s velmi atraktivním větším apartmánovým domem. Příklad hrubého návrhu ukazuje, že při dodržení odstupových pravidel by na 4 patrech bylo možné realizovat 12 apartmánů a spektakultní penthouse s celkovou obytnou plochou přes 900 m². Předpisem stanovených 20 parkovacích míst by bylo možné umístit do podzemní garáže. I při těchto rozměrech by byl dům na třech stranách stále obklopen podstatnou zahradní plochou. Městské stavební oddělení také neoficiálně posoudilo, že je to proveditelné.
Alle Angaben basieren auf den Informationen, die den Eigentümern zur Verfügung stehen. Eine Haftung für die Richtigkeit und Vollständigkeit wird nicht übernommen. Gerne stellen wir auf Anfrage weitere Unterlagen zur Verfügung oder vereinbaren einen Besichtigungstermin.
Všechny údaje jsou založeny na informacích, které jsou majitelům k dispozici. Za správnost a úplnost údajů neneseme odpovědnost. Na vyžádání rádi poskytneme další podklady nebo domluvíme prohlídku.
Die oberbayerische Stadt Rosenheim entwickelt sich zu einem immer gefragteren Wohn-, Wirtschafts- und Hochschulstandort. Dazu trägt die attraktive Lage zwischen Alpen und Seen ebenso bei wie ihre Rolle als wichtigster südostbayerischer Verkehrsknotenpunkt mit schnellen Bahn- und Autobahnverbindungen nach München, Salzburg und Innsbruck.
Město Rosenheim v Horním Bavorsku se stává stále žádanějším místem pro bydlení, podnikání a vysokoškolské vzdělávání. K tomu přispívá atraktivní poloha mezi Alpami a jezery, stejně jako role nejdůležitějšího dopravního uzlu v jihovýchodním Bavorsku se rychlými železničními a dálnicovými spojením do Mnichova, Salzburgu a Innsbrucku.
Die Von-der-Tann-Straße befindet sich in einer gefragten Wohnlage in unmittelbarer Nähe zur Innenstadt mit sehr guter Anbindung an den regionalen und überregionalen Verkehr. Einkaufsmöglichkeiten, Schulen, Kindergärten, medizinische Versorgung und Freizeitangebote sind in kurzer Distanz erreichbar. Das Grundstück liegt nah am Stadtzentrum, aber dennoch sehr ruhig. Es ist umgeben von Wohnhäusern unterschiedlicher Größe mit teils sehr großen Gärten und altem Baumbestand.
Ulice Von-der-Tann se nachází ve vyhledávané obytné oblasti v bezprostřední blízkosti centra města a nabízí velmi dobré spojení jak v regionální, tak meziregionální dopravě. Obchody, školy, mateřské školy, zdravotnická zařízení a možnosti volnočasových aktivit jsou dostupné na krátkou vzdálenost. Pozemek je umístěn blízko centra města, ale přesto je velice klidný. Je obklopen různými obytnými domy, z nichž některé mají velmi prostorné zahrady a starý stromový porost.
Für Berufspendler in jede Richtung liegt die Immobilie außerordentlich günstig in ca. 1 km Entfernung vom Rosenheimer Bahnhof. Bis zur A8 oder A93 fährt man ca. 10 Minuten, zur B15 Richtung Landshut und Regensburg 2 Minuten.
Pro dojíždějící zaměstnance je nemovitost mimořádně výhodně umístěna přibližně 1 km od nádraží v Rosenheimu. K dálnicím A8 nebo A93 dojedete přibližně za 10 minut, k silnici B15 směr Landshut a Regensburg za 2 minuty.
Einkaufsmöglichkeiten des täglichen Bedarfs – verschiedenste Supermärkte, Apotheken, Bäckereien – sind in wenigen Minuten zu Fuß erreichbar. Die zentrale Rosenheimer Fußgängerzone ist ca. 1 km entfernt, die nächste Bushaltestelle Richtung Stadtmitte ca. 200 m. In der unmittelbaren Umgebung findet man Kindertagesstätten, Grund- und Mittelschulen, ein Gymnasium sowie die Technische Hochschule Rosenheim.
Obchody pro každodenní potřeby – různé supermarkety, lékárny, pekárny – jsou dosažitelné pěšky během několika minut. Centrální pěší zóna v Rosenheimu se nachází asi 1 km dál, nejbližší zastávka autobusu směrem do centra města je přibližně 200 m. V bezprostředním okolí najdete mateřské školy, základní a střední školy, gymnázium a Technickou vysokou školu Rosenheim.
Auch die Freizeitgestaltung kommt hier nicht zu kurz. Das Angebot umfasst Parks, Spielplätze, Schwimmbäder und die Anlagen des Sportbundes Rosenheim. Die Happinger Seen liegen nur wenige Kilometer entfernt, die Rosenheimer Hausberge können in etwa 30-40 Minuten mit dem Auto oder der Bahn angefahren werden.
Ani volnočasové aktivity zde nejsou opomenuty. Nabídka zahrnuje parky, dětská hřiště, bazény a areály sportovního svazu Rosenheim. Happinger jezera jsou vzdálena jen několik kilometrů a kopce kolem Rosenheimu jsou dosažitelné za přibližně 30-40 minut autem nebo vlakem.
Das Objekt wird direkt von den Eigentümern provisionsfrei verkauft!
Nemovitost je prodávána přímo majiteli bez provize!
Parametry nemovitosti
| Stáří | Nad 50 let |
|---|---|
| Číslo inzerátu | 995358 |
| Užitná plocha | 262 m² |
| Celkem podlaží | 2 |
| Stav | Před rekonstrukcí |
|---|---|
| PENB | G - Mimořádně nehospodárná |
| Plocha pozemku | 1 050 m² |
| Cena za jednotku | 6 832 € / m2 |
Co tato nemovitost nabízí?
| Balkón | |
| Garáž | |
| MHD 3 minuty pěšky |
| Sklep | |
| Terasa |
V okolí nemovitosti najdete
Stále hledáte to pravé?
Nastavte si hlídacího psa. Nabídky vybrané na míru dostanete souhrnně 1× denně e-mailem. S Premium profilem máte k ruce hlídačů rovnou 5 a když se něco objeví, informují vás obratem.




















