
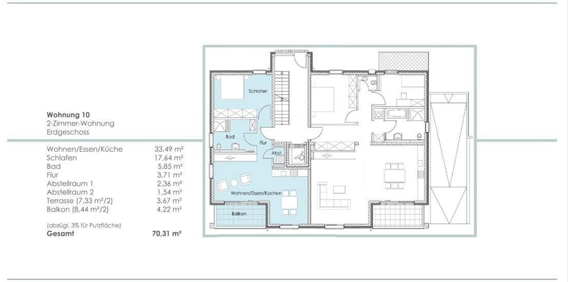
Prodej bytu 2+kk • 71 m² bez realitkyBahnhofstraße 7, , Bádensko-Württembersko
Bahnhofstraße 7, , Bádensko-WürttemberskoMHD 3 minuty pěšky • Výtah • GarážNový centrálně umístěný 2,5-pokojový byt v přízemí s kvalitním vybavením.
HLAVNÍ VLASTNOSTI:
• Novostavba 2016
• 4,2 % výnos
• Bez provize
• Byt v přízemí
• Bezbariérový přístup
• Balkon
• Výtah
• Domácí podzemní garáž
• Parkovací místo v podzemí
Pronajato od 12.2020
Smlouva o pronájmu Haus&Grund
aktuálně 960 € nájem bez režie
Smlouva s eskalací nájemného
– od 12.2028 nájem 1.008 €
– od 12.2030 nájem 1.059 €
• Správa domu
• Služba domovníka
• Zimní údržba
Byt se nachází v centrální poloze v centru města.
Centrum města s největším trhem v Německu a řadou kulturních nabídky je vzdáleno pouhých asi 300 m. Řada obchodních možností je dosažitelná pěšky.
V bezprostřední blízkosti se nacházejí školy a školky.
Lékařské ordinace a lékárny jsou na místě. Tato centrální poloha je ideální pro pronájem.
• Skutečné dřevěné podlahy
• Podlahové vytápění
• Prostorná koupelna s denním světlem a bezbariérovou sprchou
• Video interkom
• Systém s jedním klíčem pro všechny zámky
• Okna sahající až ke podlaze
• Trojitá skla
• Elektrické žaluziové clony
• Posuvné dveře na balkon
Domluvte si prohlídku. Těším se na Vaši zprávu!
Kontakt:
Valentin Kosterin
0176 46058085
V okolí nemovitosti najdete
Stále hledáte to pravé?
Nastavte si hlídacího psa. Nabídky vybrané na míru dostanete souhrnně 1× denně e-mailem. S Premium profilem máte k ruce hlídačů rovnou 5 a když se něco objeví, informují vás obratem.















