Pronájem bytu 1+1 • 52 m² bez realitkyKamillenweg 32 Osnabrück-Voxtrup Niedersachsen 49086
Kamillenweg 32 Osnabrück-Voxtrup Niedersachsen 49086MHD 10 minut pěšky • VýtahK pronájmu je k dispozici kvalitní studio byt ve standardu KfW-40-QNG s přibližně 52 m² obytné plochy, který se nachází v oblíbené a klidné lokalitě Voxtrup.
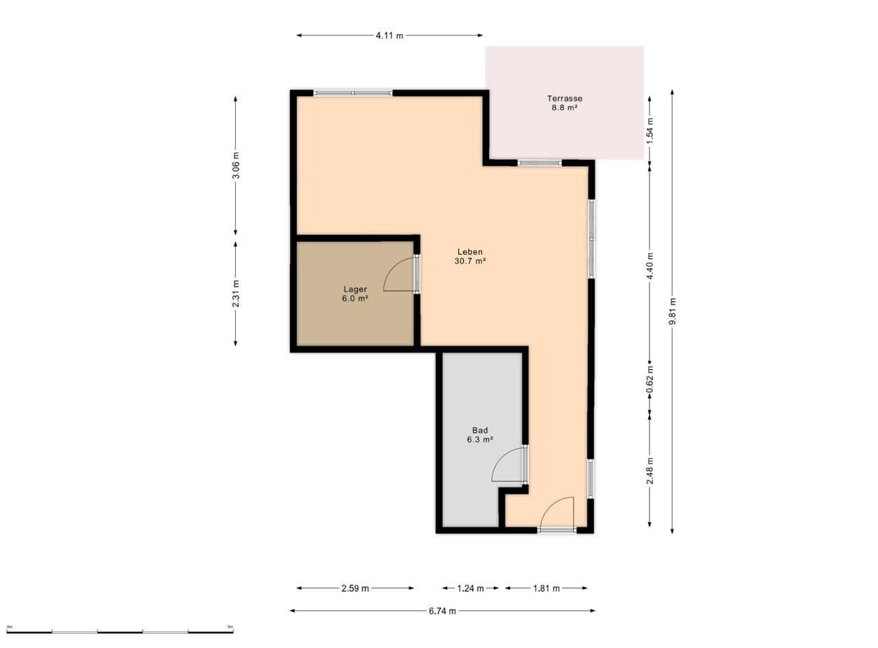
Byt nabízí prostorný studiový prostor s otevřeným konceptem spojení obývacího pokoje a ložnice, samostatnou skladovací místnost a moderní koupelnu. Navíc disponuje krásnou terasou. Díky energeticky úsporné konstrukci mají nájemníci výhodu nízkých provozních nákladů a moderního, budoucnosti odolného standardu bydlení.
815 € nájemného bez poplatků včetně kuchyně + 205 € poplatků
Byt je ideální volbou pro pracujícího jednotlivce s náročnějšími požadavky.
Nachází se v oblíbené čtvrti Voxtrup na jihovýchodě Osnabrücku, kde je klid a převládají moderní obytné domy.
Obchodní možnosti, lékaři, školy a školky jsou rychle dostupné. Centrum Osnabrücku a dálnice A30 jsou dosažitelné během několika minut.
Blízkost polí a zelených ploch dále zvyšuje hodnotu pro volnočasové aktivity. Lokalita je solidní a byt je dobře pronajímatelný.
- Novostavba ve standardu KfW-40-QNG
- Velmi kvalitní vybavení
- Prostorný studiový prostor
- Samostatná skladovací místnost
- Moderní koupelna
- Velká okna s dostatkem denního světla
- Vestavěná kuchyň již zahrnuta
- Krásná terasa
V okolí nemovitosti najdete
Stále hledáte to pravé?
Nastavte si hlídacího psa. Nabídky vybrané na míru dostanete souhrnně 1× denně e-mailem. S Premium profilem máte k ruce hlídačů rovnou 5 a když se něco objeví, informují vás obratem.








