
Pronájem nebytového prostoru • 227 m² bez realitkyHörder Strasse 288, , Severní Porýní-Vestfálsko
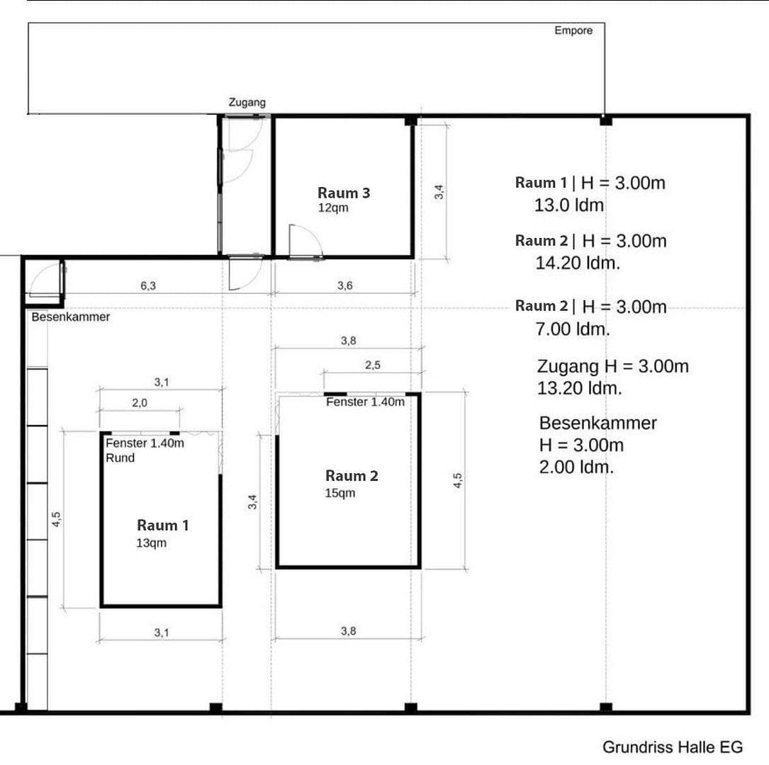
Hörder Strasse 288, , Severní Porýní-VestfálskoMHD 3 minuty pěškySe 227 m² celkové plochy nabízí tato univerzální obchodní hala v centrální lokalitě Witten-Stockum optimální podmínky pro různé využití – ať už jako kancelář, sklad nebo výrobní prostor. Díky výhodnému dopravnímu spojení mezi Dortmundu a Bochumem je atraktivní pro podniky všech velikostí.
Zvláštnosti:
• Dva oddělené vstupy:
• Velká rolovací vrata pro pohodlné dodávky
• Hlavní vstup pro každodenní přístup
Pronájem:
Hala je pronajímána plně zařízená. Mezi vybavení patří:
• Odolné regály pro efektivní skladování
• Moderní kancelářský nábytek včetně psacích stolů, konferenčních stolů a odpočinkových zón
• Konferenční místnost vybavená kvalitním designovým nábytkem
• Dvě oddělené toalety
Hala se nachází v centrální části Witten-Stockum a vyniká svou skvělou infrastrukturou:
• Optimální dopravní napojení: Přímý přístup na dálnici a k veřejné dopravě
• Nákupní možnosti v blízkosti: Edeka a Netto jsou pohodlně dostupné pěšky
• Výhodná poloha pro studenty a partnery: Univerzita Herdecke je vzdálena pouhých 10 minut
• Parkovací místa na místě: Pohodlí pro zaměstnance a návštěvníky
Hala je ihned k nastěhování a nabízí rozsáhlé vybavení přizpůsobené vašim požadavkům:
• Dva oddělené vstupy: Velká rolovací vrata pro pohodlné dodávky a samostatný hlavní vstup
• Efektivní skladování: Včetně robustních regálů
• Flexibilní pracovní prostory: Kanceláře a konferenční místnosti dle potřeby
• Příjemná atmosféra: Světlé místnosti zaplavené denním světlem vytvářejí produktivní pracovní prostředí
Hala je k dispozici za čistý nájem 1 890 € plus 100 € provozních nákladů. Doba pronájmu a podmínky lze individuálně přizpůsobit vašim požadavkům.
Volitelně lze pronajmout pevné parkovací místo přímo před halou. Bez ohledu na to je nakládání a vykládání, stejně jako krátkodobé parkování na příjezdové cestě, kdykoli povoleno.
Parkovací situace u haly na Hörderstraße je celkově uvolněná. V přímém okolí je obvykle k dispozici dostatek veřejných parkovacích míst, což zajišťuje dobrou dostupnost i pro zaměstnance a zákazníky.
Ať už se jedná o mladé firmy nebo zavedené podniky – zde najdete prostor, který je ihned k dispozici bez velkých komplikací.
Parametry nemovitosti
| Stáří | Nad 50 let |
|---|---|
| Číslo inzerátu | 996051 |
| Cena za jednotku | 8 € / m2 |
| Stav | Po rekonstrukci |
|---|---|
| Plocha nebytového prostoru | 227 m² |
Co tato nemovitost nabízí?
| MHD 3 minuty pěšky |
V okolí nemovitosti najdete
Stále hledáte to pravé?
Nastavte si hlídacího psa. Nabídky vybrané na míru dostanete souhrnně 1× denně e-mailem. S Premium profilem máte k ruce hlídačů rovnou 5 a když se něco objeví, informují vás obratem.














