
Prodej domu 7+1 • 155 m² bez realitky, Bádensko-Württembersko
, Bádensko-WürttemberskoMHD 2 minuty pěšky • Parkování • GarážTento udržovaný a kompletně zmodernizovaný rodinný dům přesvědčuje svou prostornou dispozicí, všestrannými možnostmi využití a harmonickým obytným prostředím v klidné rezidenční lokalitě. Bytový dům, který byl původně postaven v roce 1954, byl během let průběžně rekonstruován a dnes se představuje ve velmi dobrém celkovém stavu s moderním obytným komfortem.
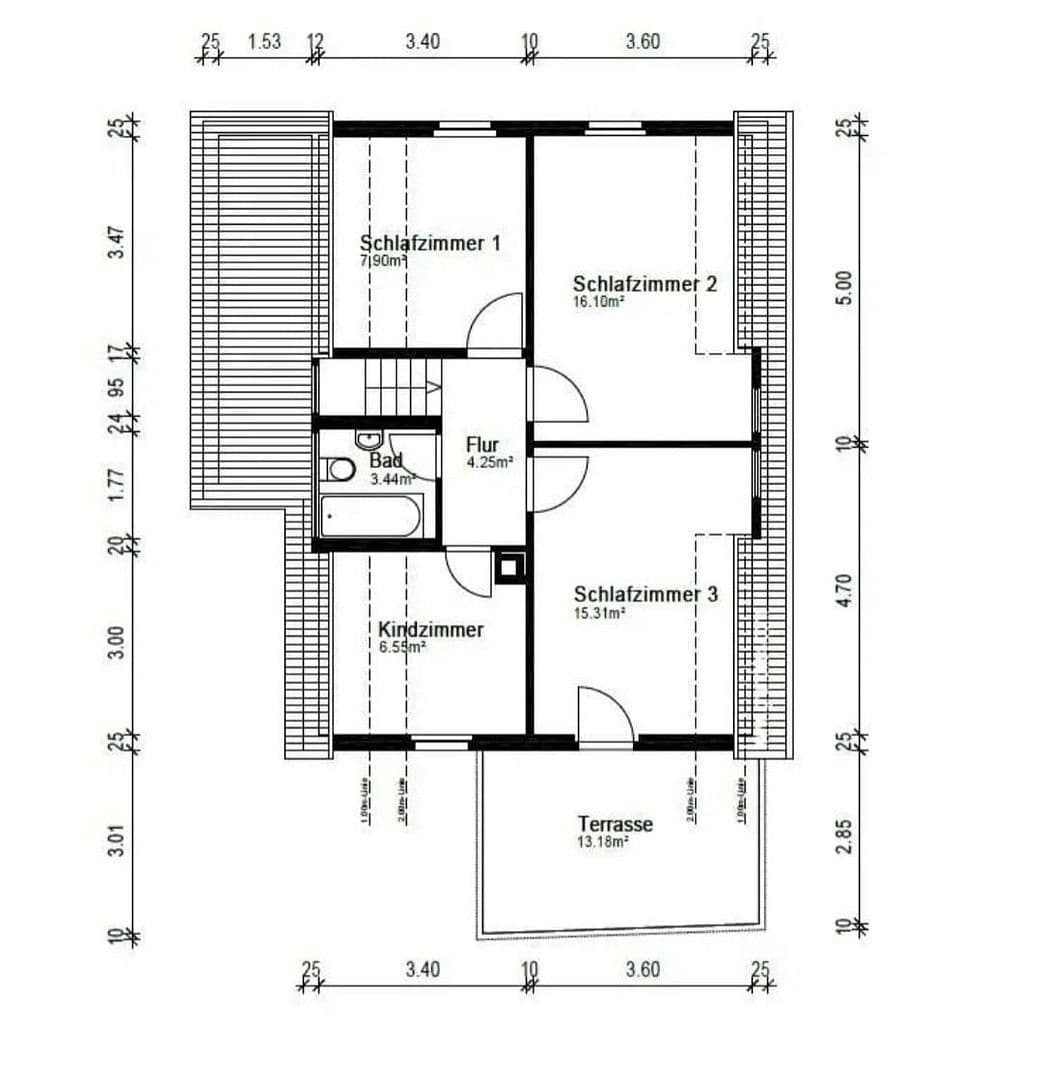
Na obytné ploše přibližně 155 m² se celkem sedm dobře dispozicovaných místností rozprostírá přes dvě obytná patra. Nemovitost tak nabízí dostatek prostoru pro rodiny, vícegenerační bydlení či kombinaci bydlení a práce pod jednou střechou. Uvítá Vás již vstupní hala, ze které jsou přístupné všechny místnosti přízemí.
Srdcem domu je prostorný obývací a jídelní kout s příjemným přísunem světla a přímým přístupem do venkovního prostoru. Velká okna vytvářejí přátelskou atmosféru a harmonicky propojují vnitřní a venkovní prostory. Toto patro doplňuje funkční kuchyně s jídelním koutem a další flexibilně využitelné místnosti, které se ideálně hodí jako ložnice, pokoj pro hosty či domácí kancelář.
V horním patře se nachází několik ložnic s útulným charakterem a další koupelna. Šikmé střechy dodávají místnostem zvlášť příjemnou atmosféru a zároveň zajišťují jedinečný pocit prostoru. Celkově jsou k dispozici čtyři ložnice, čímž se dům ideálně hodí pro rodiny s dětmi.
Suterén nabízí dodatečné užitné prostory a zrekonstruovanou část, která je v současnosti využívána jako fitness místnost. Kromě klasických sklepů a skladovacích prostor zde vzniká další potenciál pro koníčky, volný čas nebo úložný prostor.
Pozemek o rozloze přibližně 412 m² je snadno udržovatelný a nabízí kromě dostatečných parkovacích míst také atraktivní venkovní prostory pro odpočinek a relaxaci. Velká terasa v přízemí s krytím a další terasa v horním patře s elegantní pergolovou markýzou rozšiřují obytný prostor do exteriéru a umožňují slunečné chvíle ve vlastním domově.
Tato atraktivní nabídka je doplněna o dvě garáže a další parkovací místa přímo u domu. Nemovitost je ideální pro kupce, kteří hledají domov s dostatkem prostoru a možnostmi rozvoje.
Nabízená nemovitost se nachází v preferované rezidenční lokalitě Brackenheim v okrese Heilbronn, oblíbeném městě s vysokou kvalitou života a vynikající infrastrukturou. Okolí je charakterizováno udržovanými rodinnými domy, klidnými ulicemi a rodinně přátelskou sousedskou komunitou a nabízí ideální kombinaci bydlení blízko přírody a dobré dostupnosti k okolním městům.
Brackenheim je považován za atraktivní bydliště v ekonomicky silném regionu Heilbronn-Franken. Město spojuje venkovskou idylku s městskou blízkostí a nabízí všechna zařízení denní potřeby v pohodlné dostupnosti. Obchody, pekárny, lékárny, lékaři a gastronomické služby jsou dosažitelné během několika minut.
Zvláště je třeba vyzdvihnout vynikající infrastrukturu pro rodiny. Mateřské školy, základní školy a střední školy se nacházejí přímo na místě a jsou místy pohodlně dosažitelné pěšky nebo na kole. Řada volnočasových aktivit, sportovních klubů a rekreačních oblastí přispívá k vysoké hodnotě bydlení.
Okolní vinice a zelené plochy lákají k procházkám, cyklistickým výletům nebo sportovním aktivitám v přírodě. Zároveň pendlující obyvatelé těží z dobrého dopravního spojení směřujícího do Heilbronnu, Ludwigsburgu a Stuttgartu. Díky blízkosti státních silnic a dálnic jsou regionální hospodářská centra snadno dosažitelná.
I veřejná doprava je dobře rozvinutá a zajišťuje spolehlivé spojení s okolními městy a obcemi. Díky tomu je lokalita vhodná jak pro pracovní cestovatele, tak i pro rodiny, které chtějí kombinovat klidné bydlení s dobrou dostupností.
Samotná obytná lokalita se vyznačuje příjemnou tichostí bez průjezdu cizích vozidel. Zároveň obyvatelé profitují z krátkých vzdáleností ke všem důležitým zařízením. Tato vyvážená kombinace činí dané místo obzvlášť atraktivním pro dlouhodobé bydlení a udržitelnou hodnotu nemovitosti.
Rodinný dům přesvědčuje rozsáhlým a pečlivě udržovaným vybavením, které odpovídá moderním nárokům na bydlení a umožňuje komfortní bydlení bez větších rekonstrukčních zásahů. V rámci různých modernizačních opatření byla nemovitost průběžně udržována a přizpůsobována aktuálním standardům.
Vytápění se provádí prostřednictvím centrálního topení, kde je hlavním zdrojem energie plyn, což zajišťuje efektivní a spolehlivé zásobování teplem. Existující plastová okna společně s masivní konstrukcí zajišťují příjemné vnitřní klima a dobrou energetickou efektivitu.
V obytných a ložnicových prostorech byly především instalovány moderní laminátové podlahy, které vytvářejí útulnou atmosféru a jsou zároveň nenáročné na údržbu a odolné. Kuchyňské a koupelnové prostory jsou vybaveny dlaždicemi a nabízejí funkční a nadčasový vzhled.
Zvláště je třeba vyzdvihnout prostorný obývací pokoj s přímým přístupem na terasu a do zahrady. Tato venkovní část výrazně rozšiřuje komfort bydlení a nabízí ideální předpoklady pro rodinný život, volnočasové aktivity nebo posezení s přáteli venku. K dispozici je také balkon, který poskytuje další možnosti úkrytu v exteriéru.
Dům disponuje dvěma plnohodnotnými koupelnami, čímž i větší rodiny profitují z vysokého každodenního komfortu. Suterén navíc nabízí všestranně využitelné prostory, včetně zařízené fitness místnosti, skladovacích prostor a klasických sklepních prostor.
Krb dodává v obytném prostoru další útulnou atmosféru a zvyšuje hodnotu bydlení zejména v zimních měsících. Stávající terasa a zahrada nabízejí různé možnosti využití – od relaxace až po individuální úpravu zahrady.
Pro vozidla jsou k dispozici dvě garáže a další venkovní parkovací místa, což zaručuje dostatek parkovacích možností. Udržovaný celkový stav nemovitosti umožňuje okamžité nastěhování bez nutnosti rozsáhlých investic.
Celkově se vybavení prezentuje jako promyšlené, rodinné a funkční s úspěšným spojením pohodlí, prostoru a kvality bydlení.
V okolí nemovitosti najdete
Stále hledáte to pravé?
Nastavte si hlídacího psa. Nabídky vybrané na míru dostanete souhrnně 1× denně e-mailem. S Premium profilem máte k ruce hlídačů rovnou 5 a když se něco objeví, informují vás obratem.
































