Prodej domu • 206 m² bez realitky, Bádensko-Württembersko
, Bádensko-WürttemberskoMHD 1 minuta pěšky • ParkováníHistorický trojrodinný dům s památkovou afA
Bývalý farní dům | 74585 Rot am See
Investice s historií – a s reálnou hodnotou
Na prodej je jedna z nejvýznamnějších staveb v Rot am See: památkově chráněný bývalý farní dům postavený v roce 1747.
Takové objekty se na trhu objevují jen zřídka.
Dům byl v roce 2002 rozsáhle a kvalitně zrekonstruován a přestavěn na tři samostatné obytné jednotky. Spojuje historický charakter s moderním standardem bydlení – a zároveň poskytuje značné daňové výhody díky ochraně památky.
Nemovitost je určena pro investory, kteří nekupují jen čtvereční metry, ale i reálnou hodnotu.
Přehled základních údajů
Rok výstavby: cca 1747
Kompletní rekonstrukce: 2002
Celková obytná plocha: cca 206 m²
Pozemek: cca 564 m²
3 samostatné obytné jednotky
3 venkovní parkovací místa
Centrální olejové vytápění (spalovač zrekonstruován v roce 2012)
Klenutý sklep
Památkově chráněná budova (není povinnost vyhotovit energetický průkaz)
Plně pronajatá
Současné nájmy
Aktuální měsíční studený nájem činí:
1.700 € měsíčně
= 20.400 € ročně
Nemovitost je dlouhodobě pronajata a nabízí tak okamžitý příliv hotovosti.
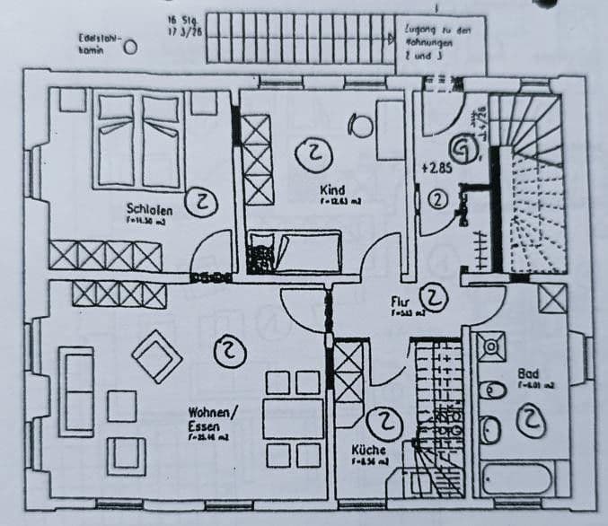
Rozložení bytu
Přízemí – cca 80 m²
Spojedele propojená kuchyň s obývacím pokojem, 2 ložnice, koupelna, terasa
Patro – cca 75 m²
Kuchyň, obývací pokoj, 2 ložnice, koupelna
Podkroví – cca 51 m²
Kuchyň, obývací pokoj, 2 ložnice, koupelna
Jednotky mají dobře funkční dispozice a jsou snadno pronajmoutelné. Díky svému uspořádání se nemovitost hodí jak jako klasická investiční příležitost, tak perspektivně pro vlastní bydlení s částečným pronájmem.
Stav rekonstrukce – Kvalita, která přesvědčuje
V rámci kompletní rekonstrukce v roce 2002 byly mimo jiné provedeny následující práce:
• Obnovení elektroinstalace
• Kompletní nová instalace vodovodních a kanalizačních rozvodů
• Zateplení střechy
• Výměna oken ve spolupráci s památkovou správou
• Modernizace topného systému
• Obnova koupelen
• Instalace nových podlah s izolací proti nárazovému hluku
• Rekonstrukce fasády
Použity byly vysoce kvalitní materiály, jako je pravé dřevěné parkety, přírodní kámen a masivní dřevěné prvky.
Nemovitost je udržovaná a technicky solidní.
Klíčová výhoda: Památková AfA
U investičních nemovitostí spočívá skutečný tahák v daňové struktuře.
U památkově chráněných nemovitostí lze uznat náklady na rekonstrukci podle § 7i EStG:
• 8 let po 9 %
• 4 roky po 7 %
• celkem 100 % uznaných nákladů na rekonstrukci během 12 let
kromě lineárního odepisování budovy.
Obzvláště pro investory s vysokou daňovou sazbou vzniká v prvních 12 letech značná daňová výhoda.
Lokalita
• Centrální umístění v Rot am See
• Jihozápadní orientace
• Zabehnutá obytná struktura
• Spolehlivá obsazenost pronájmy
Pokojná lokalita s dlouhodobou perspektivou.
Nemovitost se nachází v centrální části Rot am See, tradiční obce v okrese Schwäbisch Hall.
Díky centrální poloze na hlavní ulici jsou veškeré základní obchody, pekárny, banky, restaurace i lékařská péče snadno dostupné. Mateřské školy a společenství základních škol se nacházejí rovněž přímo v obci – což je jasná výhoda pro pronajímatelnost.
Rot am See má svou vlastní nádraží s vlakovým spojením do Crailsheim a Schwäbisch Hall. Díky silnici B290 je zajištěno dobré regionální dopravní spojení, což ocení i dojíždějící.
Okolí je charakterizováno venkovským klidem, ustálenou sousedskou komunitou a vysokou kvalitou života blízkou přírodě – přičemž infrastruktura je velmi dobrá.
Tato kombinace fungující místní nabídky, dobrého dopravního propojení a přehledné velikosti obce zajišťuje stabilní poptávku na trhu s pronájmy.
Vybavení a dokumentace
Budova byla v roce 2002 kompletně zrekonstruována a spojuje historický šarm se současným komfortem bydlení.
Vybavení zahrnuje mimo jiné:
• Pravé dřevěné parkety v obytných a ložnicových prostorech
• Kamenické dlaždice v kuchyňském prostoru
• Tři vestavěné kuchyně (součástí kupní ceny)
• Modernizované koupelny s sprchou i vanou
• Dvojskla na dřevěných oknech s izolační vrstvou
• Zateplená střecha
• Obnovená elektroinstalace a nové rozvody vody a kanalizace
• Centrální olejové vytápění (spalovač zrekonstruován v roce 2012)
• Klenutý sklep s dodatečným využitelným prostorem
• Tři venkovní parkovací místa
Nemovitost je udržovaná a technicky solidní.
K dispozici je rovněž detailní plán rekonstrukce se kompletní dokumentací provedených opatření, který zajišťuje transparentnost o stavu modernizace a poskytuje jistotu budoucím majitelům.
Parametry nemovitosti
| Stáří | Nad 50 let |
|---|---|
| Číslo inzerátu | 996292 |
| Plocha pozemku | 564 m² |
| Cena za jednotku | 1 602 € / m2 |
| Stav | Dobrý |
|---|---|
| Užitná plocha | 206 m² |
| Celkem podlaží | 3 |
Co tato nemovitost nabízí?
| Sklep | |
| Parkování | |
| Terasa |
| MHD 1 minuta pěšky |
V okolí nemovitosti najdete
Stále hledáte to pravé?
Nastavte si hlídacího psa. Nabídky vybrané na míru dostanete souhrnně 1× denně e-mailem. S Premium profilem máte k ruce hlídačů rovnou 5 a když se něco objeví, informují vás obratem.















