Prodej domu 4+1 • 119 m² bez realitky, Braniborsko
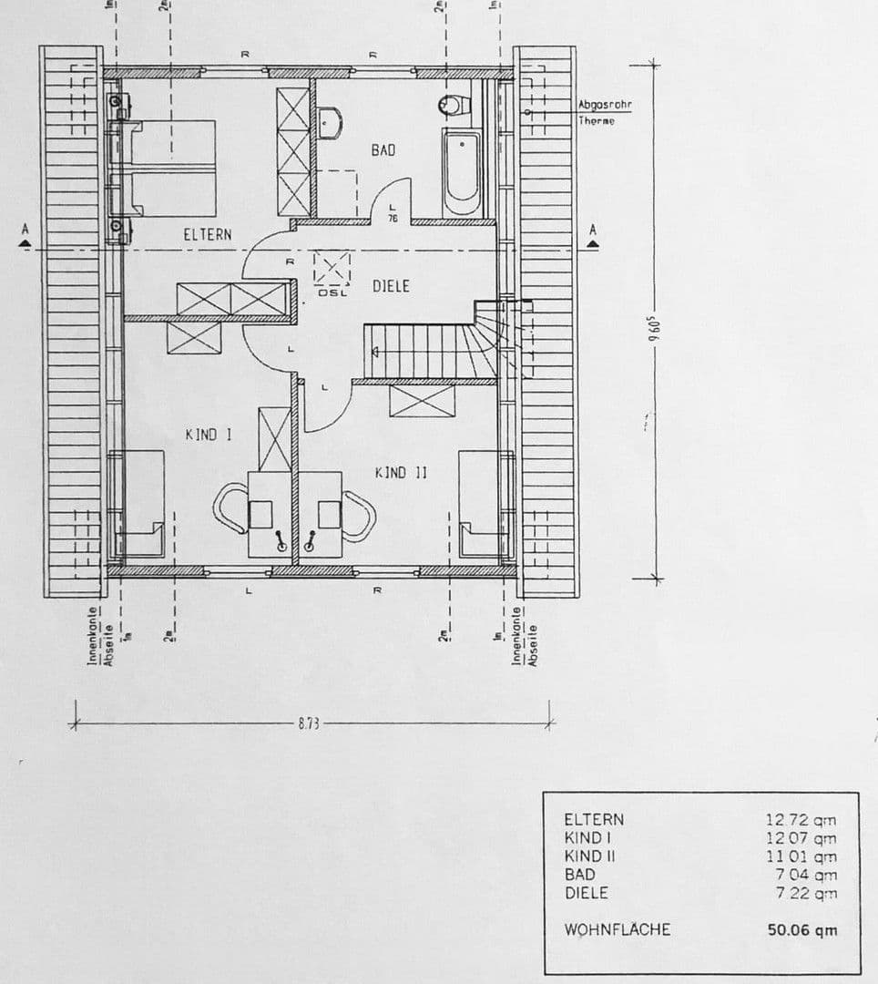
, BraniborskoMHD 1 minuta pěšky • ParkováníNa prodej je udržovaný rodinný dům s celkovou hrubou/využitelnou plochou 165,84 m² (z toho přibližně 28,89 m² přestavitelného podkroví) a přibližně 118,77 m² obytné plochy, který se nachází na rohovém pozemku o rozloze 520 m² v Bernau Friedenstal.
Hlavní přednosti nemovitosti:
• Rohový pozemek o rozloze 520 m², kompletně oplocený betonovým plotem se síťovinou a fólií pro zajištění soukromí
• Fotovoltaická elektrárna (vlastnictví) se 64 panely a 3 měniči (13,2 kWp) – s atraktivní výkupní sazbou až do roku 2030 (výplata prováděna měsíčně); pravý měnič v technické místnosti byl uveden do provozu po opravě v listopadu 2023
• Kompletně zrekonstruovaná elektroinstalace (2019) včetně multimediální výbavy v každé místnosti a předpříprava na instalaci třífázového proudu pro kuchyňskou ostrovní linku
• 4 pokoje, moderní koupelna se sprchou a rohovou vanou; podlahové vytápění (s možností připojení radiátorů), hostinská toaleta (modernizována v roce 2022)
• Obývací a jídelna s krbovým kamenem a komínem (prosinec 2022)
• Přestavitelné podkroví se zásuvkou a novým oknem (2023)
• Podlahy: laminát s lištami, dlaždice v kuchyni, chodbě, hostinské toaletě a koupelně
• Energeticky efektivní izolační okna s dvojitým zasklením
• Plynový kotel (2001) funguje bez problémů (výměna obětní anody v roce 2019, výměna tepelného výměníku v roce 2021)
• Optické připojení s rychlostí až 1000 Mbit/s (2021)
Venkovní prostory:
• Masivní dřevěný carport se dvěma parkovacími místy a elektrickým připojením
• Další 2 parkovací místa na vjezdu
• Psí bouda o rozloze 7,7 m², která je v současnosti využívána jako sklad
• Sklad postavený z masivních materiálů o rozloze 8,56 m²
• Zabudovaný cysterna na vodu s kapacitou 6000 litrů
• Dětský domeček s pískovištěm
• Terasa o rozloze 20,4 m² s markýzou
• Venkovní vodovodní přípojka s odděleným měřičem
• Různé vyvýšené záhony pro milovníky zahradničení
A nezapomínejte, že zde máte milé a na děti orientované sousedy!
Dům se nachází v Bernau, v dopravně výhodné lokalitě, přibližně 10 minut chůze od linky S-Bahn S2. Školky, školy a obchody jsou dosažitelné pěšky – ideální pro rodiny a dojíždějící pracovníky.
Důležité upozornění: Jedná se o soukromý prodej – zájem makléřů není vítán. Prosím, zdržte se kontaktování prostřednictvím makléřů nebo jejich zástupců.
V okolí nemovitosti najdete
Stále hledáte to pravé?
Nastavte si hlídacího psa. Nabídky vybrané na míru dostanete souhrnně 1× denně e-mailem. S Premium profilem máte k ruce hlídačů rovnou 5 a když se něco objeví, informují vás obratem.














