Prodej pozemku • 785 m² bez realitkyUdetstraße 22, , Severní Porýní-Vestfálsko
Udetstraße 22, , Severní Porýní-VestfálskoMHD 1 minuta pěškyCena539 000 €
Přeloženo pomocí AI
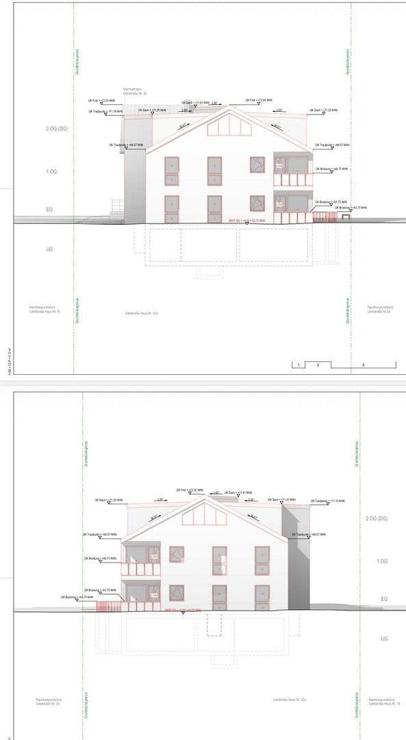
Pozemek bez zástavby se stávajícím stavebním povolením pro šestibytový dům v Sankt Augustin Hangelar.
Plány jsou k dispozici na vyžádání.
Centrálně v Sankt Augustin Hangelar, 50 m od zastávky (linka 66) Hangelar Mitte.
Home Vision Bauprojekte GmbH & Co KG
Burim Tolaj
+49172-4177211
Parametry nemovitosti
| Dostupné od | 14. 3. 2026 |
|---|---|
| Plocha pozemku | 785 m² |
| Číslo inzerátu | 996618 |
|---|---|
| Cena za jednotku | 687 € / m2 |
Co tato nemovitost nabízí?
| MHD 1 minuta pěšky |
V okolí nemovitosti najdete
MHDGrundschule Hangelar
🚶 59 m (1 min)
PoštaPostagentur
🚶 377 m (5 min)
ObchodHielscher
🚶 282 m (3 min)
BankaKreissparkasse Köln
🚶 229 m (3 min)
RestauraceRebenwirt
🚶 291 m (3 min)
LékárnaFalken-Apotheke
🚶 254 m (3 min)
ŠkolaEvangelische und Katholische Grundschule Hangelar
🚶 77 m (1 min)
Mateřská školaKatholisches Familienzentrum St. Anna
🚶 310 m (4 min)
SportovištěSportplatz Hangelar
🚶 499 m (6 min)
HřištěSchulhof Spielplatz
🚶 50 m (1 min)
Vzdálenost k:
Cena539 000 €
Stále hledáte to pravé?
Nastavte si hlídacího psa. Nabídky vybrané na míru dostanete souhrnně 1× denně e-mailem. S Premium profilem máte k ruce hlídačů rovnou 5 a když se něco objeví, informují vás obratem.



