Pronájem kanceláře • 307 m² bez realitkyAxel-Springer-Platz 2 Hamburg Neustadt Hamburg 20355
Přátelské, velmi světlé a všestranné prostory v centru Hamburku. Oboustranné osvětlení a skleněné stěny vytvářejí transparentní prostory v celém objektu. Přirozená dřevěná podlaha a otevřenost podporují prožitek prostoru i pohodu.
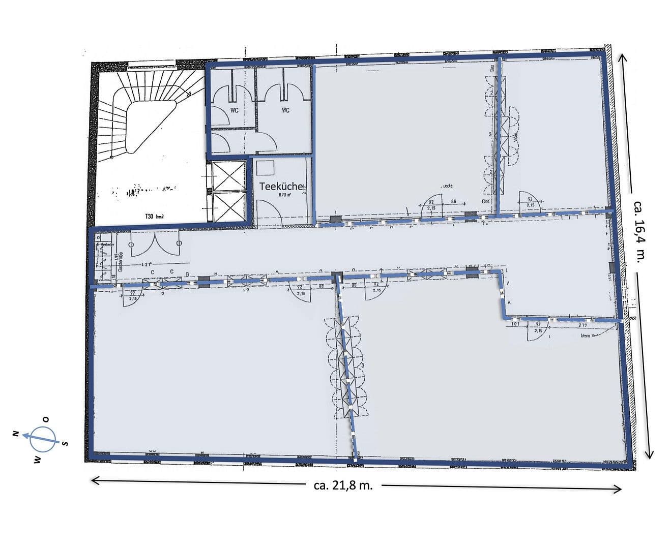
Štědrý půdorys poskytuje flexibilitu – pro tradiční i nové způsoby využití v proměnlivém prostředí kancelářské práce. Ideální pro komunikativní spolupráci v mnohostranně využitelných a příjemných prostorech. V případě potřeby lze některé prostory rozdělit. Prostory určené pro týmovou práci, projektovou činnost, pracovní skupiny či společné setkání – na samostatném patře. Výrazná stavba mírné moderny, druhá Gründerzeit, střed 20. století.
Prostory jsou zároveň k dispozici jako samostatné jednotky o rozloze 72 m², 117 m² a 117 m², včetně podílového využití konferenční místnosti, kuchyňky a společenské zóny. Ideální pro startupy a firmy s růstovým potenciálem.
Nelze najít centrálnější polohu: centrum Hamburku (Neustadt), Axel-Springer-Platz. Za 5–7 minut chůze se dostanete k Binnenalster, Jungfernstiegu (S/U) a Neuem Wallu, Rathausmarktu (U), Gänsemarktu (U), Großneumarktu, Stadthausbrücke (S) a Rödingsmarktu (U). Pět minut MHD od hlavního nádraží a přístavu. V bezprostřední blízkosti je mnoho nákupních a gastronomických zařízení, hotely určené pro obchodní a luxusní turistiku jsou v docházkové vzdálenosti.
Masivní dřevěné parkety, skleněné stěny a dveře, týmové místnosti, optické připojení, LAN kabeláž, kuchyně, vestavěné skříně, kompletně zrekonstruovaný sanitární prostor, venkovní dálkově ovládaný ochranný sluneční stín. Dva rychlé výtahy.
Prostory jsou zároveň k dispozici jako samostatné jednotky o rozloze 72 m², 117 m² a 117 m², včetně podílového využití konferenční místnosti, kuchyňky a společenské zóny. Ideální pro startupy a firmy s růstovým potenciálem.
Neuhaus Handels- und Verwaltungs-GmbH, Axel-Springer-Platz 2, 20355 Hamburg
Všechny ceny jsou uvedeny bez DPH.
Parametry nemovitosti
| Stáří | Nad 50 let |
|---|---|
| Stav | Po rekonstrukci |
| Číslo inzerátu | 996652 |
| Cena za jednotku | 19 € / m2 |
| Dostupné od | 1. 4. 2026 |
|---|---|
| Podlaží | 3. podlaží |
| Plocha kanceláře | 307 m² |
Co tato nemovitost nabízí?
| MHD 1 minuta pěšky |
V okolí nemovitosti najdete
Stále hledáte to pravé?
Nastavte si hlídacího psa. Nabídky vybrané na míru dostanete souhrnně 1× denně e-mailem. S Premium profilem máte k ruce hlídačů rovnou 5 a když se něco objeví, informují vás obratem.


















