Prodej bytu 3+1 • 112 m² bez realitkyHildesheimer Str. 128, , Dolní Sasko
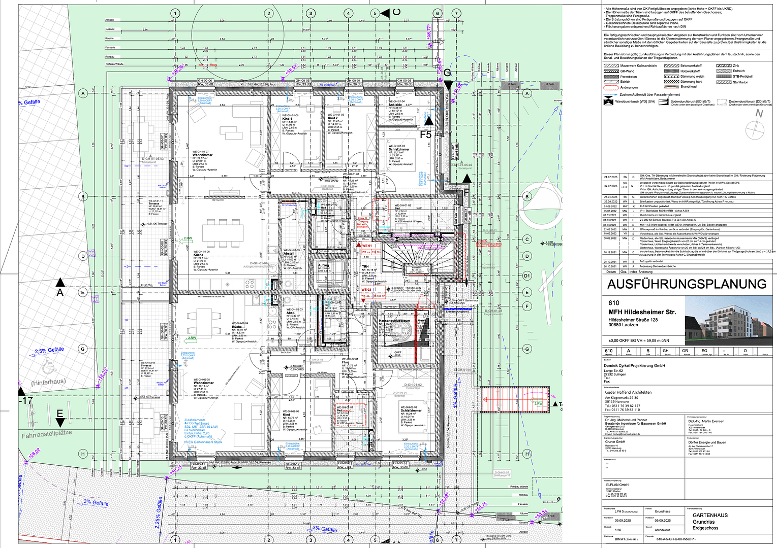
Stavíme exkluzivně pro Vás na adrese Hildesheimer Straße 128 A a B v Laatzen. Na ploše o přibližně 2 100 m² vznikne celkem 22 vlastnických bytů ve dvou bytových domech s podzemní garáží a se všemi vybaveními, která u nové výstavby očekáváte. Stylově působivá, moderní architektura se projevuje ve fasádním designu prostřednictvím kontrastního a přesto harmonického souhry načervenalých cihlových obkladů a klidných bílých omítkových ploch. Obytné budovy mají dva resp. čtyři plnohodnotné nadzemní podlaží, přičemž každá má jedno přízemské patro, a obsahují byty s 3 až 5 pokoji a obytnou plochou přibližně od 57 do 218 m². Všechny byty jsou bezbariérové a přístupné výtahem, přičemž 2 byty v předním domě byly navrženy a upraveny tak, aby byly bezbariérové pro vozíčkáře. Byty disponují podlahovými okny s trojsklem, která Vám poskytují prostory naplněné světlem a výrazně zvyšují kvalitu bydlení. Obytná plocha je opatřena kvalitní parketovou podlahou, která podtrhuje příjemnou atmosféru. V moderních, funkčních a esteticky působivých koupelnách a toaletách vytvářejí vysoce kvalitní jemné keramické dlaždice na podlahách i odpovídající nástěnné dlaždice harmonické akcenty ke čistým plochám natřených stěn. Značkový interiér v podobě armatur, van a bezbariérových sprch promění Vaši novou koupelnu v oázu pohody. Samozřejmě každá jednotka disponuje připojením pro pračku a sušičku. Nezávisle na velikosti se všechny byty vyznačují jasným oddělením soukromých prostorů od prostorného obývacího a jídelního prostoru. Terasy, balkony nebo střešní terasy orientované na jih či západ nabízí ideální rozšíření obytného prostoru venku a zvou Vás k posedávání, například k pohodovému zakončení dlouhého dne. Navíc byly instalovány elektricky ovládané rolety, takže potřebná ochrana před sluncem během slunečných dnů je rovněž zajištěna. Při zájmu o další byty nás neváhejte kontaktovat.
V okolí nemovitosti najdete
Stále hledáte to pravé?
Nastavte si hlídacího psa. Nabídky vybrané na míru dostanete souhrnně 1× denně e-mailem. S Premium profilem máte k ruce hlídačů rovnou 5 a když se něco objeví, informují vás obratem.




