
Pronájem bytu 4+1 • 107 m² bez realitkyAm Rübenstein 3, , Hessen
Am Rübenstein 3, , HessenMHD 1 minuta pěškyTento okouzlující dom s tradiční fachwerkovou konstrukcí z přibližně roku 1890 spojuje historický charakter s funkčním uspořádáním a pevnou strukturou. Základní rekonstrukce proběhla kolem roku 1980.
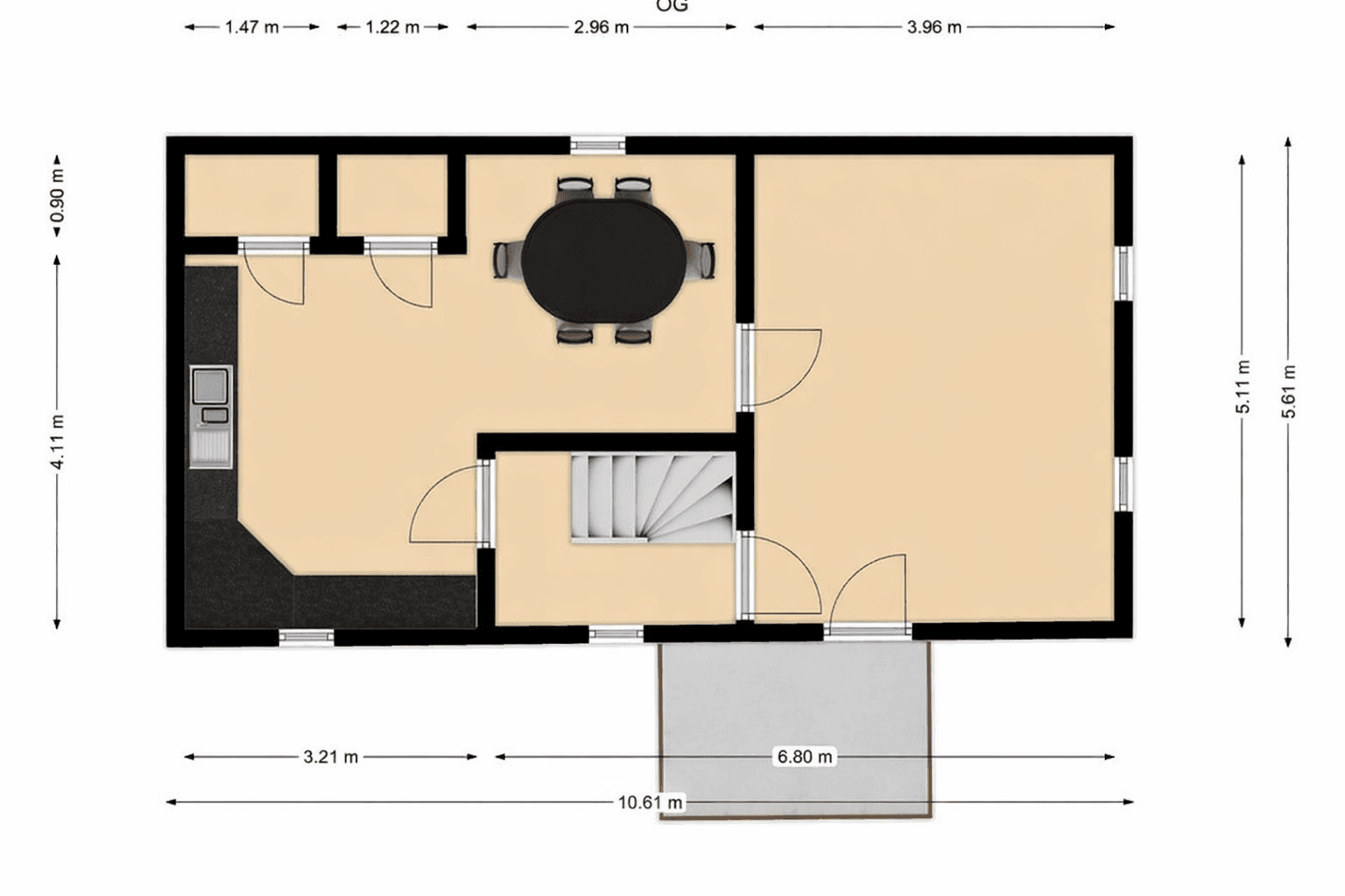
Dům se rozprostírá na třech úrovních (přízemí, patro a půda) a nabízí obytnou plochu přibližně 107 m².
Nemovitost je ideální pro rodiny, spolubydlící nebo páry, kteří potřebují více prostoru a ocení charakter vyvinutého vesnického centra.
Nemovitost se nachází v Heskem, části obce Ebsdorfergrund v okrese Marburg-Biedenkopf. Poloha propojuje klidné bydlení na venkově se skvělým spojením s univerzitním městem Marburg.
Obchody se základními potřebami jsou snadno dostupné. Edeka supermarket se nachází přibližně 700 metrů, další možnosti, mimo jiné Rewe supermarket v Dreihausen, jsou dosažitelné během několika minut jízdy.
Dopravní spojení veřejnou dopravou je velmi dobré:
Autobusová zastávka je vzdálena jen asi 80 metrů, autobusové nádraží je dosažitelné přibližně za 500 metrů. Odtud je pravidelná doprava do Marburgu a do okolních částí.
Rodiny mají prospěch z blízkosti veřejných zařízení. Celostátní škola Ebsdorfergrund a také bazén se nacházejí zhruba 500 metrů.
Univerzitní město Marburg je dosažitelné přibližně za 10–15 minut jízdy a nabízí kompletní infrastrukturu s nemocnicemi, univerzitou, maloobchodem, gastronomií a kulturními zařízeními.
Okolí je charakterizováno vyvinutou rezidenční strukturou, fachwerkovými domy a klidnou, sousedskou atmosférou.
Dům je prezentován v udržovaném a k nastěhování připraveném stavu. Před novým pronájmem byly provedeny údržbové a rekonstrukční práce.
Nemovitost disponuje centrálním olejovým topením, dvěma koupelnami a funkčním uspořádáním ve třech úrovních.
Společně využívaný vnitřní dvůr a další sklepní místnost smysluplně doplňují prostorový koncept.
Nemovitost je tak ihned k nastěhování a disponuje prostornou vestavěnou kuchyní.
V okolí nemovitosti najdete
Stále hledáte to pravé?
Nastavte si hlídacího psa. Nabídky vybrané na míru dostanete souhrnně 1× denně e-mailem. S Premium profilem máte k ruce hlídačů rovnou 5 a když se něco objeví, informují vás obratem.















