
Pronájem bytu 2+kk • 65 m² bez realitky, Bádensko-Württembersko
, Bádensko-WürttemberskoMHD 3 minuty pěšky • ParkováníTento moderní renovarovaný byt na podkroví je absolutní skvost pro každého, kdo hledá nový domov.
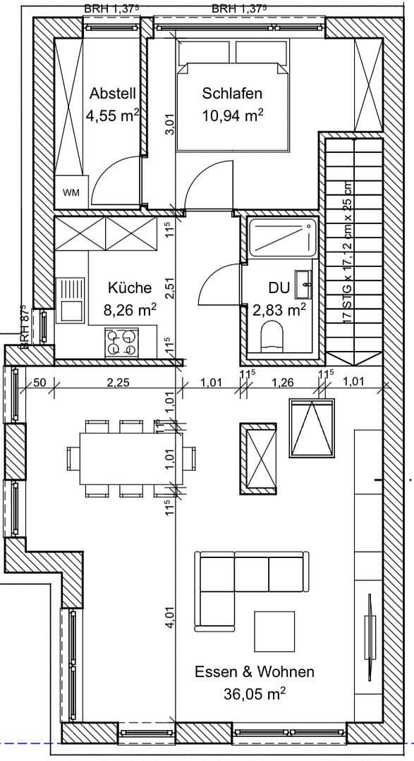
S 2,5 místnostmi a jednou ložnicí a koupelnou nabízí byt vše, co si jen můžete přát. Zvláštním lákadlem je množství oken a vysoký strop ve světlém obývacím pokoji. Nachází se v 1. patře a měl být dokončen v roce 2023.
K dispozici od 01.04.2026, tento byt nabízí dokonalou kombinaci pohodlí a moderního designu. Podlahové topení zajišťuje teplé nohy v chladných dnech a dodává bytu navíc šarm.
Další výhodou tohoto bytu je jeho dopravní dostupnost: Svůj nový domov snadno a rychle dosáhnete autem nebo veřejnou dopravou!
K bytu patří také parkovací místo, takže se nemusíte obávat, když budete mít hosty nebo půjdete nakupovat – parkování je zajištěno!
Byt se nachází na okraji obce Scheppach a nabízí nádherný výhled na okolní krajinu.
Pěší cesta k nejbližší zastávce MHD trvá přibližně 2 minuty, takže se dostanete na požadované místo rychle a jednoduše.
Dálnice je také vzdálena pouze přibližně 5 minut.
- Vestavěná kuchyň může být převzata.
- Parkovací místo je k dispozici.
V okolí nemovitosti najdete
Stále hledáte to pravé?
Nastavte si hlídacího psa. Nabídky vybrané na míru dostanete souhrnně 1× denně e-mailem. S Premium profilem máte k ruce hlídačů rovnou 5 a když se něco objeví, informují vás obratem.















