Pronájem domu 5+1 • 198 m² bez realitkyHamburg Wohldorf-Ohlstedt Hamburg 22397
Hamburg Wohldorf-Ohlstedt Hamburg 22397MHD 1 minuta pěškyV jedné z nejvyhledávanějších a nejzelenějších lokalit pro bydlení Hamburku se toto kvalitně zhotovené architektonické sídlo, postavené v masivní zdivové konstrukci, představuje v klasickém venkovském stylu.
S přibližně 198 m² obytné plochy a pozemkem o rozloze cca 1 068 m², který se idylicky začlenil do přírody, si nemovitost získává charakteristickou prostornost, soukromí a nadčasovou eleganci.
Reprezentativní obývací a jídelní část o rozloze cca 60 m² tvoří srdce domu. Velká okna zasahující až k podlaze zajišťují vynikající přísun světla, zatímco podlahové topení a otevřený mramorový krb vytvářejí zvláštní atmosféru domova. Prostorná jižní terasa pak harmonicky rozšiřuje obytný prostor do zahrady.
Kuchyně je vybavena moderními značkovými spotřebiči a kvalitní granitovou pracovní deskou. Odtud máte přímý přístup do domácí prádelny, která je vybavena připojením pro pračku, samostatným skladovacím a technickým prostorem a praktickým vchodem zvenčí. Přízemí je také ideálně doplněno o pokoj, který lze využít pro hosty nebo jako pracovnu.
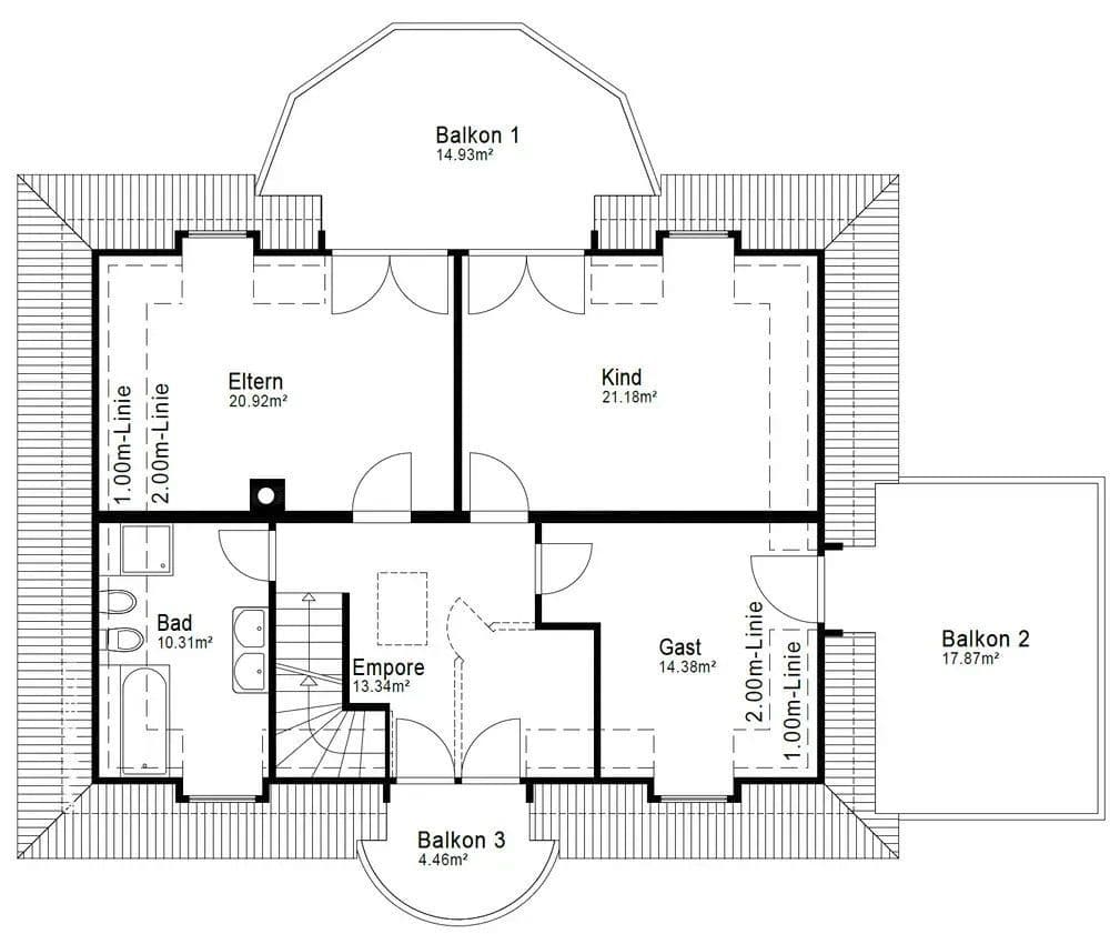
V patře se nachází tři prostorné ložnice, soukromá sauna, kompletní koupelna a tři sluncem zalité střešní terasy. Další úložný prostor nabízí také podkroví.
Zahrada je nenáročná na údržbu a poskytuje rozsáhlý trávník se spoustou soukromí. Na pozemku jsou k dispozici 2–3 parkovací místa pro automobily.
Dům je vytápěn moderním plynovým kondenzáčním kotlem značky Buderus (nový 2023, zemní plyn H).
Energetický náročnostní index: 96,33 kWh/m² ročně (třída C).
Výjimečný domov pro ty, kteří chtějí spojit přírodu, klid a luxusní bydlení – a zároveň mít skvělou dostupnost do centra Hamburku.
Makrolokace
Wohldorf-Ohlstedt patří k nejexkluzivnějším lokalitám na severu Hamburku. Okolí utvářejí rozsáhlé přírodní rezervace jako les Wohldorfer a Duvenstedter Brook. Do centra Hamburku se dostanete linkou U1 za cca 35–40 minut.
Mikrolokace
Klidná, rodinně přátelská obytná ulice s udržovaným vilovým prostředím. V blízkosti se nachází obchody, týdenní trh, restaurace, jesle a školy (včetně Gymnázia Ohlstedt). Okolní lesy a turistické stezky začínají prakticky přímo za domem.
Upozornění:
- Pro střešní terasy je v létě 2026 plánována komplexní a kvalitní renovace.
- Péče o zahradu je povinností nájemce.
- Náklady na elektřinu, plyn a vodu (pro zásobování a odvod odpadních vod) hradí nájemce přímo na základě vyúčtování od příslušných dodavatelů.
- Je sjednána indexovaná nájemná podle § 557b BGB.
- Minimální doba pronájmu je 24 měsíců.
Zájem?
Těšíme se na krátké představení s Vaším plným jménem a počtem osob, které se chystají nastěhovat.
V okolí nemovitosti najdete
Stále hledáte to pravé?
Nastavte si hlídacího psa. Nabídky vybrané na míru dostanete souhrnně 1× denně e-mailem. S Premium profilem máte k ruce hlídačů rovnou 5 a když se něco objeví, informují vás obratem.









