Prodej domu • 746 m² bez realitkyKölner Straße 73b, , Severní Porýní-Vestfálsko
Kölner Straße 73b, , Severní Porýní-VestfálskoMHD 3 minuty pěšky • ParkováníCo kdysi byl rolnický statek, byl v letech 2000 až 2005 rodinou majitelů s velkým architektonickým citem, řemeslnou kvalitou a láskou k detailu přeměněn na kvalitní obytný areál. Z hostiny statku vznikl harmonický celek čtyř samostatných rodinných domů, uspořádaných kolem chráněného, atmosférického vnitřního nádvoří.
Lokalita dokonale spojuje infrastrukturu a přírodu. Školy, mateřské školy, zdravotní péče, obchody a sportoviště se nachází v bezprostřední blízkosti. Nedaleké nizozemské město Venlo ještě rozšiřuje nabídku. Přírodní park Maas-Schwalm-Nette se svými prémiovými turistickými stezkami a rozsáhlá síť cyklostezek z něj činí oblast vysoce ceněnou i v širším regionu pro volnočasové aktivity.
Blízkost dálnic A61 a A40 nabízí výborné napojení na všechny okolní aglomerace a Kaldenkirchen má také své nádraží.
Jelikož se jedná o výjimečnou nemovitost, existuje k ní podrobná internetová prezentace na:
eversdeanachris.com
Energetické průkazy jsou k dispozici:
Dům 1: Energetický průkaz na základě energetické potřeby; konečná spotřeba energie 187,2 kWh; průkaz platný do 24. 2. 2036; hlavní energetický zdroj: plyn; energetická třída F
Dům 2: Spotřební energetický průkaz; konečná spotřeba energie 63,2 kWh; energetický průkaz platný do (uvádí se datum neúplně); hlavní energetický zdroj: plyn; energetická třída B
Dům 3: Spotřební energetický průkaz; konečná spotřeba energie 95,8 kWh; energetický průkaz platný do 24. 2. 2036; hlavní energetický zdroj: plyn; energetická třída C
Dům 4: Spotřební energetický průkaz; konečná spotřeba energie 62 kWh; energetický průkaz platný do 24. 2. 2036; hlavní energetický zdroj: plyn; energetická třída B
Parametry nemovitosti
| Stáří | Nad 50 let |
|---|---|
| Číslo inzerátu | 997159 |
| Plocha pozemku | 1 284 m² |
| Stav | Dobrý |
|---|---|
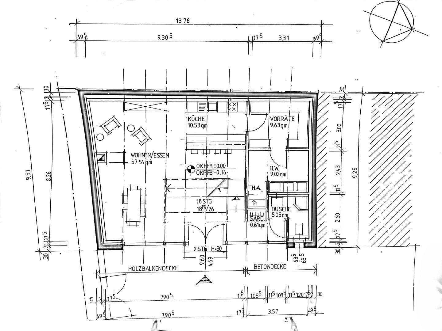
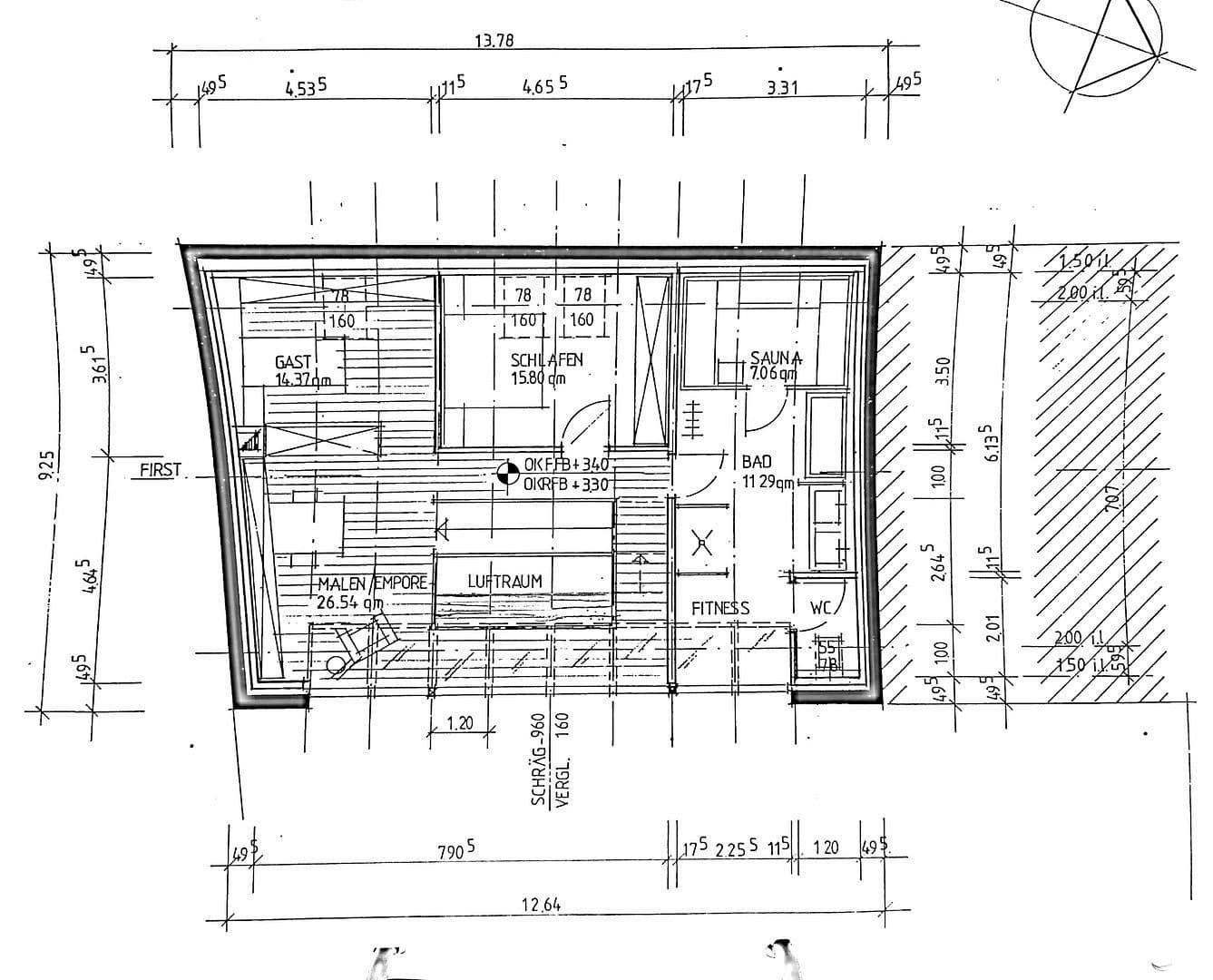
| Užitná plocha | 746 m² |
| Cena za jednotku | 2 212 € / m2 |
Co tato nemovitost nabízí?
| Sklep | |
| Parkování | |
| Terasa |
| MHD 3 minuty pěšky |
V okolí nemovitosti najdete
Stále hledáte to pravé?
Nastavte si hlídacího psa. Nabídky vybrané na míru dostanete souhrnně 1× denně e-mailem. S Premium profilem máte k ruce hlídačů rovnou 5 a když se něco objeví, informují vás obratem.




















