Pronájem bytu 5+1 • 138 m² bez realitkyBahnhofstraße 18, , Bavorsko
Byt snů ve historické vile z doby zakladatelského rozmachu – 138 m² s obrovskou střešní terasou přes 60 m²
Hledáte prostorný, stylový byt s jedinečným charakterem?
Pak je tento pečlivě zrekonstruovaný byt v historické budově ve 1. patře majestátní vily z roku 1890 přesně to pravé pro Vás!
Přehled bytu:
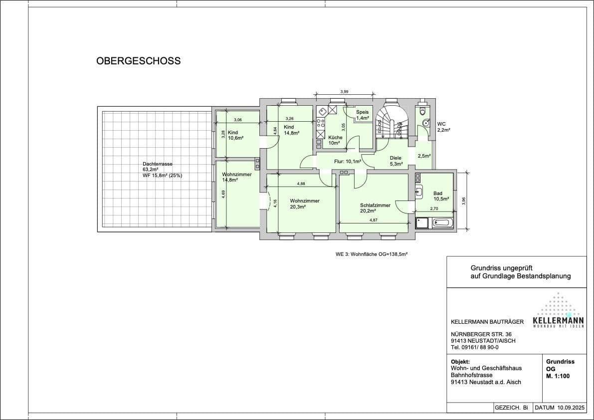
Obytná plocha: cca 138,5 m² | 5 pokojů | Rok výstavby: 1890 | Rekonstruováno: 2024 | K nastěhování ihned
Rozložení:
Byt zaujme promyšleným uspořádáním: dva prostorné obývací pokoje (20,3 m² a 14,8 m²), světlá ložnice (20,2 m²), dva dětské pokoje (14,8 m² a 10,6 m²), moderní vestavěná kuchyň se spíží, velká koupelna (10,5 m²) a samostatné WC. Dále je zde chodba, vstupní hala a dostatek úložného prostoru.
Hvězdou bytu je střešní terasa:
Krásná střešní terasa o rozloze cca 63 m² Vás během teplých měsíců zve k odpočinku, grilování a vychutnávání – jedinečný prvek, který se ve své velikosti zřídka kde objeví!
Vybavení a kouzlo:
Vysoké, reprezentativní místnosti s atmosférou zakladatelské doby, moderní designer podlahy, nová vestavěná kuchyň, dřevěná okna a plynové vytápění zajišťují příjemný pocit z bydlení, který spojuje atmosféru starobylých budov s moderním komfortem.
Lokalita:
Vila se nachází blízko centra okresního města Neustadt an der Aisch. Dětské hřiště, mateřská školka, škola, lékaři, nemocnice, sportoviště, bazény, kavárny a dobře zásobené obchody jsou dosažitelné pěšky. Výborná dopravní dostupnost díky silnici B8 a vlakovému spojení do Norimberku a Würzburgu.
V okolí nemovitosti najdete
Stále hledáte to pravé?
Nastavte si hlídacího psa. Nabídky vybrané na míru dostanete souhrnně 1× denně e-mailem. S Premium profilem máte k ruce hlídačů rovnou 5 a když se něco objeví, informují vás obratem.














