Prodej domu 6+1 • 189 m² bez realitky, Severní Porýní-Vestfálsko
Na prodej je samostatně stojící rodinný dům zděný (verklinkert) s energetickou třídou KfW 55, postavený v roce 2018. Dům kombinuje moderní architekturu, vynikající kvalitu stavby a špičkové technické vybavení na prostorném pozemku o rozloze přibližně 794 m². Nabízí přes tři patra zhruba 260 m² obytné plochy, kterou lze flexibilně využít pro rodiny, home office nebo vícero generační využití.
• Obytná plocha (podle WoFIV): cca 188,8 m²
• Užitečná plocha (podle DIN 277): cca 164,6 m²
• Celková užitná plocha (bez teras/balkonu/skořepin): cca 353,4 m²
Díky geotermální energii, řízenému větrání obytných prostor, podlahovému chlazení/ohřevu a smart-home technologii zažijete maximální komfort bydlení při extrémně nízkých nákladech na energii.
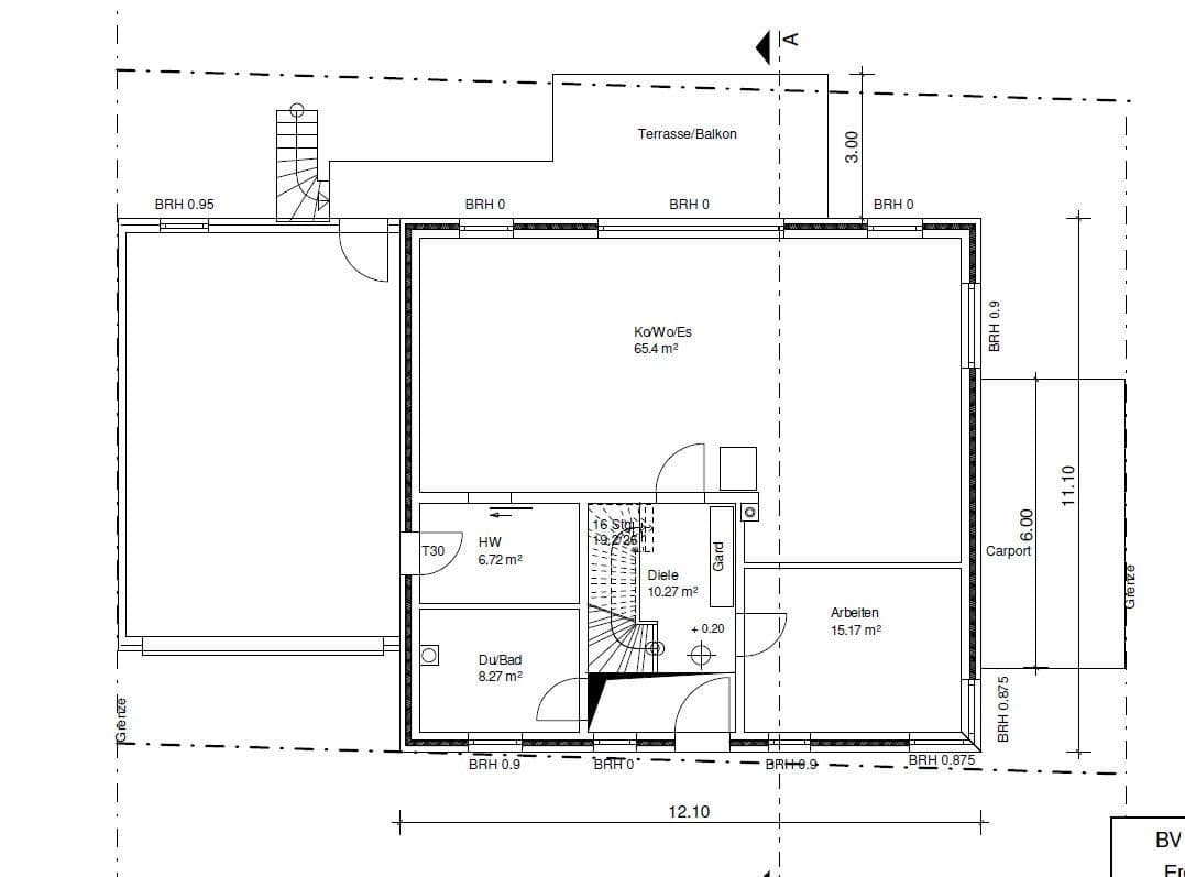
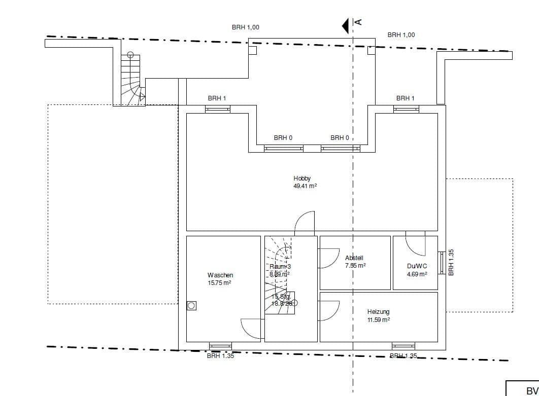
Půdorysy / Rozložení místností
Přízemí:
• Otevřený obývací/jídelní/kuchyňský prostor
• Pracovna (volitelná)
• Toaleta pro hosty se sprchou
• Technická místnost s dodatečným vstupem do garáže
• Prostorná hala s výhledem do patra
Patro:
• Hlavní ložnice rodičů s přístupem do klimatizované šatny
• Šatna s přímým vstupem do koupelny
• Dva dětské pokoje (jeden s dodatečnou mezzaninem)
• Rodinná koupelna se sprchou, vanou, dvojitým umyvadlem a toaletou
Suterén:
• Hobby místnost (možné využití i jako kuchyně, obývací pokoj nebo ložnice)
• Koupelna se sprchou a toaletou
• Skladovací místnost (vhodná i jako další ložnice)
• Místnost pro topení
• Prádelna
• Chodba s velkým úložným prostorem
Erftstadt-Erp je klidná čtvrť v bezprostřední blízkosti Lechenich a nabízí velmi dobrou dostupnost do Kolína, Bonnu a okolí.
Ideální pro rodiny: základní škola, mateřská škola, supermarket, lékař a lékárna se nacházejí přímo na místě.
V bezprostředním okolí Erftstadtu najdete řadu středních škol, nákupních možností, zdravotnickou péči a vynikající nabídku volnočasových aktivit (Ville-Seen, cyklistické/turistické trasy).
Dopravní dostupnost:
• Dálnice A1, A61, A553 dosažitelné během několika minut
• Silnice B265 s přímým spojením do Kolína
• Nádraží Erftstadt-Liblar s nástupem na regionální dopravu (do Kolína/Bonnu)
• Energetická účinnost: standard KfW 55, geotermální energie, centrální větrací systém
• Okna: trojitě zasklená okna značky Schüco s vylepšenou odolností proti vloupání
• Podlahové vytápění/chlazení: v přízemí, patře i suterénu (částečně i ve sprchách)
• Výška stropů: přízemí 2,72 / 5,60 m, suterén 2,59 m
• Smart Home: spínací systém Busch & Jäger, programovatelný a ovladatelný přes aplikaci
• Klimatizace: v hlavní ložnici rodičů
Vnitřní vybavení:
○ Velkoformátové dlaždice z jemného keramického kamene 120 x 60 cm
○ Schodiště z přírodního kamene
○ Vysoce kvalitní vinylová podlaha v ložnicovém prostoru (průmyslový standard)
○ Extra široké a vysoké dveře v celém domě
Garáž a parkovací místa:
○ Dvojgaráž s přístupem do domu a na zahradu
○ Carport s krytinou z tvrzeného skla (s možnosti přístupu)
○ 3 krytá parkovací místa + 5 dalších volných míst
Střecha: glazované ploché střešní tašky
Suterén: plně dokončený, betonové stěny (36,5 cm) v zemní části, vhodný k obytnému využití
Zahrada: velmi upravená, s orientací na slunce
Prodej formou aukce na nejvyšší nabídku
– Uvedená cena je minimální nabídka
Prohlídky probíhají výhradně po předložení následujících dokumentů:
• Platná kopie dokladu totožnosti
• Doklad o financování nebo kapitálový důkaz ve výši minimálně 1 000 000 €
První kontakt prosím výhradně e-mailem.
• Přesná adresa bude po kvalifikovaném prvním kontaktu ráda sdělena.
________________________________________
Energetické údaje
• Typ energetického průkazu: průkaz nárokové spotřeby
• Energetická třída: A+
• Konečná spotřeba energie: 17,08 kWh/(m²·rok)
• Primární spotřeba energie: 30,74 kWh/(m²·rok)
• Druh vytápění: geotermální
• Rok výstavby dle energetického průkazu: 2018
V okolí nemovitosti najdete
Stále hledáte to pravé?
Nastavte si hlídacího psa. Nabídky vybrané na míru dostanete souhrnně 1× denně e-mailem. S Premium profilem máte k ruce hlídačů rovnou 5 a když se něco objeví, informují vás obratem.














































