
Prodej domu • 224 m² bez realitky, Bádensko-Württembersko
Soukromý prodej – ŽÁDNÍ MAKLÉŘI!
– Prosíme, zdržte se dotazů od makléřů!
Tento samostatně stojící rodinný dům Vám nabízí 224 m² obytné plochy rozložené ve třech patrech. Imponuje svou prostornou dispozicí, světlými místnostmi a vynikající polohou s výhledem do přírody.
Přízemí:
Při vstupu do domu Vás uvítá příjemná vstupní hala se šatnou. Mezi chodbou a kuchyní se nachází stylové starožitné vitrážové okno, které prostoru dodává zvláštní šmrnc. Hostinská toaleta je vybavena sprchou. K dispozici je samostatný televizní pokoj a rovněž prostorný obývací a jídelní pokoj, které nabízejí různé možnosti využití. Kuchyň je oddělitelná posuvnými dveřmi od jídelny. Z jídelny máte přímý vstup na velkou krytou terasu se skleněnou střechou – ideální pro relaxační chvíle v upravené zahradě.
Patro:
V patře se nachází velmi prostorná ložnice nad carportem a garáží. Čtyři další pokoje poskytují dostatek místa pro děti, hosty nebo provoz domácí kanceláře. Prostorná koupelna s dostatkem denního světla, vanou, sprchou a podlahovým vytápěním doplňuje celkovou nabídku prostor.
Půda:
Velký půdní prostor je přístupný, lze jej rozšířit o další obytnou část a nabízí výborné úložné prostory.
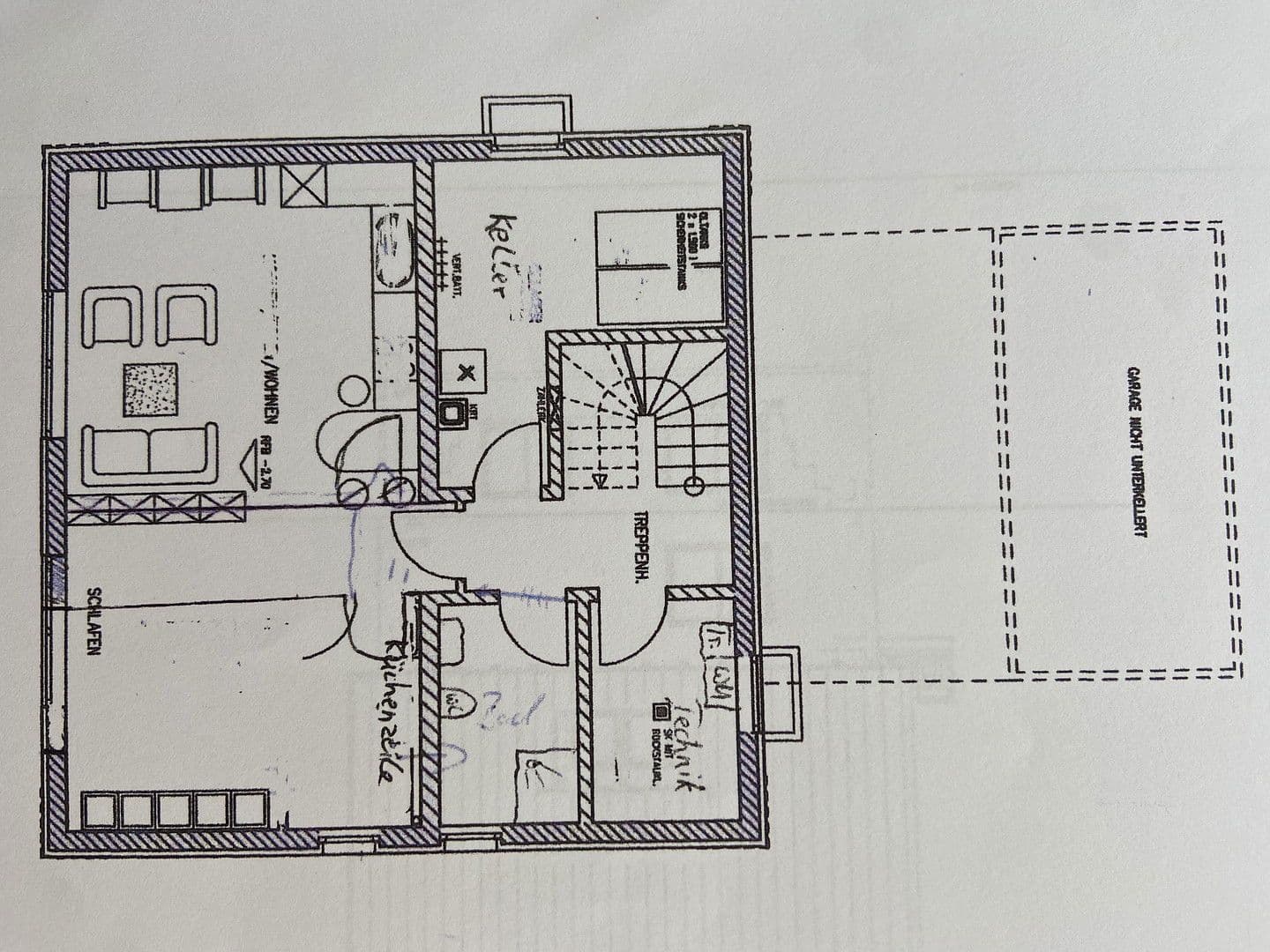
Suterén:
V suterénu jsou dvě světlé a prostorné místnosti s velkými okny, kuchyň a prostorná koupelna. Jsou ideální například jako hobby místnost, pracovna či pokoj pro hosty. Tyto prostory je možno rovněž užít jako samostatné bytové jednotky. Kromě toho naleznete sklepní místnost i technickou/domácí provozovnu s připojením pro pračku a sušičku.
ENERGIE:
Energetická účinnost: A
Energetický štítek: k dispozici
Hlavní zdroj energie: dálkové vytápění
Spotřeba energie: 42,9 kWh/(m²·rok)
Platnost do: 02.03.2035
Rok výstavby (podle energetického štítku): 2007
Výkonná fotovoltaická instalace (8,2 kWp) s akumulačním systémem (pro co největší soběstačnost, možnost napojení do sítě)
• Nejlepší poloha s výhledem do zeleň na západ (terasa), druhá terasa na východ, klidná ulice v obytné čtvrti
• Bydlení a práce / péče: Pro tento účel jsou v suterénu ideálně využitelné místnosti s vlastní koupelnou a kuchyní
Pozemek (619 m²) sousedí s loukou a polem – nabízí volný výhled a nádherný západ slunce. Vzdálenost k sousedním domům je příjemně prostorná, poloha je opravdu idylická a klidná.
Rodinný dům má 224 m² obytné plochy ve 3 patrech, plus 18 m² sklepní/technické místnosti, velkou terasu s kvalitní krytí, dále carport a garáž a 2 parkovací místa. Objekt nevyžaduje žádné rekonstrukční práce. Krásná zahrada, která je pečlivě udržovaná, obsahuje mimo jiné třešňový i švestkový strom.
Další informace:
K dispozici od: květen 2026 nebo později
Máte-li zájem, kontaktujte nás a domluvte si s námi prohlídku.
V příloze naleznete:
• Smlouvu o dílo
• Přehled obytných a užitkových ploch domu
• Stavební výkresy
• Výpis z katastru nemovitostí – energetický štítek
• Popis zařízení pro dálkové vytápění
Popis lokality:
Dům se nachází v klidné vedlejší ulici obytné čtvrti „Solpark“ ve Schwäbisch Hall-Hessental. Všechny možnosti nákupu, mateřské školy i školy jsou v docházkové vzdálenosti. Centrum Schwäbisch Hall je snadno dostupné na kole, autem nebo městskou hromadnou dopravou; veřejná doprava je zde výborně zajištěna.
Dopravní situace:
• Spojení autobusem: Linka 2 přímo na konci ulice – centrum, škola, nádraží a spojení s meziměstskou autobusovou zastávkou
• Linka 1: cca 700 metrů – centrum, nádraží a spojení se ZOB
• Mateřské školy: 350 m, 1 km, 1,2 km
Obec Hessental (cca 5000 obyvatel), která je součástí Schwäbisch Hall, nabízí skvělou infrastrukturu v okruhu 5 km.
Vybavení:
• Krytá terasa s elektrickou markýzou a boční markýzou (směrem na západ) z roku 2020
• Fotovoltaická instalace s 8,5 kWp a 6,5 kW akumulátorem z roku 2018
• Koupelna s přirozeným denním světlem
• Koupelna se sprchou a denním světlem
• Hostinská toaleta (s denním světlem) se sprchou
• Vestavěná kuchyň
• Elektrické rolety v obytné části
• Švédská kamna
• Dubová parketa, dlaždice, koberce (v patře)
• Sklep
• Zahrada
• Carport
• Garáž
• Wallbox od Heidelbergu
Parametry nemovitosti
| Stáří | Nad 50 let |
|---|---|
| Číslo inzerátu | 997742 |
| Užitná plocha | 224 m² |
| Celkem podlaží | 3 |
| Stav | Dobrý |
|---|---|
| PENB | A - Mimořádně úsporná |
| Plocha pozemku | 619 m² |
| Cena za jednotku | 3 348 € / m2 |
Co tato nemovitost nabízí?
| Balkón | |
| Garáž | |
| Parkování | |
| Terasa |
| Sklep | |
| MHD 1 minuta pěšky |
V okolí nemovitosti najdete
Stále hledáte to pravé?
Nastavte si hlídacího psa. Nabídky vybrané na míru dostanete souhrnně 1× denně e-mailem. S Premium profilem máte k ruce hlídačů rovnou 5 a když se něco objeví, informují vás obratem.





















