Prodej bytu 3+1 • 85 m² bez realitkyFriedrich-Pieper-Str. 6, , Severní Porýní-Vestfálsko
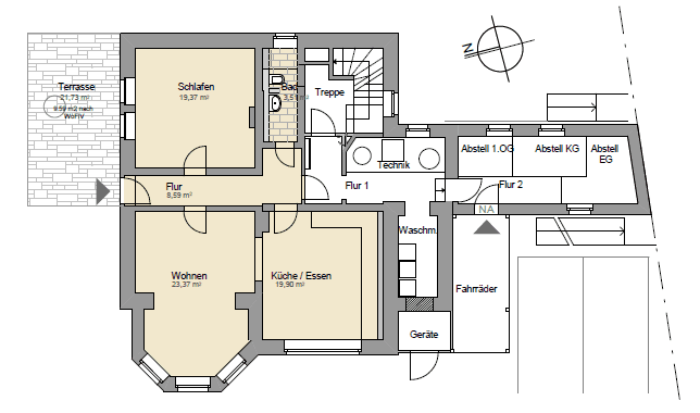
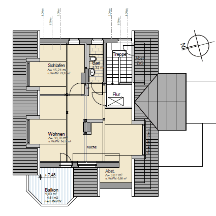
Friedrich-Pieper-Str. 6, , Severní Porýní-VestfálskoMHD 2 minuty pěšky • ParkováníNabízí se přibližně 88,5 m² velký, bezbariérový třípokojový byt s velkým zastřešeným balkonem (10 m²) a dodatečnou terasou o rozloze 15 m² v exkluzivní vilové čtvrti Friedrichshöhe/Am Königsberg v Detmold-Heiligenkirchen.
Stav budovy odpovídá novostavbě, protože byly kompletně obnoveny všechny rozvody, podlahy, stěny, stropy, koupelny, dveře, topení i střecha.
Další informace o ostatních vlastnických bytech ve vile naleznete na www.villa-sonnenblick.com
V rámci celkové rekonstrukce vily "Sonnenblick" budova získala energetickou třídu B. Je nainstalováno vzduchové/tepelné čerpadlo, které zásobuje podlahové vytápění i teplou vodu. Vila z roku 1905 okouzlí prvky dobové výstavby v kombinaci s nejmodernější technikou.
Společný pozemek má rozlohu 802 m².
Byt se vyznačuje přírodním, klidným obytným prostředím s exkluzivními vilami a výhledem na památník Hermannsdenkmal. Skanzen LWL je také vzdálen jen několik minut.
Zvláště stojí za zmínku rodinné přátelské okolí a velmi dobrá infrastruktura. Linka autobusu 701 je vzdálena cca 200 m a krásné centrum Detmold dosáhnete na kole za 10 minut.
V Heiligenkirchen se nachází všechny obchody a zařízení pro každodenní potřeby (Rewe, lékárna, lékaři, pošta, čerpací stanice, mateřská školka, školy atd.).
Byt disponuje podlahovým vytápěním a multimediálními přípojkami ve všech místnostech. Budova je vybavena moderním vzduchovým tepelným čerpadlem se centrálním zásobováním teplou vodou.
K bytu náleží kromě zastřešeného balkonu také velká terasa o rozloze 15 m² k exkluzivnímu využití.
Soukromý prodej – žádní makléři!
V okolí nemovitosti najdete
Stále hledáte to pravé?
Nastavte si hlídacího psa. Nabídky vybrané na míru dostanete souhrnně 1× denně e-mailem. S Premium profilem máte k ruce hlídačů rovnou 5 a když se něco objeví, informují vás obratem.


















