
Pronájem bytu 3+1 • 81 m² bez realitkyMartin-Luther-Str. 10 Grafing Grafing bei München Bayern 85567
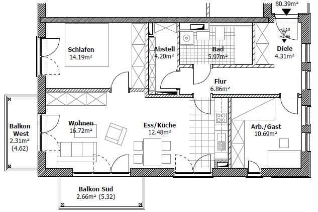
Martin-Luther-Str. 10 Grafing Grafing bei München Bayern 85567MHD 1 minuta pěšky • Výtah • GarážTento světlý a kvalitní 3-pokojový byt je k dispozici od 01.05.2026 a nachází se v udržované obytné budově z roku 2008. Pomocí výtahu se pohodlně dostanete do druhého patra. Obývací pokoj je zaplaven světlem díky dvěma balkonům (jihovýchodní a jihozápadní) a mnoha francouzským oknům. Vestavěná kuchyňská linka je součástí nájmu.
Rezidenční objekt z masivního cihlového provedení je vybaven vysoce kvalitní tepelnou izolací a vytápění je zajištěno udržitelným dálkovým teplem (bioplyn). Nemovitost se nachází v Grafing u Mnichova. V jeho blízkosti se nacházejí železniční linky S4, S6 a RB 48, stejně jako několik autobusových linek, které Vás spojují s regionálními i nadregionálními destinacemi. V bezprostředním okolí najdete několik lékařů, restaurací, pekáren, supermarketů a kaváren. Také různé módní obchody, bary, zelené plochy a parky, fitness centra a knihkupectví jsou snadno dostupné pěšky.
- Vestavěná kuchyň včetně elektrospotřebičů
- Kvalitní masivní dubová podlaha
- Podlahové vytápění
- Jihovýchodní a jihozápadní balkon
- Rolety
- Velká šatna
- Velká spižírna
Těším se na Vaši zprávu.
V okolí nemovitosti najdete
Stále hledáte to pravé?
Nastavte si hlídacího psa. Nabídky vybrané na míru dostanete souhrnně 1× denně e-mailem. S Premium profilem máte k ruce hlídačů rovnou 5 a když se něco objeví, informují vás obratem.
















