Prodej domu 4+1 • 120 m² bez realitkyImkenrade 7 und 7a, , Šlesvicko-Holštýnsko
Imkenrade 7 und 7a, , Šlesvicko-HolštýnskoMHD 8 minut pěšky • GarážPopis nemovitosti:
Dvojdom se nachází ve vyhledávané rezidenční oblasti v Sandesneben a byl postaven v roce 1997 z masivních materiálů. Obě poloviny domu jsou na prodej! Koupní cena činí 320 000,00 € za každou polovinu dvojdomu. Obě poloviny jsou identické co do velikosti i dispozice.
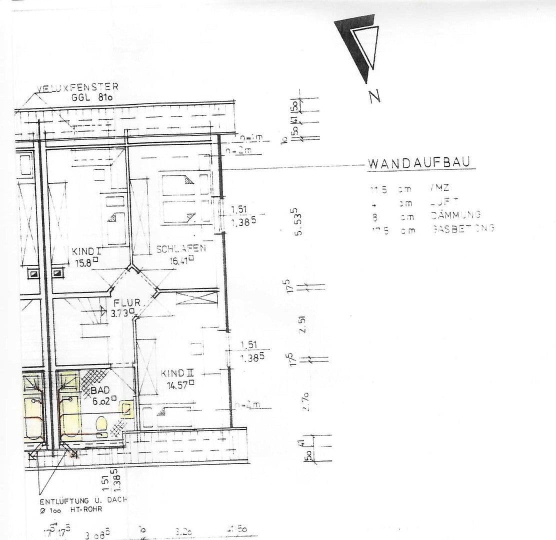
Obytná plocha zahrnuje 4 místnosti. V přízemí se nachází hala (cca 12 m²), hostinská toaleta a kuchyň (cca 10 m²) s praktickým průchodem do přilehlé technické místnosti a sousední garáže. Velký obývací pokoj (cca 39 m²) je vybaven světlou okenní stěnou a má vstup na terasu a do zahrady, která je orientována na jih/západ. V obývacím pokoji je také připojení pro krb.
Patro nabízí dvě velké ložnice a menší pokoj, dále pak světlou obklady koupelnu se sprchou i vanou. Dřevěné schody vedou do prostorně upraveného podkroví.
V podkroví se nachází velký prostor (cca 45 m²), který může být využit k bydlení, práci nebo jako další dětský pokoj. Okno zajišťuje dostatek denního světla.
Pozemek je navržen tak, aby byl nenáročný na údržbu, a má celkovou rozlohu cca 716 m². Pozemek je reálně rozdělen, takže každá polovice domu disponuje vlastním samostatným pozemkem o rozloze cca 360 m². Domovní poloviny mají vlastní přípojky a jsou vytápěny dálkovým teplem. Energetický štítek je momentálně ve vyhotovování.
Dvojdomové poloviny jsou pronajaty. Dlouhodobí nájemníci v současnosti platí měsíční čistý nájem cca 925,00 € za každou polovinu domu.
Nemovitost se nachází v Sandesneben, okres Herzogtum Lauenburg. Sandesneben je vyvinutá lokalita a díky své dobré infrastruktuře je velmi žádaná. Veškeré možnosti nákupů pro každodenní potřeby, lékařská péče, mateřské školy a školy všech stupňů jsou v bezprostřední blízkosti.
Prohlídky je možné domluvit na krátkodobé bázi podle dohody.
Tel.: 0171/5393311
V okolí nemovitosti najdete
Stále hledáte to pravé?
Nastavte si hlídacího psa. Nabídky vybrané na míru dostanete souhrnně 1× denně e-mailem. S Premium profilem máte k ruce hlídačů rovnou 5 a když se něco objeví, informují vás obratem.
















