Pronájem nebytového prostoru • 413 m² bez realitkyDarmstädter Straße 24, , Hessen
Darmstädter Straße 24, , HessenMHD 2 minuty pěšky • ParkováníV dobře viditelném umístění na ulici Darmstädter Straße v Roßdorfu je k pronájmu tato multifunkční komerční/maloobchodní plocha (rok výstavby 1960). Jednotka disponuje prostornou vitrínou směřující k ulici a je ideální pro maloobchod, ordinaci, kancelář či poskytování služeb.
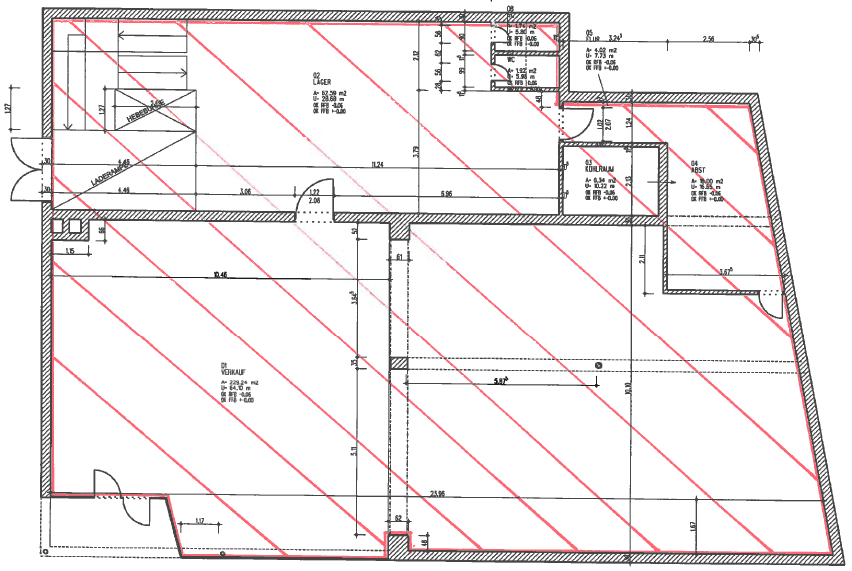
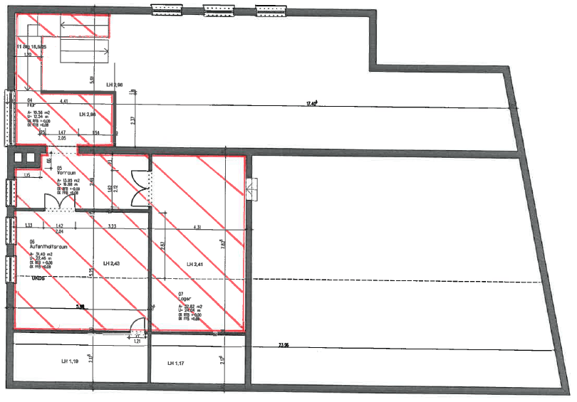
Celková plocha přibližně 413 m² se rozprostírá na prostorném přízemí s prodejní nebo kancelářskou plochou (230 m²) a doplňkovými vedlejšími a skladovacími prostory, stejně jako na dalším samostatném přízemském patře s vedlejšími, odpočinkovými a skladovacími místnostmi ve vyšším patře.
Vybavení a vlastnosti:
• Velká vitrína s účinnou reklamní prezentací
• Flexibilní dispozice prostor
• Několik vedlejších místností
• K dispozici WC
• Další skladovací prostory
• Parkovací místa pro automobily na pozemku
• Přívěšek na svahu s velkými skladovými dveřmi a nakládací plošinou uvnitř budovy
• Dobrá dostupnost pro zákazníky a zaměstnance
Centrální umístění v Roßdorfu nabízí dobrou dopravní dostupnost směrem k Darmstadtu a zavedenou obytnou a smíšenou zástavbu v bezprostředním okolí. Prostor je obzvláště vhodný pro zákaznicky orientované využití s přístupem veřejnosti.
Roßdorf se nachází strategicky v okrese Darmstadt-Dieburg, bezprostředně jihovýchodně od Darmstadtu. Obec těží z ekonomické síly vědecko-technologické oblasti Darmstadt a z blízkosti Rýn-Main oblasti.
Díky blízkosti spolkových silnic B26 a B38 a dálnic A5 a A67 je zajištěno vynikající spojení se:
• Darmstadtem (cca 10 minut)
• Dieburgem (cca 7 minut)
• Frankfurtem nad Mohanem (cca 30–35 minut)
• Letištěm Rýn-Main ve Frankfurtu nad Mohanem (cca 30 minut)
Roßdorf disponuje zavedenou infrastrukturou s maloobchodem, gastronomií, poskytovateli služeb i stabilním obyvatelstvem s vysokou kupní silou. Lokalita je vhodná pro maloobchod, ordinaci, kancelář, poskytování služeb nebo využití jako showroom.
Jedná se o budovu pro komerční účely s jedním a půl podlaží a s přívěškem na svahu. Budova má šikmou sedlovou střechu a prostornou fasádu s okny orientovanými k ulici. Fasáda působí jednoduše a funkčně. Původní využití pro maloobchod je stavebně stále jasně patrné (vitrínová výloha, přístup z ulice).
Přízemí:
• Prostorná prodejní či hlavní využitelná plocha
• Samostatné vedlejší místnosti
• WC
• Vstupní jádro se schodištěm
• Několik uzavřených místností (např. kancelář, sklad, společenské prostory)
• Přívěšek na svahu s velkými skladovými dveřmi a nakládací plošinou
Horní patro:
• Další skladovací prostory
• Vedlejší a technické místnosti
Půdorysy ukazují jasně strukturovanou, funkční dispozici s možností flexibilního využití. Nosné zdi jsou převážně umístěny v obvodních částech, což umožňuje úpravy vnitřního prostoru podle potřeb (podléhající statickému posouzení).
Venkovní prostory poskytují komfort pro zákazníky i možnost pro doručování zboží.
Vhodné využití:
• Maloobchod
• Ordinace (lékař, terapie apod.)
• Kancelář nebo advokátní kancelář
• Společnost poskytující služby
• Studio / školící místnosti
• Výstavní nebo showroomové prostory
• Provozování obchodů s běžnou spotřebou
Parametry nemovitosti
| Stáří | Nad 50 let |
|---|---|
| Číslo inzerátu | 998511 |
| Cena za jednotku | 5 € / m2 |
| Dostupné od | 1. 6. 2026 |
|---|---|
| Plocha nebytového prostoru | 413 m² |
Co tato nemovitost nabízí?
| Sklep | |
| Parkování |
| MHD 2 minuty pěšky |
V okolí nemovitosti najdete
Stále hledáte to pravé?
Nastavte si hlídacího psa. Nabídky vybrané na míru dostanete souhrnně 1× denně e-mailem. S Premium profilem máte k ruce hlídačů rovnou 5 a když se něco objeví, informují vás obratem.










