Prodej domu • 510 m² bez realitkyNeufahrner Straße 33, , Bavorsko
Neufahrner Straße 33, , BavorskoMHD 3 minuty pěšky • Parkování • Garáž- Kompletní rekonstrukce 2012 / rok výstavby 1951
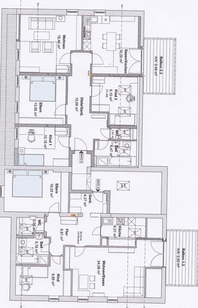
- Celková pronajímatelná obytná plocha cca 510 m²
- Každý byt s balkonem nebo s částí zahrady
- 4 byty jsou pronajaty
- Dům se nachází v srdci Rottenburgu, asi 100 m od centra obce.
- Rottenburg an der Laaber se dopravně nachází velmi výhodně, v tzv. „Zlatém trojúhelníku“ mezi Landshutem, Regensburgem a Mnichovem, které jsou díky blízkosti dálnice BAB 92 a silnice B 15 nyní rychle dostupné.
- Veškeré potřeby každodenního života lze vyřídit během několika minut.
- Autobusové nádraží se nachází v bezprostřední blízkosti na městském náměstí.
- Na místě jsou mateřská škola, základní a střední škola, dále lékaři a lékárny.
- Rottenburg může navíc pochlubit i venkovním bazénem.
Pětrodinný dům postavený v roce 1951 byl v roce 2012 zrenovován a modernizován. Díky neobvyklému plánování bylo pro oba byty v horním patře vytvořeno dvě zahradní části. Jsou zahrnuty 3 garáže a 5 parkovacích míst. Ve všech obytných a ložnicových místnostech byl použit odolný dubový parket. V kuchyních a sanitárních místnostech dodává nadčasová dlažba elegantní prostředí. Nové dřevěné dveře a obložení jsou vyrobeny z masivního dubového dřeva. Okna jsou hliníková, částečně již vyměněná za nová.
Obrázky bytu v přízemí slouží jako ukázka základního vybavení všech bytů.
Byty jsou již rozděleny jako samostatné vlastnictví a mohou být tak prodány jednotlivě. Město Rottenburg již nespadá pod nařízení o ochraně nájemníků.
Parametry nemovitosti
| Stáří | Nad 50 let |
|---|---|
| Stav | Po rekonstrukci |
| PENB | E - Nehospodárná |
| Plocha pozemku | 1 042 m² |
| Cena za jednotku | 2 529 € / m2 |
| Dostupné od | 14. 3. 2026 |
|---|---|
| Číslo inzerátu | 998536 |
| Užitná plocha | 510 m² |
| Celkem podlaží | 3 |
Co tato nemovitost nabízí?
| Balkón | |
| MHD 3 minuty pěšky |
| Garáž | |
| Parkování | |
| Terasa |
V okolí nemovitosti najdete
Stále hledáte to pravé?
Nastavte si hlídacího psa. Nabídky vybrané na míru dostanete souhrnně 1× denně e-mailem. S Premium profilem máte k ruce hlídačů rovnou 5 a když se něco objeví, informují vás obratem.



















