
Pronájem bytu 1+1 • 63 m² bez realitky, Porýní-Falc
, Porýní-FalcMHD do minuty pěšky • Výtah • ParkováníIm malebném Piesportu, jednom z největších vinařských obecí na Moselě, vzniká na ploše přibližně 765 m² moderní obytný dům, který zaujme jak svou architekturou, tak i udržitelností. Obdélníkový stavební celek se vyznačuje svou jasnou a přímou architektonickou řečí, která podtrhuje moderní design. Ve dvou kompletních podlažích a jednom mezisuterénu vznikne celkem osm kvalitních bytových jednotek.
Byty, o obytných plochách přibližně od 62 m² do 94 m², nabízejí prostorné terasy v přízemí, extra široké balkony v patrech a střešní terasy u bytů typu penthouse. Velká prosklená fasáda a orientace balkonů na jihovýchod zaručují, kromě působivého výhledu na okolné vinice, i interiér prosvětlený přirozeným světlem.
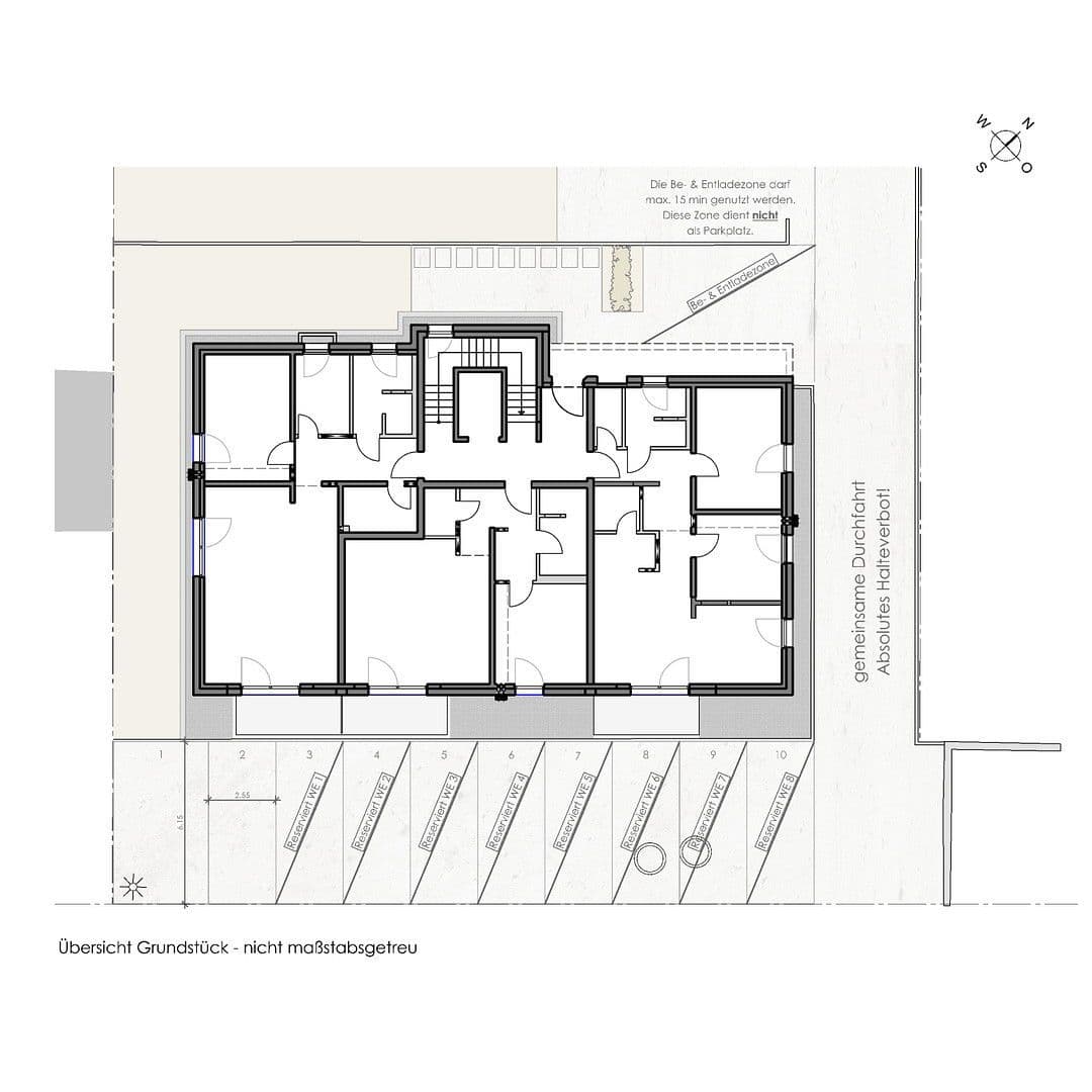
Centrální výtah umožňuje pohodlný bezbariérový přístup do bytových jednotek. Navíc je obytná budova opatřena sklepem, který obyvatelům domu kromě úložných prostor také poskytuje společnou prádelnu a sušárnu a velkou místnost pro uskladnění jízdních kol. Ta je snadno přístupná přes prostorně dimenzovaný výtah, který je kromě přepravy kol vhodný i pro převoz osob v leže nebo v případě zdravotní nouze.
Krytý vstupní prostor nabízí poštovní schránku chráněnou před nepříznivým počasím a video interkom. Pro pohodlí obyvatel je přímo u domu k dispozici deset parkovacích stání. Všechna místa jsou v souladu se zákonem o elektromobilní infrastruktuře budov (GEIG) vybavena příslušnými připojeními pro elektrická vozidla.
Pro projekt byla u akreditované certifikační instituce podána žádost o certifikaci udržitelnosti s cílem získat kvalitativní odznak „Udržitelná budova“ (NH). Tím je podtržen ambice budovy být vzorem nejen v oblasti architektury, ale také z hlediska ekologie a energetické efektivity.
Piesport je idylická obec v okrese Bernkastel-Wittlich v Porýní-Falc, a patří mezi největší vinařské obce na Moselě.
K uspokojení potřeb přibližně 2 300 obyvatel obec disponuje supermarketem, pekárnou a řeznictvím, stejně jako poštovní a bankovní pobočkou. Pro větší nákupy je snadno dostupné sousední město Bernkastel-Kues. Lékařská péče je zajištěna místními praktiky a zubními ordinacemi, zatímco specializovaná ošetření jsou nabízena v nedaleké nemocnici v Bernkastel-Kues. Piesport nemá vlastní gymnázium, nicméně má dobré spojení se školami v Bernkastel-Kues. Kromě základní školy nabízí Piesport pro předškolní péči i místní mateřskou školu.
Celkově nabízí Piesport vysokou kvalitu života s dobrou infrastrukturou a je zvláště vhodný pro rodiny a starší lidi.
Obytný dům je šetrně vytápěn modernní vzduch-vodní tepelným čerpadlem, které ve spojení s mimořádně dobře izolovanou, vzduchotěsnou obálkou budovy zajišťuje nízké náklady na vytápění. Vysoce izolační okna s trojsklem a termicky mosty zbavená konstrukce významně přispívají k minimalizaci spotřeby energie. Kontrolovaná vzduchotechnika s rekuperací tepla zajišťuje po celý rok čerstvý a příjemný vzduch ve všech obytných prostorech, aniž by docházelo ke zbytečné ztrátě energie.
Extenzivně zeleňovaná rovinná střecha, často nazývaná „zelená střecha“, přispívá k příjemnějšímu mikroklimatu uvnitř budovy a zároveň pomáhá snižovat náklady na vytápění a klimatizaci. Rostlinná vrstva navíc působí jako přirozená ochrana střešní izolace před vlivem počasí a UV zářením.
Velká okna a světlá výška místností přibližně 2,56 m zajišťují světlé, prosvětlené obytné prostory. Vnější clony oken jsou zajištěny lamelovými žaluziemi, které jsou motorově ovládané a horizontálně orientované. Ty nejen chrání před přímým slunečním zářením, ale pomáhají také udržet venkovní teplo v létě a dovnitř teplo v zimě.
V sklepě se nachází místnost pro jízdní kola, která nabízí suché a bezpečné úložiště. Výtahová kabina o hloubce 2,10 m poskytuje dostatek prostoru pro bezproblémovou přepravu kol do sklepa.
Stěnové plochy všech obytných prostor jsou tapetovány neutrální texturovanou tapetou střední zrnitosti a natřeny bílou barvou. Stropy jsou opatřeny světlým nátěrem. V interiérech byl podlahový kryt ve všech obytných místnostech položen z vinylových panelů s dřevěným vzhledem. Koupelny jsou obloženy dlažbou. Bílé vnitřní dveře harmonizují s moderním konceptem interiéru a kuchyně jsou již zabudované.
V okolí nemovitosti najdete
Stále hledáte to pravé?
Nastavte si hlídacího psa. Nabídky vybrané na míru dostanete souhrnně 1× denně e-mailem. S Premium profilem máte k ruce hlídačů rovnou 5 a když se něco objeví, informují vás obratem.
















