
Pronájem bytu 3+1 • 132 m² bez realitky, Bádensko-Württembersko
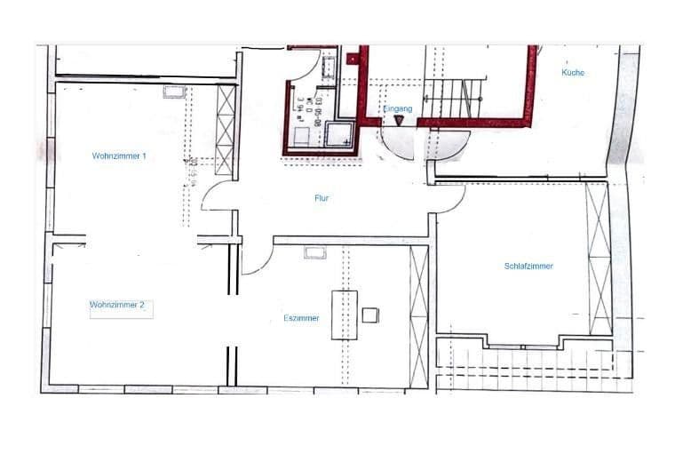
, Bádensko-WürttemberskoMHD 1 minuta pěšky • VýtahTento světlý třípokojový byt se nachází v samotném srdci Freudenstadtu a nabízí ideální kombinaci moderního bydlení a centrální polohy. Prostorné, světlem zalité místnosti vytvářejí příjemnou atmosféru.
Promyšlené uspořádání je ideální pro páry, pracující osoby nebo malou rodinu až do tří osob.
Byt je pronajímán výhradně domácnostem s maximálně třemi osobami.
Byt se nachází na špičkové centrální adrese, přímo u historického náměstí ve Freudenstadtu. Veškeré zařízení pro každodenní potřeby – možnosti nákupu, gastronomie, lékaři i veřejná doprava – jsou v bezprostředním okolí a jsou snadno dostupné pěšky.
Jeho centrální poloha umožňuje městský životní styl s krátkými cestami, aniž byste museli snižovat kvalitu bydlení.
Byt zaujme svým prostorným, otevřeným uspořádáním a světlými, světlem zalitými místnostmi. Kvalitní parketová podlaha a vestavěná kuchyň podtrhují udržovaný a moderní charakter bytu.
Díky pevné konstrukci a umístění ve 2. patře nabízí byt, navzdory centrální poloze na ulici Loßburger, příjemně klidné obytné prostředí a je ideálním komfortním útočištěm v centru města.
V bytě není k dispozici žádný samostatný sklep, parkovací místo ani balkon. Díky centrální poloze v centru města jsou však k dispozici veřejné parkovací prostory a byt v každém případě nabízí dostatek místa a bydlení s vysokým komfortem.
Byt opět zaujme svým prostorným, otevřeným uspořádáním a světlými, světlem zalitými místnostmi. Kvalitní parketová podlaha a vestavěná kuchyň podtrhují udržovaný a moderní charakter bytu.
Díky pevné konstrukci a umístění ve 2. patře nabízí byt, navzdory centrální poloze na ulici Loßburger, příjemně klidné obytné prostředí a je ideálním komfortním útočištěm v centru města.
V bytě není k dispozici žádný samostatný sklep, parkovací místo ani balkon. Díky centrální poloze v centru města jsou však k dispozici veřejné parkovací prostory. Volitelně je navíc možné pronajmout si parkovací místo v podzemní garáži u města Freudenstadt, takže pro obyvatele existuje dostatek parkovacích možností.
V okolí nemovitosti najdete
Stále hledáte to pravé?
Nastavte si hlídacího psa. Nabídky vybrané na míru dostanete souhrnně 1× denně e-mailem. S Premium profilem máte k ruce hlídačů rovnou 5 a když se něco objeví, informují vás obratem.












