Prodej domu 7+kk • 164 m² bez realitky, Bádensko-Württembersko
Nemovitost okouzlí svou klidnou a přitom dopravně výhodnou polohou ve vybudované a udržované rezidenční čtvrti lázeňského města Waldbronn, které se vyznačuje vysokou kvalitou života. Nabízená polovina dvojdomu zaujme zejména promyšleným konceptem bydlení s přesvědčivým rozmístěním místností.
Do domu vstoupíte chodbou, ke které náleží hostinská toaleta s umyvadlem a malá úložná místnost. Dveře jdoucí přímo vpřed vedou do otevřeného obývacího prostoru se schodištěm. Na jižní straně se otevírá prostorný obývací pokoj s krbem a vstupem na terasu a do klidné zahrady vzadu. Na severní straně se nachází jídelna, která je přímo sousedící s kuchyní.
V suterénu se od otevřené chodby rozprostírá (hobbymístnost) s vlastním vstupem přes venkovní schodiště, prádelna s bezbariérovou sprchou a velký (zásobovací) sklep s dostatkem úložného prostoru. V malé kotelně (vedoucí z hobbymístnosti) se nachází olejové topení, jehož nádrž (10 000 litrů) leží pod příjezdovou cestou před domem.
V nadzemním podlaží se nachází 3 dětské pokoje, dále pak ložnice pro rodiče a koupelna se dvěma umyvadly, vanou a sprchou. Dva pokoje umístěné na jižní straně mají každý přístup na balkon.
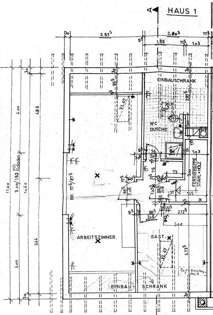
Přes ocelově-dřevěné schodiště, které vede od sklepa až na půdu, se dostanete do podkroví. Z malé chodby se dostanete do koupelny s toaletou a sprchou (pro hosty), dále do hostovského pokoje a do velké podkrovní místnosti s výhledem a klimatizací.
K nemovitosti patří také garáž, která nabízí nejen místo pro jedno auto, ale také dodatečný prostor pro uskladnění kol a zahradního náčiní.
Nemovitost se nachází v velmi klidné lokalitě (není průchozí silnicí, zadovážně umístěná) na mírné vyvýšenině mezi částmi Reichenbach a Busenbach. Dětem přátelské prostředí je doplněno o několik nedalekých hřišť.
Různé možnosti nákupu a restaurace jsou snadno dostupné pěšky. Mateřská škola, škola, lékaři a lékárny se nacházejí v blízkém okolí. Také volnočasové aktivity (mezitím sportoviště, tenisové kurty, venkovní bazén, kluziště) a možnosti odpočinku (např. lázeňský park s minigolfem, Albtherme, Severní Černý les) jsou vzdáleny jen pár minut chůze.
Dobrá dostupnost veřejné dopravy je zajištěna zejména linkou S11 směrem do Karlsbadu, stejně jako směrem do Ettlingenu a Karlsruehu. Další autobusové linky s nedalekými zastávkami tuto nabídku doplňují. Rychlé spojení je navíc zajištěno dálnicí A8.
• Masivní zdivo
• Denní světlo ve všech místnostech (s výjimkou prádelny a zásobního sklepa)
• Klimatizace ve velké podkrovní místnosti
• Okna s dvojitým zasklením
• Ocelově-dřevěné schodiště
• Krb v obývacím pokoji
• 2 koupelny s denním světlem, navíc bezbariérová sprcha v suterénu, hostinská toaleta
• Garáž, částečně rekonstruovaná v roce 2019, s dodatečným prostorem na kola a elektrickými garážovými vraty
• Jižní terasa
• Jižní balkon, částečně rekonstruován v roce 2019
• Západní fasáda obnovena a zateplena v roce 2020
• Centrální olejové topení, cirkulační čerpadlo obnoveno v roce 2024
• Dostatek úložného prostoru v suterénu a v několika výklencích/koutcích podkroví
V okolí nemovitosti najdete
Stále hledáte to pravé?
Nastavte si hlídacího psa. Nabídky vybrané na míru dostanete souhrnně 1× denně e-mailem. S Premium profilem máte k ruce hlídačů rovnou 5 a když se něco objeví, informují vás obratem.










